Contact met de makelaar

Deze woning is gevonden buiten ons eigen netwerk. Met de knop hieronder kom je direct bij de aanbieder terecht.

Verkocht onder voorbehoud

Kennemerbeek 23

Bekijk kaart
1509 EM Zaandam (Kalf)
€ 450.000 k.k.
  • 105 m²
  • 5 kamers
  • 1978

Samenvatting

  • Deze woning wordt sinds 3 maanden aangeboden door Mijn Huis Verkoop Ik Zelf;
  • De tussenwoning heeft een woonoppervlakte van 105 m² en beschikt over 5 kamers;
  • De woning is gebouwd In 1978 en ligt in de buurt Kalf in Zaandam.

Beschrijving

Omschrijving

Instapklare woning met 4 slaapkamers, voortuin met stenen berging en achtertuin met berging en achterom ingang.

Deze centraal gelegen woning met zonnepanelen en energielabel A op EIGEN GROND ligt op loopafstand van het winkelcentrum en op kleine fiets afstand van het heerlijke recreatiegebied Jagersveld.

De wijk het Kalf is een geliefde groene wijk en erg kindvriendelijk. Het ligt centraal tussen Alkmaar, Haarlem, Purmerend en Amsterdam.

Indeling:

Begane grond:
entree, meterkast, gewone kast, toilet, trap naar de eerste verdieping, toegang naar de woonkamer. De woonkamer heeft een open keuken en geeft toegang naar de zonnige achtertuin met houten schuur en achterom. Achterom is ideaal om met een motor naar binnen te gaan.

Eerste verdieping:
Toegang tot drie slaapkamers, opbergkast en de moderne badkamer

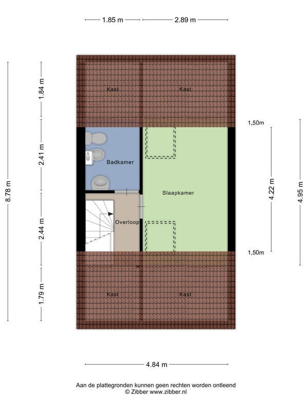
Tweede verdieping:
Aparte ruimte met bidet, toilet en wastafel. Ruime slaapkamer en op de gehele etage rondom opbergruimte.

Bijzonderheden:

  • Energielabel A
  • Eigen grond
  • Zonnepanelen
  • 4 slaapkamers
  • twee bergingen
  • Bouwjaar 1978
  • Intergas kombi kompakt HRE 28/18 CW 3 2011
  • Vrij parkeren
  • woning is direct beschikbaar

    Gevonden op ******

Overdracht

Vraagprijs
€ 450.000 k.k.
Aangeboden sinds
12-10-2025
Status
Verkocht onder voorbehoud
Beschikbaar
In overleg

Oppervlakte en inhoud

Woonoppervlakte
105 m²
Perceeloppervlakte
111 m²
Inhoud
402 m³

Bouw

Type woning
Huis
Soort woning
Tussenwoning (rijtjeshuis), Eengezinswoning
Soort bouw
Bestaande bouw
Bouwjaar
1978

Indeling

Aantal kamers
5

Buitenruimte

Tuin
Aanwezig
Dakterras
Niet aanwezig

Energie

Energielabel
A

Garage

Aanwezig
Nee
Meld een probleem met deze woning