- 111 m²
- 5 kamers
- 1994
Samenvatting
- Deze woning wordt sinds 7 oktober 2025 aangeboden door Oviron makelaars en taxateurs;
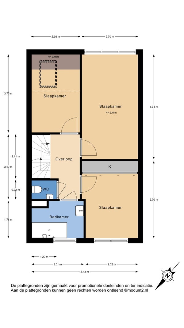
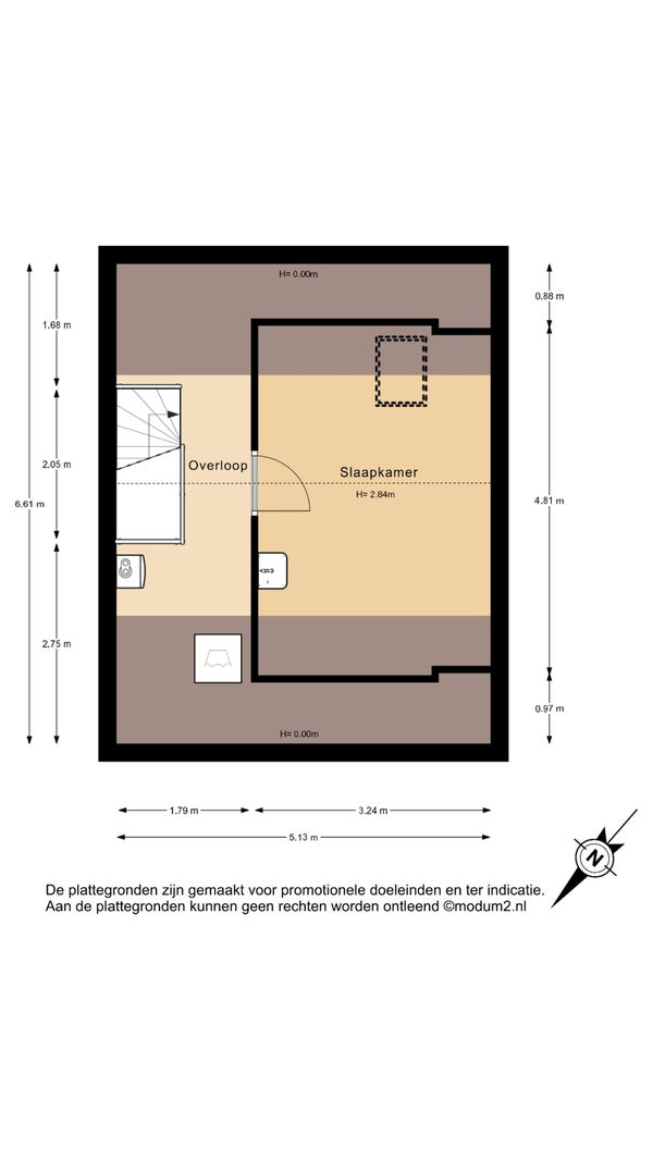
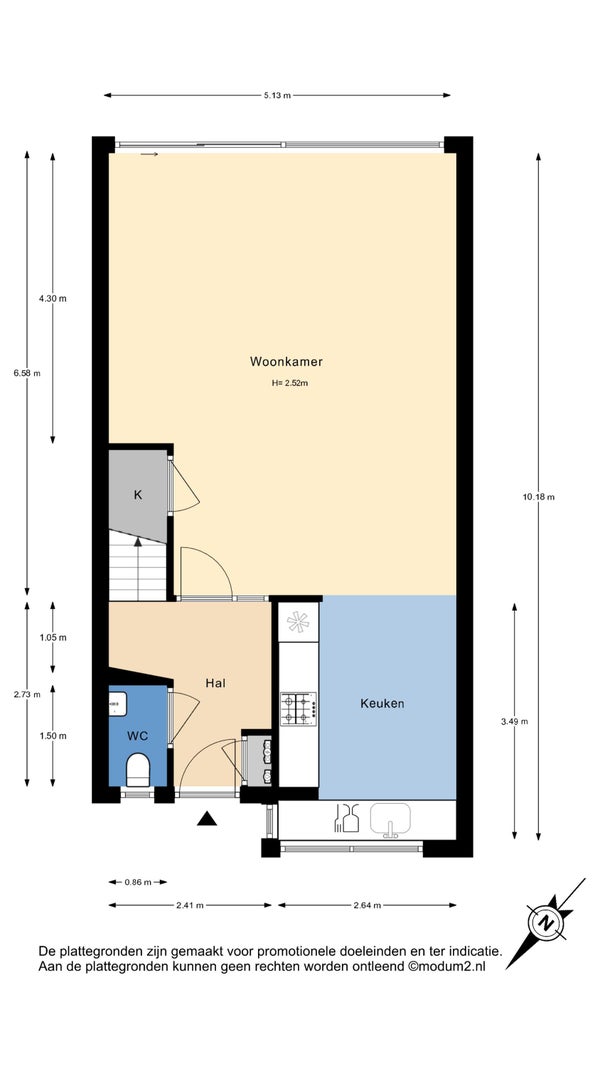
- De tussenwoning heeft een woonoppervlakte van 111 m² en beschikt over 5 kamers, waarvan 4 slaapkamers;
- De woning is gebouwd In 1994 en ligt in de buurt Rokkeveen-Oost in Zoetermeer.
Beschrijving
Overdracht
- Vraagprijs
- € 495.000 k.k.
- Aangeboden sinds
- 07-10-2025
- Status
- Beschikbaar
- Beschikbaar
- In overleg
- Onderhoudsstaat
- Redelijk
Oppervlakte en inhoud
- Woonoppervlakte
- 111 m²
- Perceeloppervlakte
- 134 m²
- Inhoud
- 380 m³
Bouw
- Type woning
- Huis
- Soort woning
- Tussenwoning (rijtjeshuis), Eengezinswoning
- Soort bouw
- Bestaande bouw
- Bouwjaar
- 1994
Indeling
- Aantal kamers
- 5
- Aantal slaapkamers
- 4
- Aantal badkamers
- 1
- Aantal woonlagen
- 3
- Voorzieningen
-
- Bad
- Toilet
Buitenruimte
- Balkon
- Niet aanwezig
- Tuin
- Aanwezig (54 m², gelegen op het zuidoosten)
- Tuinbeschrijving
- achtertuin, voortuin
- Dakterras
- Niet aanwezig
Energie
- Warm water
- CV-ketel
- Energielabel
- B
Bergruimte
- Schuur/Berging
- Aanwezig
- Omschrijving
- Vrijstaand steen
Parkeergelegenheid
- Aanwezig
- Ja
- Soort parkeergelegenheid
- Openbaar
Garage
- Aanwezig
- Nee