Contact met de makelaar

Deze woning is gevonden buiten ons eigen netwerk. Met de knop hieronder kom je direct bij de aanbieder terecht.

Nieuw

Bloemendaalstraat 22

Bekijk kaart
2729 AH Zoetermeer (Oosterheem-Noord-Oost)
€ 500.000 k.k.
  • 135 m²
  • 6 kamers
  • 2002

Samenvatting

  • Deze woning wordt sinds 21 oktober 2025 aangeboden door Oviron makelaars en taxateurs;
  • De 2-onder-1-kapwoning heeft een woonoppervlakte van 135 m² en beschikt over 6 kamers, waarvan 5 slaapkamers;
  • De woning is gebouwd In 2002 en ligt in de buurt Oosterheem-Noord-Oost in Zoetermeer;
  • De woning beschikt onder andere over de volgende voorzieningen: Bad, Kabel TV, Glasvezelaansluiting, Mechanische ventilatie, Douche, Toilet, Wasruimte.

Beschrijving

Meer woninginformatie bekijken?

Log in of registreer gratis.

Overdracht

Vraagprijs
€ 500.000 k.k.
Aangeboden sinds
21-10-2025
Status
Beschikbaar
Beschikbaar
In overleg
Onderhoudsstaat
Goed

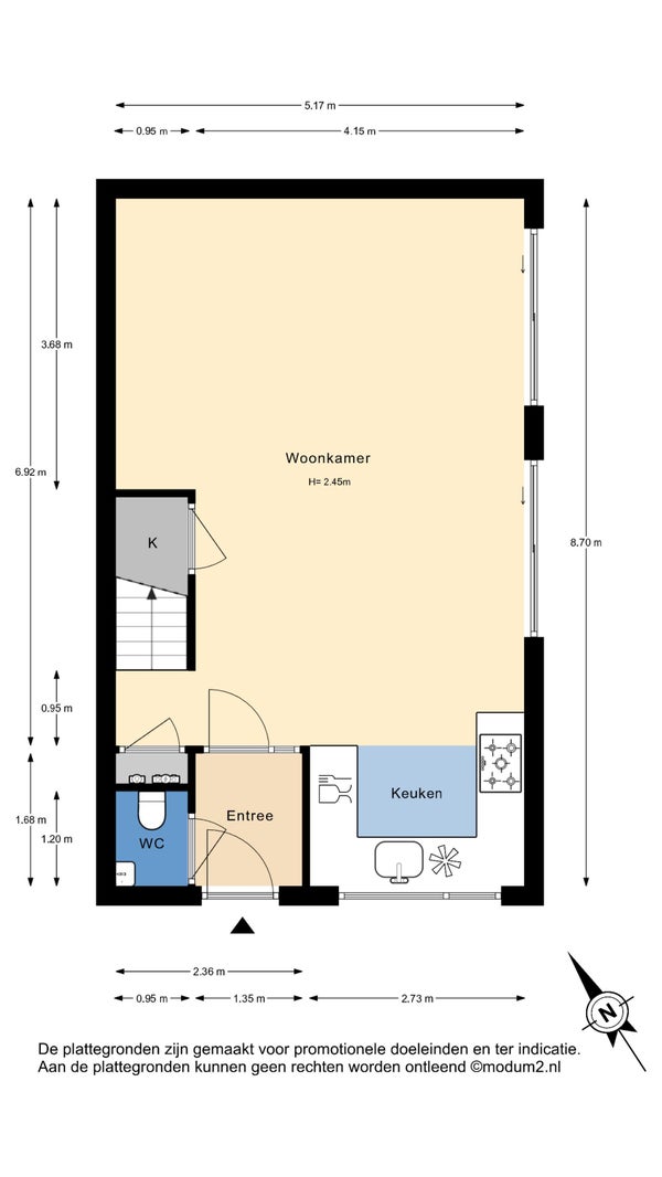
Oppervlakte en inhoud

Woonoppervlakte
135 m²
Perceeloppervlakte
119 m²
Inhoud
447 m³

Bouw

Type woning
Huis
Soort woning
2-onder-1-kapwoning, Eengezinswoning
Soort bouw
Bestaande bouw
Bouwjaar
2002

Indeling

Aantal kamers
6
Aantal slaapkamers
5
Aantal badkamers
1
Aantal woonlagen
3
Voorzieningen
  • Bad
  • Kabel TV
  • Glasvezelaansluiting
  • Mechanische ventilatie
  • Douche
  • Toilet
  • Wasruimte

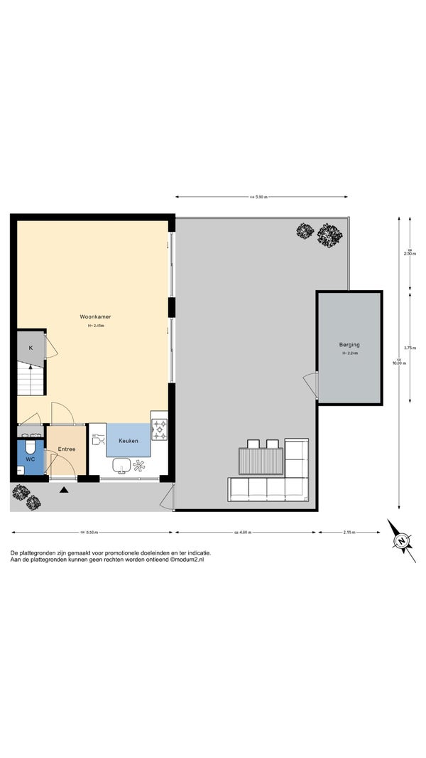
Buitenruimte

Balkon
Niet aanwezig
Tuin
Aanwezig
Tuinbeschrijving
zijtuin
Dakterras
Niet aanwezig

Energie

Isolatie
Volledig geïsoleerd
Verwarming
Stadsverwarming
Energielabel
A+

Bergruimte

Schuur/Berging
Aanwezig
Omschrijving
Vrijstaand steen

Parkeergelegenheid

Aanwezig
Ja
Soort parkeergelegenheid
Openbaar

Garage

Aanwezig
Nee
Meld een probleem met deze woning
Contact met de makelaar Bel