Contact met de makelaar

Deze woning is gevonden buiten ons eigen netwerk. Met de knop hieronder kom je direct bij de aanbieder terecht.

Nieuw

Amaranthout 22

Bekijk kaart
2719 MP Zoetermeer (Rokkeveen-West)
€ 525.000 k.k.
  • 136 m²
  • 5 kamers
  • 1997

Samenvatting

  • Deze woning wordt sinds 3 oktober 2025 aangeboden door Schieland Borsboom NVM Makelaars Zoetermeer;
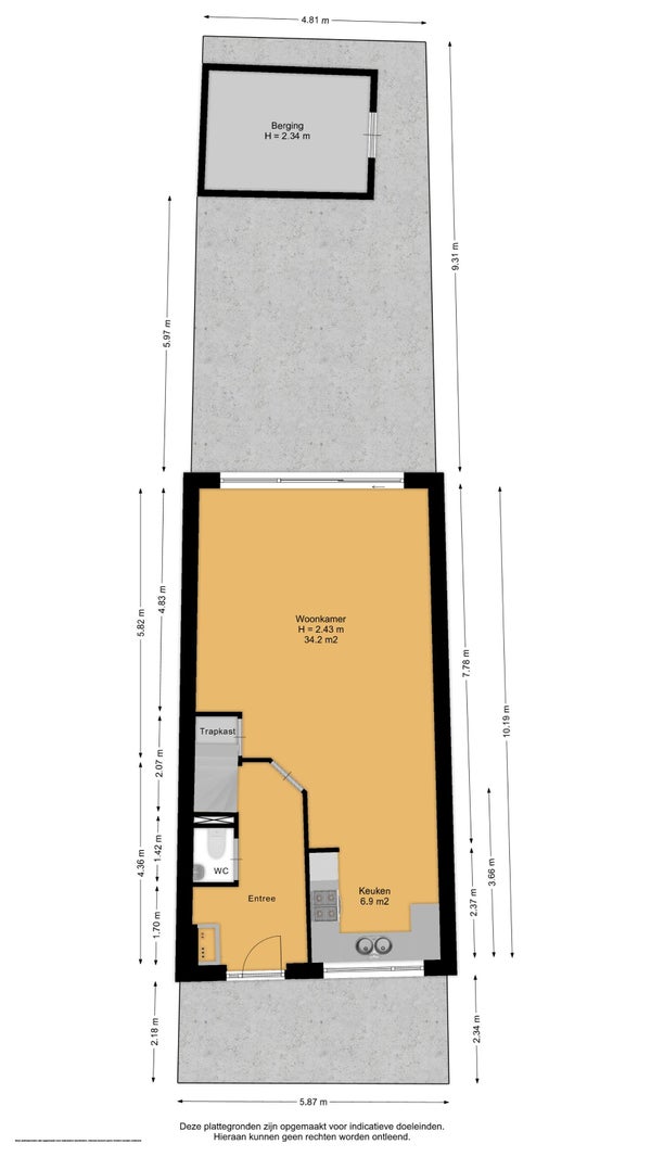
  • De tussenwoning heeft een woonoppervlakte van 136 m² en beschikt over 5 kamers, waarvan 4 slaapkamers;
  • De woning is gebouwd In 1997 en ligt in de buurt Rokkeveen-West in Zoetermeer;
  • De woning beschikt onder andere over de volgende voorzieningen: Alarm, Kabel TV, Mechanische ventilatie, Buitenzonwering, Dakterras, Douche, Schuifdeuren, Bergruimte, Toilet, Wasruimte.

Beschrijving

Overdracht

Vraagprijs
€ 525.000 k.k.
Aangeboden sinds
03-10-2025
Status
Beschikbaar
Beschikbaar
In overleg
Onderhoudsstaat
Goed

Oppervlakte en inhoud

Woonoppervlakte
136 m²
Perceeloppervlakte
120 m²
Inhoud
447 m³

Bouw

Type woning
Huis
Soort woning
Tussenwoning (rijtjeshuis), Eengezinswoning
Soort bouw
Bestaande bouw
Bouwjaar
1997
Ligging
In een woonwijk

Indeling

Aantal kamers
5
Aantal slaapkamers
4
Aantal badkamers
1
Aantal woonlagen
3
Voorzieningen
  • Alarm
  • Kabel TV
  • Mechanische ventilatie
  • Buitenzonwering
  • Dakterras
  • Douche
  • Schuifdeuren
  • Bergruimte
  • Toilet
  • Wasruimte

Buitenruimte

Balkon
Niet aanwezig
Tuin
Aanwezig (45 m², gelegen op het zuidoosten)
Tuinbeschrijving
achtertuin, voortuin
Dakterras
Aanwezig

Energie

Isolatie
Dakisolatie, Muurisolatie
Verwarming
CV-ketel
Warm water
CV-ketel
Cv-ketel
Intergas HR (Gas, uit 2013, Eigendom)
Energielabel
A

Bergruimte

Schuur/Berging
Aanwezig
Omschrijving
Vrijstaand steen

Parkeergelegenheid

Aanwezig
Ja
Soort parkeergelegenheid
Openbaar

Garage

Aanwezig
Nee
Meld een probleem met deze woning
Contact met de makelaar Bel