Contact met de makelaar

Deze woning is gevonden buiten ons eigen netwerk. Met de knop hieronder kom je direct bij de aanbieder terecht.

Nieuw

Meloengeel 13

Bekijk kaart
2718 CH Zoetermeer (Rokkeveen-Oost)
€ 495.000 k.k.
  • 140 m²
  • 7 kamers
  • 1988

Samenvatting

  • Deze woning wordt sinds 11 oktober 2025 aangeboden door KOCH Real Estate;
  • De tussenwoning heeft een woonoppervlakte van 140 m² en beschikt over 7 kamers, waarvan 6 slaapkamers;
  • De woning is gebouwd In 1988 en ligt in de buurt Rokkeveen-Oost in Zoetermeer;
  • De woning beschikt onder andere over de volgende voorzieningen: Bad, Kabel TV, Glasvezelaansluiting, Rookkanaal, Jacuzzi, Mechanische ventilatie, Douche, Schuifdeuren, Bergruimte, Toilet, Wasruimte.

Beschrijving

Overdracht

Vraagprijs
€ 495.000 k.k.
Aangeboden sinds
11-10-2025
Status
Beschikbaar
Beschikbaar
In overleg
Onderhoudsstaat
Goed

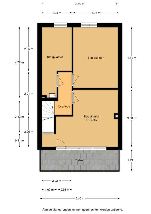
Oppervlakte en inhoud

Woonoppervlakte
140 m²
Perceeloppervlakte
117 m²
Inhoud
454 m³

Bouw

Type woning
Huis
Soort woning
Tussenwoning (rijtjeshuis), Eengezinswoning
Soort bouw
Bestaande bouw
Bouwjaar
1988
Ligging
  • Aan een rustige weg
  • In een woonwijk
  • Beschut gelegen
  • Vrij uitzicht

Indeling

Aantal kamers
7
Aantal slaapkamers
6
Aantal badkamers
1
Aantal woonlagen
3
Voorzieningen
  • Bad
  • Kabel TV
  • Glasvezelaansluiting
  • Rookkanaal
  • Jacuzzi
  • Mechanische ventilatie
  • Douche
  • Schuifdeuren
  • Bergruimte
  • Toilet
  • Wasruimte

Buitenruimte

Balkon
Aanwezig
Tuin
Aanwezig
Tuinbeschrijving
achtertuin
Dakterras
Niet aanwezig

Energie

Isolatie
Dubbele beglazing, Vloerisolatie, Dakisolatie, Muurisolatie
Verwarming
CV-ketel
Warm water
CV-ketel
Energielabel
C

Bergruimte

Schuur/Berging
Aanwezig
Omschrijving
Vrijstaand hout

Parkeergelegenheid

Aanwezig
Ja
Soort parkeergelegenheid
Openbaar

Garage

Aanwezig
Nee
Meld een probleem met deze woning
Contact met de makelaar Bel