Contact met de makelaar

Deze woning is gevonden buiten ons eigen netwerk. Met de knop hieronder kom je direct bij de aanbieder terecht.

Nieuw

Zegwaartseweg 78

Bekijk kaart
2723 PC Zoetermeer (Seghwaert-Noord-Oost)
€ 275.000 k.k.
  • 64 m²
  • 3 kamers
  • 1936

Samenvatting

  • Deze woning wordt sinds 16 oktober 2025 aangeboden door Schieland Borsboom NVM Makelaars Zoetermeer;
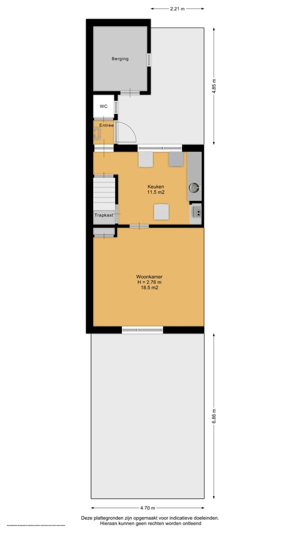
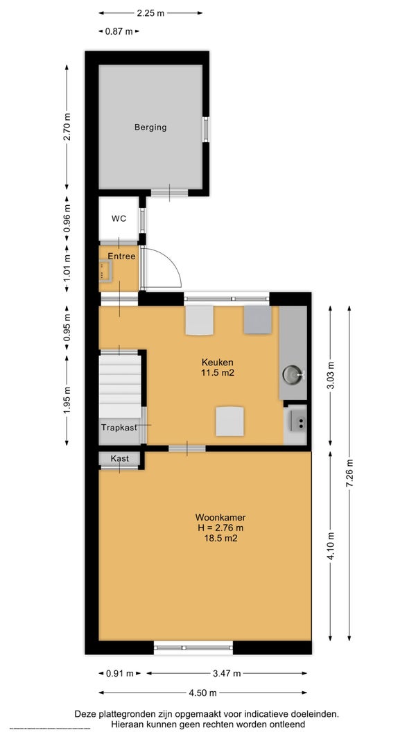
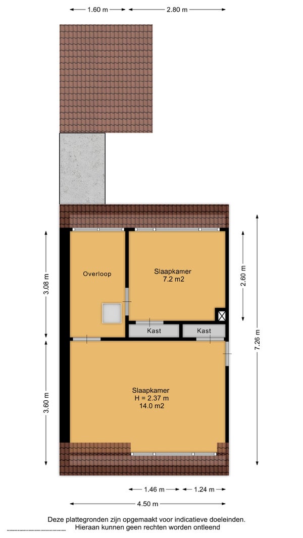
  • De tussenwoning heeft een woonoppervlakte van 64 m² en beschikt over 3 kamers, waarvan 2 slaapkamers;
  • De woning is gebouwd In 1936 en ligt in de buurt Seghwaert-Noord-Oost in Zoetermeer.

Beschrijving

Overdracht

Vraagprijs
€ 275.000 k.k.
Aangeboden sinds
16-10-2025
Status
Beschikbaar
Beschikbaar
In overleg
Onderhoudsstaat
Matig

Oppervlakte en inhoud

Woonoppervlakte
64 m²
Perceeloppervlakte
220 m²
Inhoud
263 m³

Bouw

Type woning
Huis
Soort woning
Tussenwoning (rijtjeshuis), Eengezinswoning
Soort bouw
Bestaande bouw
Bouwjaar
1936

Indeling

Aantal kamers
3
Aantal slaapkamers
2
Aantal woonlagen
3
Voorzieningen
Toilet

Buitenruimte

Balkon
Niet aanwezig
Tuin
Aanwezig (32 m², gelegen op het noordwesten)
Tuinbeschrijving
voortuin, achtertuin
Dakterras
Niet aanwezig

Energie

Verwarming
CV-ketel
Warm water
CV-ketel

Bergruimte

Schuur/Berging
Aanwezig
Omschrijving
Aangebouwd steen

Parkeergelegenheid

Aanwezig
Ja
Soort parkeergelegenheid
Openbaar

Garage

Aanwezig
Nee
Meld een probleem met deze woning
Contact met de makelaar Bel