Contact met de makelaar

Deze woning is gevonden buiten ons eigen netwerk. Met de knop hieronder kom je direct bij de aanbieder terecht.

Nieuw

Renzo Pianolijn 13 15

Bekijk kaart
2728 AD Zoetermeer (Noordhove-West)
€ 715.000 k.k.
  • 187 m²
  • 6 kamers
  • 2002

Samenvatting

  • Deze woning wordt sinds 21 november 2025 aangeboden door 88 Makelaars;
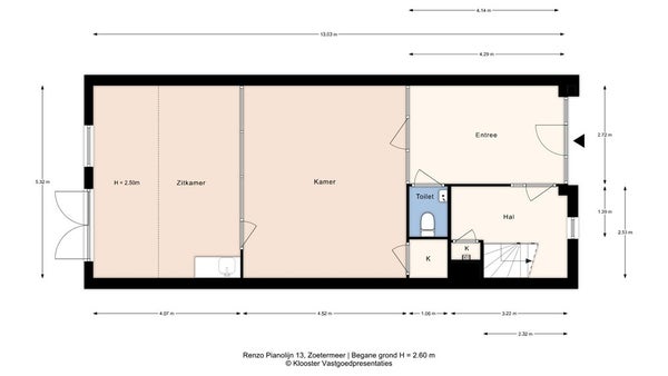
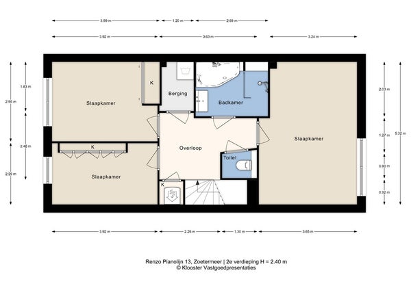
  • De geschakelde woning heeft een woonoppervlakte van 187 m² en beschikt over 6 kamers, waarvan 3 slaapkamers;
  • De woning is gebouwd In 2002 en ligt in de buurt Noordhove-West in Zoetermeer.

Beschrijving

Overdracht

Vraagprijs
€ 715.000 k.k.
Aangeboden sinds
21-11-2025
Status
Beschikbaar
Beschikbaar
Per direct
Onderhoudsstaat
Zeer goed

Oppervlakte en inhoud

Woonoppervlakte
187 m²
Perceeloppervlakte
57 m²
Inhoud
610 m³

Bouw

Type woning
Huis
Soort woning
Geschakelde woning, Eengezinswoning
Soort bouw
Bestaande bouw
Bouwjaar
2002

Indeling

Aantal kamers
6
Aantal slaapkamers
3
Aantal badkamers
1
Aantal woonlagen
3
Voorzieningen
  • Bergruimte
  • Toilet

Buitenruimte

Balkon
Aanwezig
Tuin
Aanwezig
Tuinbeschrijving
achtertuin
Dakterras
Niet aanwezig

Bergruimte

Schuur/Berging
Aanwezig
Meld een probleem met deze woning
Contact met de makelaar Bel