Contact met de makelaar

Deze woning is gevonden buiten ons eigen netwerk. Met de knop hieronder kom je direct bij de aanbieder terecht.

Nieuw

Botlek 22

Bekijk kaart
8032 CE Zwolle (Aa-landen-Zuid)
€ 375.000 k.k.
  • 120 m²
  • 5 kamers
  • 1964

Samenvatting

  • Deze woning wordt sinds 29 januari 2026 aangeboden door Van Amerom Makelaardij;
  • De tussenwoning heeft een woonoppervlakte van 120 m² en beschikt over 5 kamers, waarvan 4 slaapkamers;
  • De woning is gebouwd In 1964 en ligt in de buurt Aa-landen-Zuid in Zwolle.

Beschrijving

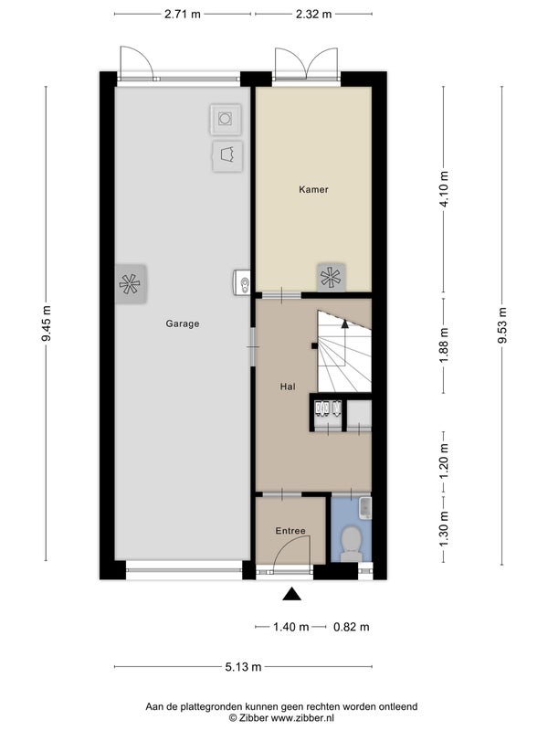
In de rustige en groene woonomgeving van Zwolle bevindt zich deze ruime en goed onderhouden tussenwoning. Het huis heeft een inpandige garage en een extra kamer op de begane grond. De zonnige tuin op het zuiden biedt veel privacy. Met een woonoppervlakte van 120 m² en een inhoud van 517 m³ is dit een ideale gezinswoning. De woning is in 1969 gebouwd en door de jaren heen gemoderniseerd, waaronder een vernieuwd dak (2019) en een badkamer (2023). Op de eerste verdieping is de lichte woonkamer, met een semi-open keuken die recentelijk is vernieuwd. De tweede verdieping beschikt over drie slaapkamers en een badkamer met inloopdouche. De tuin heeft een ruim terras en is ook via de achterom bereikbaar. Dit huis ligt in de geliefde wijk Aa-landen, nabij scholen, winkels en recreatie.

Overdracht

Vraagprijs
€ 375.000 k.k.
Aangeboden sinds
29-01-2026
Status
Beschikbaar
Beschikbaar
Per direct

Oppervlakte en inhoud

Woonoppervlakte
120 m²
Perceeloppervlakte
187 m²

Bouw

Type woning
Huis
Soort woning
Tussenwoning (rijtjeshuis), Eengezinswoning
Soort bouw
Bestaande bouw
Bouwjaar
1964

Indeling

Aantal kamers
5
Aantal slaapkamers
4
Aantal badkamers
1

Buitenruimte

Dakterras
Niet aanwezig

Energie

Energielabel
C
Meld een probleem met deze woning