Contact met de makelaar

Deze woning is gevonden buiten ons eigen netwerk. Met de knop hieronder kom je direct bij de aanbieder terecht.

Nieuw

Kalkbranderstraat 56

Bekijk kaart
8043 BH Zwolle (Schoonhorst)
€ 349.500 k.k.
  • 87 m²
  • 4 kamers
  • 1997

Samenvatting

  • Deze woning wordt sinds 27 januari 2026 aangeboden door NoordZijde Makelaars;
  • De tussenwoning heeft een woonoppervlakte van 87 m² en beschikt over 4 kamers, waarvan 3 slaapkamers;
  • De woning is gebouwd In 1997 en ligt in de buurt Schoonhorst in Zwolle.

Beschrijving

Welkom in deze verzorgde en comfortabele gezinswoning met carport, gelegen in een rustige, kindvriendelijke woonwijk. Hier vindt u alle dagelijkse voorzieningen dicht bij huis: scholen, winkels, sportfaciliteiten en openbaar vervoer zijn op korte afstand. Het centrum van Zwolle en uitvalswegen zijn snel bereikbaar, wat deze locatie ideaal maakt voor comfortabel wonen.

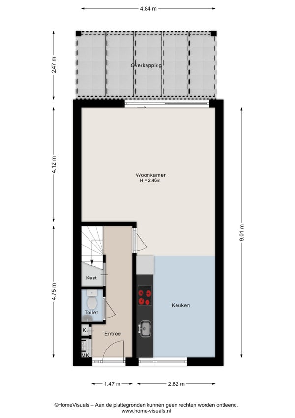
Bij binnenkomst in de hal ontdekt u een praktische trapkast en toegang tot de toiletruimte. De keuken, gelegen aan de straatzijde, is van alle gemakken voorzien. De tuingerichte woonkamer met houten vloer en schuifpui biedt toegang tot de overkapping en tuin.

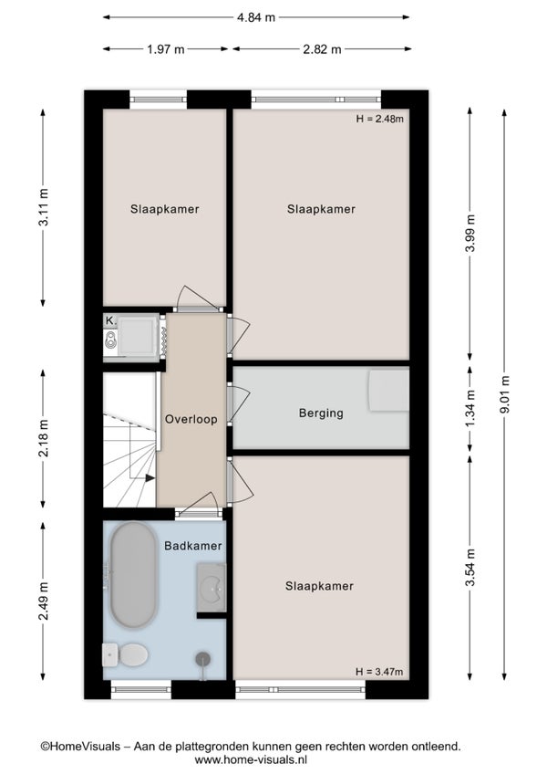
Op de eerste verdieping zijn drie goed formaat slaapkamers, inclusief een met airconditioning en een praktische hoogslaper. De badkamer beschikt over een ligbad, douche, wastafel en een tweede toilet. Een bergkamer en stookruimte completeren dit etage.

De onderhoudsvriendelijke achtertuin met kunstgras, terras en beplanting nodigt uit. U profiteert van een houten berging en eigen parkeerplaats met carport aan de rustige achterzijde. De overkapping aan de woning is perfect om buiten te relaxen. Dit huis is een uitstekende keuze op een gunstige locatie!

Overdracht

Vraagprijs
€ 349.500 k.k.
Aangeboden sinds
27-01-2026
Status
Beschikbaar
Beschikbaar
Per direct

Oppervlakte en inhoud

Woonoppervlakte
87 m²
Perceeloppervlakte
144 m²

Bouw

Type woning
Huis
Soort woning
Tussenwoning (rijtjeshuis), Eengezinswoning
Soort bouw
Bestaande bouw
Bouwjaar
1997

Indeling

Aantal kamers
4
Aantal slaapkamers
3
Aantal badkamers
1

Buitenruimte

Dakterras
Niet aanwezig

Energie

Energielabel
B
Meld een probleem met deze woning