Contact met de aanbieder

Deze woning is gevonden buiten ons eigen netwerk. Via de knop hieronder ga je direct naar de website van de aanbieder.

Nieuw

Backermarke 21

Bekijk kaart
8016 LG Zwolle (Oldenelerbroek)
€ 595.000 k.k.
  • 121 m²
  • 5 kamers
  • 1995

Samenvatting

  • Deze woning wordt sinds 25 februari 2026 aangeboden door Van Amerom Makelaardij;
  • De tussenwoning heeft een woonoppervlakte van 121 m² en beschikt over 5 kamers, waarvan 4 slaapkamers;
  • De woning is gebouwd In 1995 en ligt in de buurt Oldenelerbroek in Zwolle.

Beschrijving

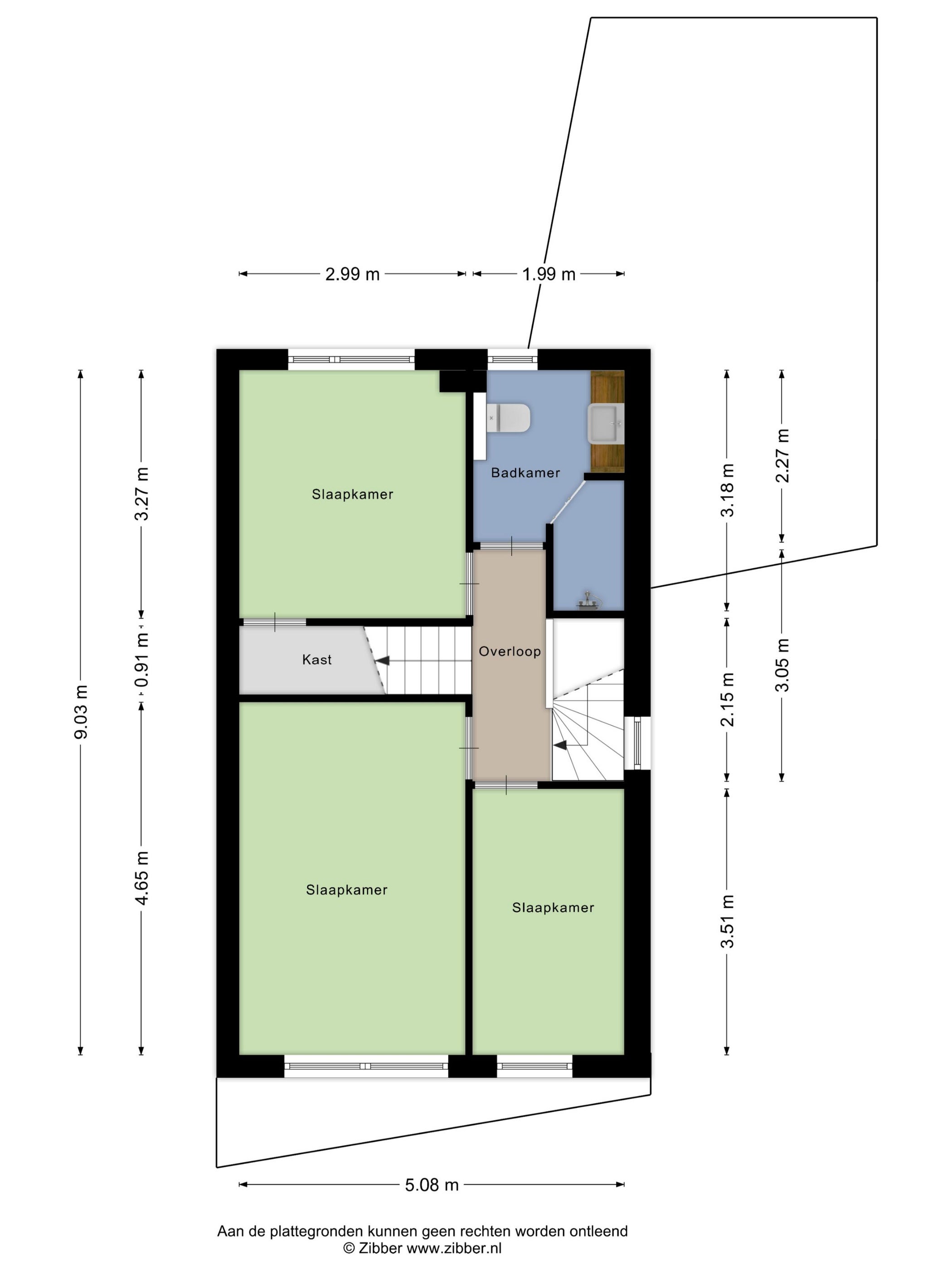
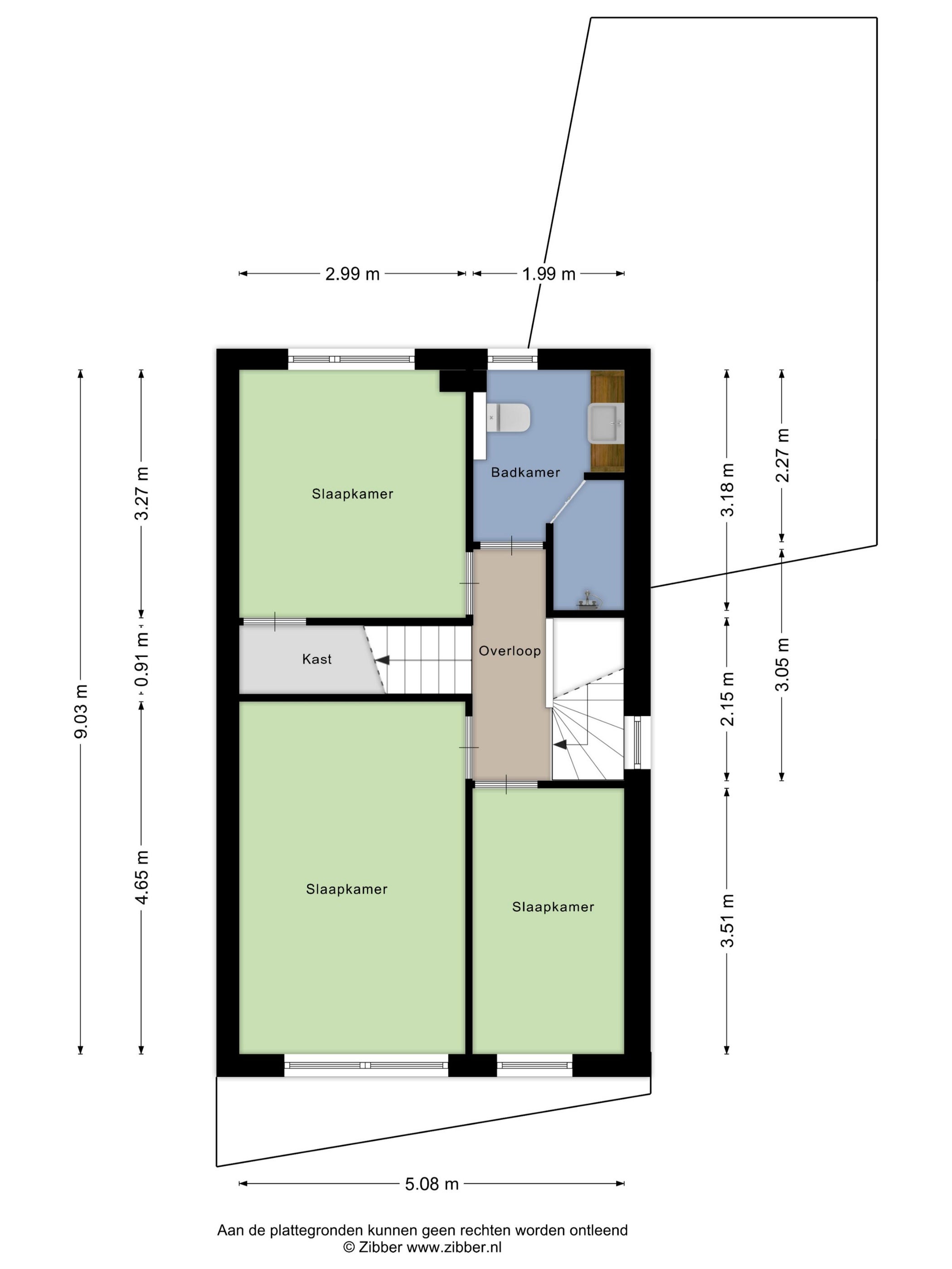
Backermarke 21 is een verrassend leuke en goed onderhouden geschakelde woning met aangebouwde garage, gelegen op een mooie locatie aan de rand van Zwolle-Zuid. Deze comfortabele woning staat op een perceel van 238 m² en heeft een tuin aan zowel de voor- als achterkant, met een oprit voor twee auto’s. Binnen biedt de ruime en lichte woonkamer een vrij uitzicht en is de open keuken uitgerust met moderne inbouwapparatuur, inclusief een Siemens inductie kookplaat. Op de eerste verdieping zijn drie slaapkamers en een badkamer met stoomdouche te vinden. De tweede verdieping fungeert als zolder met een extra kamer. Bij de woning hoort ook een praktische garage, ideaal voor fietsen of als werkruimte. De verzorgde tuin biedt veel privacy en de omgeving is kindvriendelijk en groen.

Overdracht

Vraagprijs
€ 595.000 k.k.
Prijs per m²
€ 4.917
Aangeboden sinds
25-02-2026
Status
Beschikbaar
Beschikbaar
Per direct

Oppervlakte en inhoud

Woonoppervlakte
121 m²
Perceeloppervlakte
238 m²

Bouw

Type woning
Huis
Soort woning
Tussenwoning (rijtjeshuis), Eengezinswoning
Soort bouw
Bestaande bouw
Bouwjaar
1995

Indeling

Aantal kamers
5
Aantal slaapkamers
4
Aantal badkamers
1

Buitenruimte

Dakterras
Niet aanwezig

Energie

Energielabel
C
Meld een probleem met deze woning