Contact met de makelaar

Deze woning is gevonden buiten ons eigen netwerk. Met de knop hieronder kom je direct bij de aanbieder terecht.

Nieuw

Sint Josephpad 7

Bekijk kaart
8021 VS Zwolle (Bollebieste)
€ 395.000 k.k.
  • 105 m²
  • 4 kamers
  • 2000

Samenvatting

  • Deze woning wordt sinds 7 februari 2026 aangeboden door Van Amerom Makelaardij;
  • De tussenwoning heeft een woonoppervlakte van 105 m² en beschikt over 4 kamers, waarvan 3 slaapkamers;
  • De woning is gebouwd In 2000 en ligt in de buurt Bollebieste in Zwolle.

Beschrijving

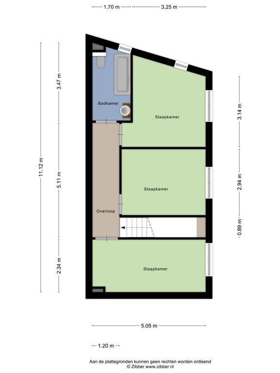
Op korte afstand van de binnenstad van Zwolle staat deze ruime eindwoning op een perceel van 107 m² eigen grond in de wijk Rembrandts Hof, Diezerpoort. Hier vindt u een fijne plek met de gezellige binnenstad en openbaar vervoer op loopafstand. De woning heeft een woonkamer met een halfopen keuken op de begane grond, en drie slaapkamers en een badkamer op de eerste verdieping. Voor de woning ligt een privacyvolle, zongerichte voortuin. De indeling op de begane grond omvat een entree met toilet, ruime woonkamer met openslaande deuren naar de tuin, en een inpandige berging. De eerste verdieping beschikt over een ruime overloop, drie slaapkamers en een badkamer met ligbad. De woning is volledig geïsoleerd, heeft energielabel A en is gebouwd in 2000.

Overdracht

Vraagprijs
€ 395.000 k.k.
Aangeboden sinds
07-02-2026
Status
Beschikbaar
Beschikbaar
Per direct

Oppervlakte en inhoud

Woonoppervlakte
105 m²
Perceeloppervlakte
107 m²

Bouw

Type woning
Huis
Soort woning
Tussenwoning (rijtjeshuis), Eengezinswoning
Soort bouw
Bestaande bouw
Bouwjaar
2000

Indeling

Aantal kamers
4
Aantal slaapkamers
3
Aantal badkamers
1

Buitenruimte

Dakterras
Niet aanwezig

Energie

Energielabel
A
Meld een probleem met deze woning