Te huur: Appartement Maimonideslaan in Amstelveen
Bekijk kaart- 80 m²
- 3 kamers
- 2017
Exclusief voor jou
Deze woning is voor jou beschikbaar via je persoonlijke notificatie en verschijnt niet in de zoekresultaten.
Beschrijving
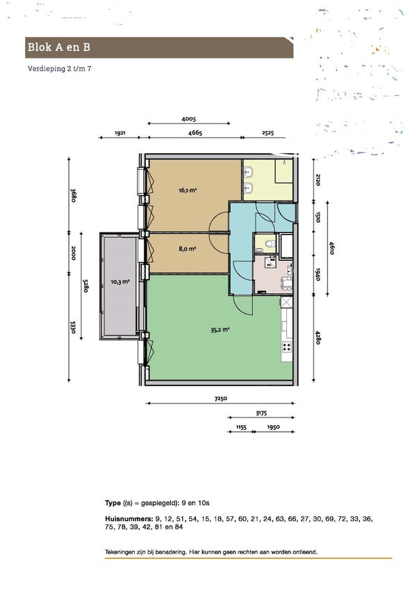
Te huur is een 3-kamer appartement aan de Maimonideslaan 84 in Amstelveen, gelegen op de 7e verdieping en met een oppervlakte van 80 m2. Het appartement, gebouwd in 2017, biedt een eigen parkeerplaats in de parkeergarage. Het balkon kijkt uit op het oosten en heeft een oppervlakte van 10 m2. Dit ruime en lichte appartement beschikt over een toegang vanuit de gang naar de woonkamer, twee slaapkamers, toilet en badkamer. De open keuken in de woonkamer is voorzien van inbouwapparatuur. Deze woning ligt op fietsafstand van het centrum van Amstelveen en nabij winkelcentrum Groenhof. De oprit naar de A9 is binnen 5 minuten bereikbaar en het openbaar vervoer is goed geregeld. Beschikbaar per 01 januari 2026 voor € 1.446,00 per maand plus € 60,00 servicekosten.
Overdracht
- Huurprijs
-
€ 1.446 per maand
- Aangeboden sinds
- 04-12-2025
- Status
- Te huur
- Beschikbaar
- Per direct
Oppervlakte en inhoud
- Woonoppervlakte
- 80 m²
Bouw
- Type woning
- Appartement
- Soort woning
- Galerijflat
- Soort bouw
- Bestaande bouw
- Bouwjaar
- 2017
Indeling
- Aantal kamers
- 3
- Aantal slaapkamers
- 2
- Aantal badkamers
- 1
Buitenruimte
- Dakterras
- Niet aanwezig
Energie
- Energielabel
- A
Huurvoorwaarden
- Doelgroep
- Werkende