Nieuw
Te huur: Appartement Burgemeester Rijnderslaan in Amstelveen
Bekijk kaart1185 MC (Van der Leekbuurt)
€ 1.790
per maand
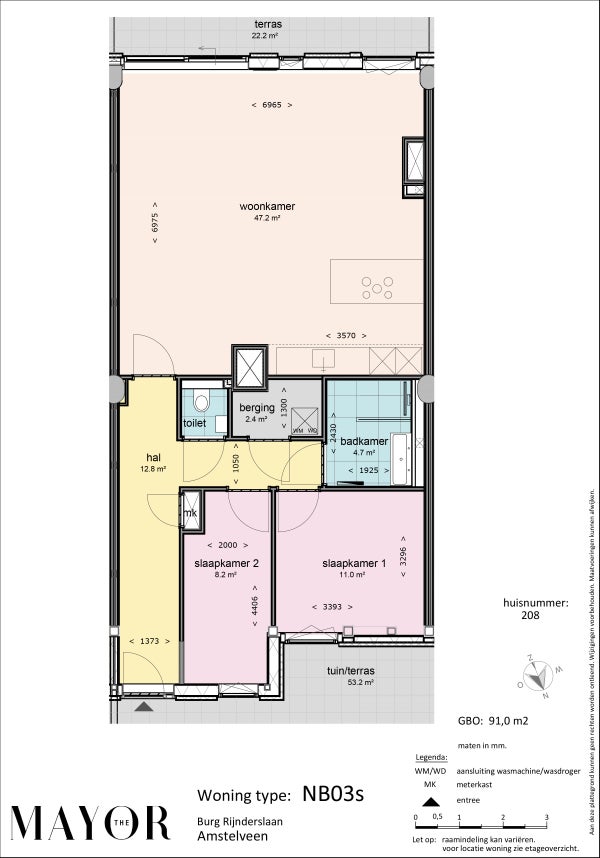
- 91 m²
- 3 kamers
- 1990
Exclusief voor jou
Deze woning is voor jou beschikbaar via je persoonlijke notificatie en verschijnt niet in de zoekresultaten.
Beschrijving
Dit royale driekamerappartement van ca. 91 m² ligt op de begane grond en biedt veel mogelijkheden voor indeling. De luxe badkamer is voorzien van een inloopdouche en de volledig uitgeruste keuken beschikt over moderne apparatuur. Vloerverwarming zorgt voor extra ruimte, omdat er geen radiatoren nodig zijn. Het appartement komt met een eigen parkeerplaats en een separate berging, wat het ideaal maakt voor wie comfort en stijl zoekt.
Overdracht
- Huurprijs
-
€ 1.790 per maand
- Aangeboden sinds
- 04-12-2025
- Status
- Te huur
- Beschikbaar
- Per direct
Oppervlakte en inhoud
- Woonoppervlakte
- 91 m²
Bouw
- Type woning
- Appartement
- Soort woning
- Galerijflat
- Soort bouw
- Bestaande bouw
- Bouwjaar
- 1990
Indeling
- Aantal kamers
- 3
- Aantal slaapkamers
- 2
- Aantal badkamers
- 1
Buitenruimte
- Dakterras
- Niet aanwezig
Energie
- Energielabel
- A+
Huurvoorwaarden
- Doelgroep
- Werkende