Nieuw
Te huur: Appartement Burgemeester Rijnderslaan in Amstelveen
Bekijk kaart1185 MC (Van der Leekbuurt)
€ 1.878
per maand
- 99 m²
- 3 kamers
- 1990
Exclusief voor jou
Deze woning is voor jou beschikbaar via je persoonlijke notificatie en verschijnt niet in de zoekresultaten.
Beschrijving
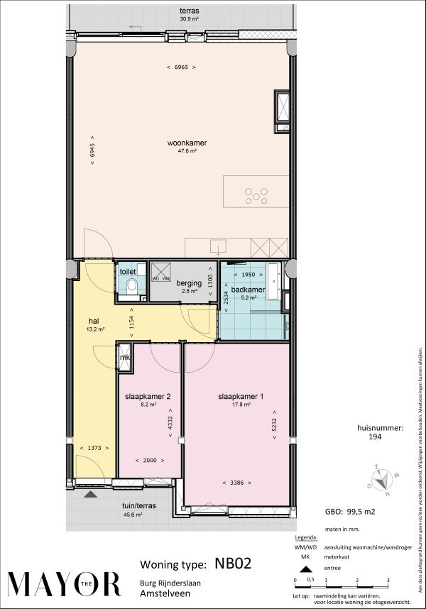
Dit royale driekamerappartement van ca. 99,5 m² bevindt zich op de begane grond en biedt volop mogelijkheden voor indeling. Het beschikt over vloerverwarming en een moderne, volledig uitgeruste Siemens keuken. De luxe badkamer is voorzien van een inloopdouche en dubbele wasbak. Bij het appartement hoort ook een eigen parkeerplaats en een separate berging. Gelegen op een ideale locatie dichtbij allerlei voorzieningen.
Overdracht
- Huurprijs
-
€ 1.878 per maand
- Aangeboden sinds
- 04-12-2025
- Status
- Te huur
- Beschikbaar
- Per direct
Oppervlakte en inhoud
- Woonoppervlakte
- 99 m²
Bouw
- Type woning
- Appartement
- Soort woning
- Galerijflat
- Soort bouw
- Bestaande bouw
- Bouwjaar
- 1990
Indeling
- Aantal kamers
- 3
- Aantal slaapkamers
- 2
- Aantal badkamers
- 1
Buitenruimte
- Dakterras
- Niet aanwezig
Energie
- Energielabel
- A+
Huurvoorwaarden
- Doelgroep
- Werkende