Contact met de makelaar

Deze woning is gevonden buiten ons eigen netwerk. Met de knop hieronder kom je direct bij de aanbieder terecht.

Nieuw

Koningsstraat 52 2

Bekijk kaart
1011 EW Amsterdam (Nieuwmarkt/Lastage)
€ 400.000 k.k.
  • 42 m²
  • 2 kamers
  • 1770

Samenvatting

  • Deze woning wordt sinds 27 januari 2026 aangeboden door Hausing;
  • De bovenwoning heeft een woonoppervlakte van 42 m² en beschikt over 2 kamers, waarvan 1 slaapkamer;
  • De woning is gebouwd In 1770 en ligt in de buurt Nieuwmarkt/Lastage in Amsterdam.

Beschrijving

---ENGLISH TRANSLATION BELOW---

Introductie
Prachtig gelegen in het historische hart van Amsterdam biedt dit charmante appartement aan de Koningsstraat 52-2 een unieke kans om te wonen in een gemeentelijk monument in het geliefde Nieuwmarktgebied. De woning is gelegen op de tweede verdieping van een karakteristiek pand en is in 2022 volledig gerenoveerd. Hierbij zijn alle installaties, afwerkingen en voorzieningen vernieuwd, waardoor modern wooncomfort naadloos is gecombineerd met het authentieke karakter van het gebouw.

Algemene omschrijving
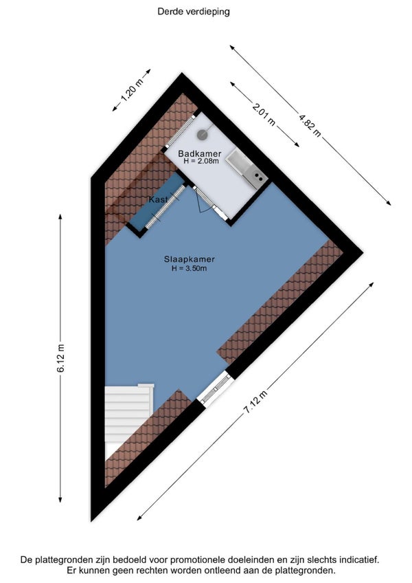
Het appartement heeft een woonoppervlakte van circa 42 vierkante meter en is verdeeld over twee woonlagen. De woning beschikt over één slaapkamer, één badkamer en een separaat toilet. Als gemeentelijk monument behoudt het appartement zijn historische uitstraling, terwijl de recente renovatie zorgt voor een hoogwaardige afwerking en een instapklare staat. Op de bovenverdieping bevinden zich de privévertrekken, waaronder de slaapkamer, de badkamer en een praktische wasruimte met aansluitingen voor een wasmachine en droger.

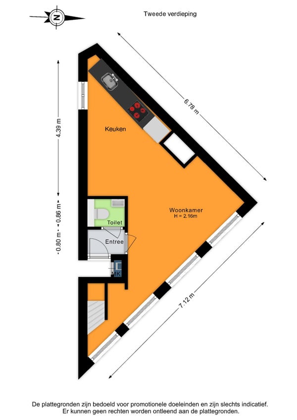
Indeling
Bij binnenkomst bevindt zich direct tegenover de entree het separate toilet. Aan de rechterzijde ligt de woonkamer met een open keuken en eetgedeelte. De luxe open keuken is voorzien van hoogwaardige inbouwapparatuur en wordt aangevuld met een vaste zitbank met eettafel, wat zorgt voor een gezellige en functionele leefruimte. Vanuit de woonkamer leidt, net om de hoek, een trap naar de bovenverdieping. Hier bevinden zich de ruime slaapkamer, de badkamer en een praktische was- en opbergruimte, gunstig gesitueerd naast de badkamer. De indeling is logisch en efficiënt en biedt comfort en privacy.

Eigendomssituatie grond
De woning is gelegen op eigen grond. Er is geen sprake van erfpacht, waardoor geen canon verschuldigd is.

Vereniging van Eigenaars (VvE)
De Vereniging van Eigenaars bestaat uit drie leden en wordt professioneel beheerd. De VvE beschikt over een reservefonds van circa €4.500 en werkt op basis van een meerjarenonderhoudsplan. De maandelijkse bijdrage voor dit appartement bedraagt €230,67.

Ligging en bereikbaarheid
De Koningsstraat is gelegen in het bruisende Nieuwmarktgebied, midden in het centrum van Amsterdam. De omgeving kenmerkt zich door een levendige sfeer met tal van restaurants, cafés, winkels en markten op loopafstand. De bereikbaarheid is uitstekend dankzij diverse tram- en metroverbindingen in de directe nabijheid, evenals een korte afstand tot Amsterdam Centraal. De locatie combineert historische charme met optimaal stedelijk gemak.

Oplevering en kosten koper
De koper draagt alle kosten die verband houden met de aankoop van de woning. Hieronder vallen onder andere de notariskosten voor het opstellen van de koopovereenkomst en de leveringsakte, de overdrachtsbelasting en eventuele aanvullende kosten zoals een taxatierapport of bouwkundige keuring. In de koopovereenkomst en de leveringsakte zullen een asbestclausule, ouderdomsclausule, “as is”-clausule en niet-bewoningsclausule worden opgenomen.

---ENGLISH TRANSLATION BELOW---

Introduction
Stunningly located in the historic heart of Amsterdam, this charming apartment at Koningsstraat 52-2 offers a unique opportunity to live in a municipal monument within the highly sought-after Nieuwmarkt area. Situated on the second floor of a characteristic building, the apartment was fully renovated in 2022 and now offers modern living comfort within a historic setting. The careful renovation has resulted in an attractive city home where character and contemporary finishes are seamlessly combined.

General descriptions
The apartment has a total living area of approximately 42 square metres and is arranged over two residential floors. It features one bedroom, one bathroom and a separate toilet. As a municipal monument, the property retains its architectural character, while the recent renovation ensures that all installations, finishes and fittings are modern and in excellent condition. The upper floor accommodates the private areas of the apartment, including the bedroom, bathroom and a dedicated laundry space with room for a washing machine and dryer.

Layout
Upon entering the apartment, the separate toilet is located directly opposite the entrance. To the right, you enter the living room, which opens into a bright and inviting space with an open kitchen and dining area. The kitchen is finished to a high standard and equipped with various high-quality built-in appliances. A fixed built-in bench with dining table creates a cosy and functional dining area. From the living room, as you turn the corner, a staircase leads to the upper floor. This level comprises the spacious bedroom, a well-appointed bathroom and a practical laundry and storage closet, conveniently positioned next to the bathroom. The layout is efficient, logical and well suited to comfortable city living.

Freehold
The apartment is located on freehold land, meaning there is no leasehold and no ground rent payable.

Home owners association
The homeowners association is professionally managed and consists of three members. The VvE maintains a cash reserve of approximately €4,500 and operates based on a multi-year maintenance plan. The monthly contribution for this apartment amounts to €230.67.

Location and accessibility
Koningsstraat is located in the vibrant Nieuwmarkt area, right in the centre of Amsterdam. The neighbourhood is known for its historic atmosphere, lively streets, restaurants, cafés and local markets. All daily amenities are within walking distance, and public transport connections are excellent, with metro, tram and Central Station nearby. This central location offers easy access to all parts of the city while retaining a distinctive Amsterdam character.

Delivery and buyers cost conditions
The buyer bears all costs associated with the purchase of the property, including notary fees for drafting the purchase agreement and deed of transfer, transfer tax and any additional costs such as a valuation report or structural inspection. The purchase agreement and deed of delivery will include an asbestos clause, age clause, “as is” clause and non-occupancy clause.

Overdracht

Vraagprijs
€ 400.000 k.k.
Aangeboden sinds
27-01-2026
Status
Beschikbaar
Beschikbaar
Per direct
Onderhoudsstaat
Goed

Oppervlakte en inhoud

Woonoppervlakte
42 m²
Inhoud
140 m³

VvE informatie

Inschrijving KvK
Ja
Jaarlijkse vergadering
Ja
Periodieke bijdrage
Ja (€ 231 per maand)
Reservefonds aanwezig
Ja
Onderhoudsplan
Ja
Opstalverzekering
Ja

Bouw

Type woning
Appartement
Soort woning
Bovenwoning, Appartement
Soort bouw
Bestaande bouw
Bouwjaar
1770
Ligging
In het centrum

Indeling

Aantal kamers
2
Aantal slaapkamers
1
Aantal badkamers
1
Aantal woonlagen
2
Verdieping
3
Woonlagen complex
3
Voorzieningen
  • Douche
  • Toilet

Buitenruimte

Balkon
Niet aanwezig
Tuin
Niet aanwezig
Dakterras
Niet aanwezig

Energie

Isolatie
Gedeeltelijk dubbele beglazing
Energielabel
C

Bergruimte

Schuur/Berging
Niet aanwezig

Parkeergelegenheid

Aanwezig
Ja
Soort parkeergelegenheid
Vergunning

Garage

Aanwezig
Nee
Meld een probleem met deze woning