Contact met de makelaar

Deze woning is gevonden buiten ons eigen netwerk. Met de knop hieronder kom je direct bij de aanbieder terecht.

Nieuw

J.F. van Hengelstraat

Bekijk kaart
1019 TB Amsterdam (Oostelijk Havengebied)
€ 895.000 k.k.
  • 130 m²
  • 5 kamers
  • 1998

Samenvatting

  • Deze woning wordt sinds 27 januari 2026 aangeboden door Kolt Makelaardij;
  • De tussenwoning heeft een woonoppervlakte van 130 m² en beschikt over 5 kamers, waarvan 4 slaapkamers;
  • De woning is gebouwd In 1998 en ligt in de buurt Oostelijk Havengebied in Amsterdam.

Beschrijving

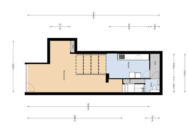
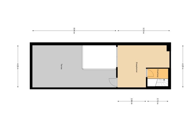
Deze ruime en uitgebouwde eengezinswoning van 130 m² strekt zich over drie verdiepingen uit. Het huis heeft 4 slaapkamers en biedt de mogelijkheid voor een tweede badkamer. Op de tweede verdieping bevindt zich een prachtig zonnig dakterras van 26,80 m², ideaal voor ontspanning. Gelegen op het Sporenburg-eiland in een kindvriendelijke buurt, ligt het huis vlakbij het Keesje Brijdeplantsoen.

De indeling begint met een lichte woonkamer met hoge plafonds van 3,25 meter en een open keuken aan de achterzijde, uitgerust met diverse inbouwapparatuur. Op de eerste verdieping zijn er drie slaapkamers en een multifunctionele ruimte die kan worden omgevormd tot een aparte kamer. De tweede verdieping biedt toegang tot de vierde slaapkamer en de mogelijkheid voor een tweede badkamer.

De woning heeft een energielabel A, drie zonnepanelen en maakt deel uit van een actieve VvE. Er is voldoende parkeergelegenheid met een bewonersvergunning. In de omgeving vindt u scholen, restaurants en wateractiviteiten. Met de fiets is het centrum in 15 minuten bereikbaar.

Overdracht

Vraagprijs
€ 895.000 k.k.
Aangeboden sinds
27-01-2026
Status
Beschikbaar
Beschikbaar
In overleg

Oppervlakte en inhoud

Woonoppervlakte
130 m²

Bouw

Type woning
Huis
Soort woning
Tussenwoning (rijtjeshuis), Eengezinswoning
Soort bouw
Bestaande bouw
Bouwjaar
1998

Indeling

Aantal kamers
5
Aantal slaapkamers
4
Aantal badkamers
1

Buitenruimte

Dakterras
Niet aanwezig

Energie

Energielabel
A
Meld een probleem met deze woning