Contact met de makelaar

Deze woning is gevonden buiten ons eigen netwerk. Met de knop hieronder kom je direct bij de aanbieder terecht.

Cornelis Trooststraat

Bekijk kaart
1072 JA Amsterdam (Nieuwe Pijp)
€ 650.000 k.k.
  • 72 m²
  • 3 kamers
  • 1905

Samenvatting

  • Deze woning wordt sinds 2 maanden aangeboden door PB Makelaars o.z.;
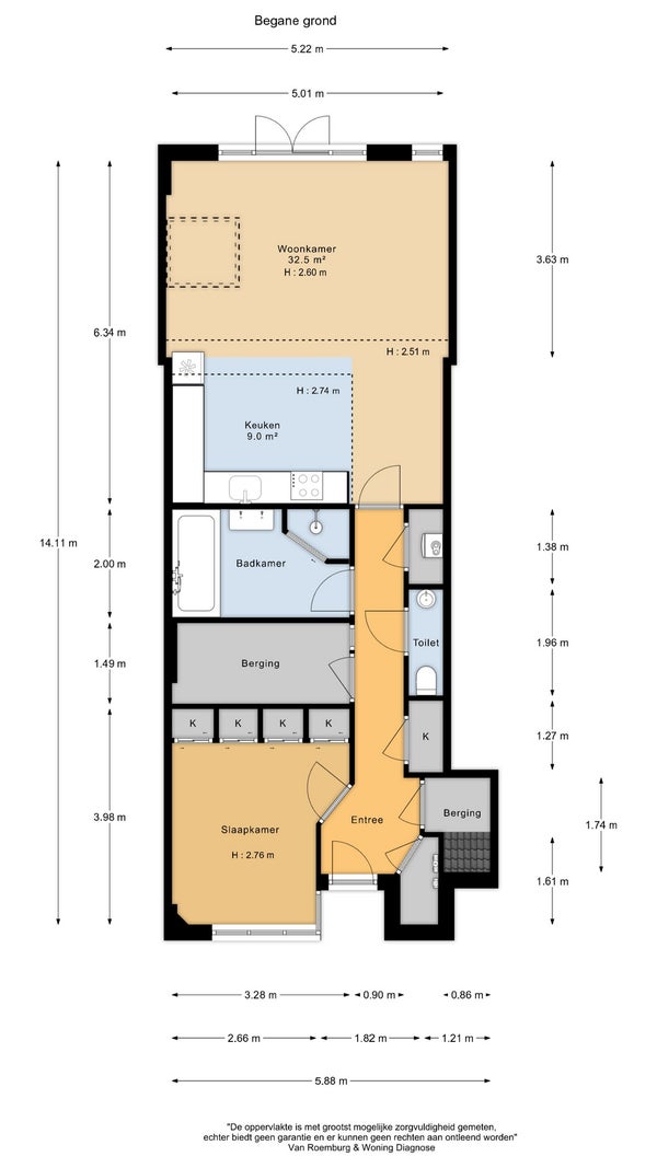
  • De galerijflat heeft een woonoppervlakte van 72 m² en beschikt over 3 kamers, waarvan 2 slaapkamers;
  • De woning is gebouwd In 1905 en ligt in de buurt Nieuwe Pijp in Amsterdam.

Beschrijving

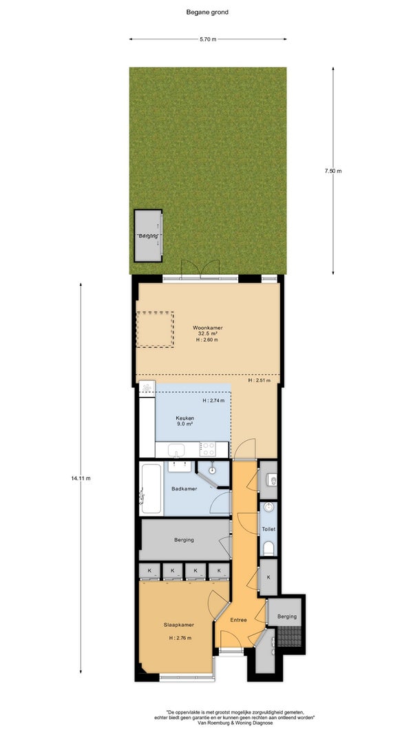
Ontdek dit sfeervolle begane grond appartement van ca. 72 m², gelegen op een rustige straat tussen De Pijp en De Rivierenbuurt. De woning beschikt over een royale tuin van ca. 40 m², een open keuken met inbouwapparatuur, een moderne badkamer met ligbad, douche en dubbele wastafel, en een aparte toilet en wasruimte. De master slaapkamer biedt ruimte voor een groot bed en kasten, terwijl de tweede kamer perfect is voor een werkkamer of logeerkamer. De locatie is ideaal met voorzieningen zoals de Albert Cuypmarkt, shops en cafés binnen handbereik. Openbaar vervoer is nabij, met trams en de Noord/Zuidlijn op loopafstand. De woning is gelegen op eigen grond, zonder erfpacht.

Overdracht

Vraagprijs
€ 650.000 k.k.
Aangeboden sinds
30-10-2025
Status
Beschikbaar
Beschikbaar
Per direct

Oppervlakte en inhoud

Woonoppervlakte
72 m²

Bouw

Type woning
Appartement
Soort woning
Galerijflat
Soort bouw
Bestaande bouw
Bouwjaar
1905

Indeling

Aantal kamers
3
Aantal slaapkamers
2
Aantal badkamers
1

Buitenruimte

Dakterras
Niet aanwezig

Energie

Energielabel
C
Meld een probleem met deze woning