Contact met de makelaar

Deze woning is gevonden buiten ons eigen netwerk. Met de knop hieronder kom je direct bij de aanbieder terecht.

Onder bod

Lamarckhof 7 1

Bekijk kaart
1098 TJ Amsterdam (Middenmeer)
€ 495.000 k.k.
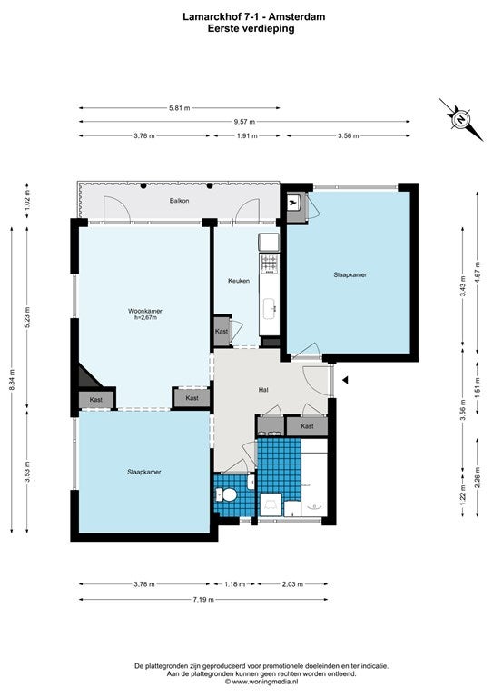
  • 75 m²
  • 3 kamers
  • 1955

Samenvatting

  • Deze woning wordt sinds 8 weken aangeboden door Apollo Makelaardij Groot Amsterdam;
  • De tussenverdieping heeft een woonoppervlakte van 75 m² en beschikt over 3 kamers, waarvan 2 slaapkamers;
  • De woning is gebouwd In 1955 en ligt in de buurt Middenmeer in Amsterdam.

Beschrijving

Meer woninginformatie bekijken?

Log in of registreer gratis.

Overdracht

Vraagprijs
€ 495.000 k.k.
Aangeboden sinds
02-09-2025
Status
Onder bod
Beschikbaar
In overleg
Onderhoudsstaat
Goed

Oppervlakte en inhoud

Woonoppervlakte
75 m²
Inhoud
246 m³

VvE informatie

Inschrijving KvK
Ja
Jaarlijkse vergadering
Ja
Periodieke bijdrage
Ja (€ 153 per maand)
Reservefonds aanwezig
Ja
Onderhoudsplan
Ja
Opstalverzekering
Ja

Bouw

Type woning
Appartement
Soort woning
Tussenverdieping, Appartement
Soort bouw
Bestaande bouw
Bouwjaar
1955
Ligging
  • Aan een rustige weg
  • In een woonwijk
  • Nabij het openbaar vervoer
  • Nabij een school
  • Nabij een winkelcentrum

Indeling

Aantal kamers
3
Aantal slaapkamers
2
Aantal badkamers
1
Aantal woonlagen
1
Voorzieningen
  • Bergruimte
  • Toilet

Buitenruimte

Balkon
Niet aanwezig
Dakterras
Niet aanwezig

Energie

Isolatie
Dubbele beglazing
Verwarming
CV-ketel, Zonnecollector
Warm water
CV-ketel
Cv-ketel
Intergas HR eco (Gas, uit 2020, Gehuurd)
Energielabel
A

Bergruimte

Schuur/Berging
Aanwezig

Parkeergelegenheid

Aanwezig
Ja
Soort parkeergelegenheid
Betaald
Meld een probleem met deze woning
Contact met de makelaar Bel