Contact met de makelaar

Deze woning is gevonden buiten ons eigen netwerk. Met de knop hieronder kom je direct bij de aanbieder terecht.

Verkocht onder voorbehoud

Daniël Defoelaan 281

Bekijk kaart
1102 ZH Amsterdam (Venserpolder)
€ 299.000 k.k.
  • 58 m²
  • 2 kamers
  • 1984

Samenvatting

  • Deze woning wordt sinds 7 weken aangeboden door STERK! Makelaars;
  • De benedenwoning heeft een woonoppervlakte van 58 m² en beschikt over 2 kamers, waarvan 1 slaapkamer;
  • De woning is gebouwd In 1984 en ligt in de buurt Venserpolder in Amsterdam.

Beschrijving

Dit energiezuinige 2-kamer appartement van 58 m2 op de begane grond met eigen tuin, ligt in een rustige straat vlakbij bij de Johan Cruijff Arena.
Het complex biedt een afgesloten portiek, inpandige bergingen en wordt beheerd door een gezonde en actieve VvE.
Aan de achterzijde van de woning bevindt zich een kleine tuin (eigendom) alwaar je heerlijk kunt genieten zomers van een goeie koffie in de ochtend of een lekker wijntje na het werk.

Winkelcentrum Amsterdamse Poort met diverse winkels en supermarkten leent zich goed voor je dagelijkse boodschappen. De bereikbaarheid is uitstekend. Er zijn diverse metrostations in de nabije omgeving. Reis je met de auto dan zit je zeer snel op één van de uitvalswegen. Heb je behoefte aan de natuur dan ben je binnen enkele minuten in het Nelson Mandelapark; of de Ouderkerkerplas en de Gaasperplas.

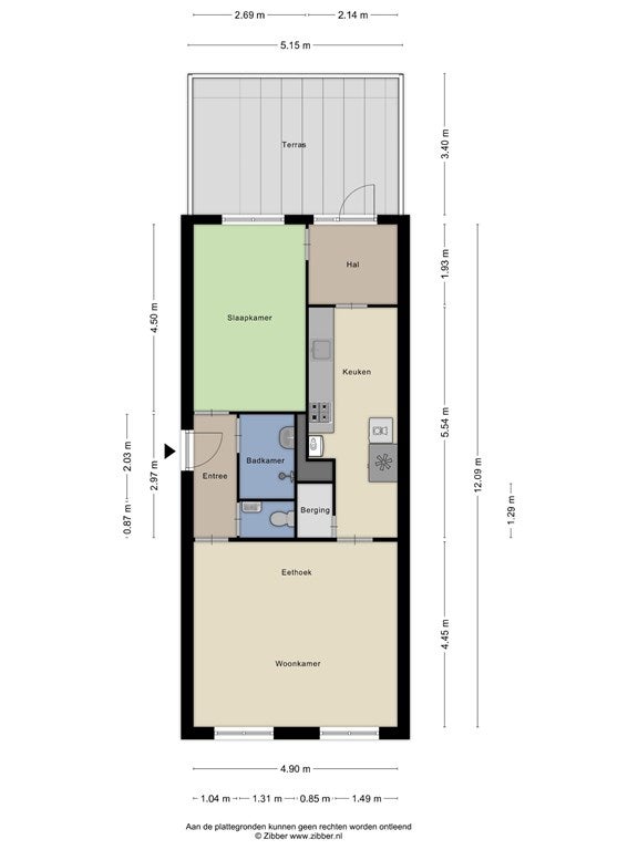
Indeling :
Hal, met toegang naar de slaapkamer aan de achtzijde en toegang naar de woonkamer aan de voorzijde.
Achter de keuken/slaapkamer bevindt zich nog een extra ruimte (bijkeuken) die momenteel vol staat met dozen (vandaar geen foto).
Op de plattegrond tref je de exacte maatvoeringen (ongeveer 2 bij 2 = 4 m2)
De woning is voorzien van kunststof kozijn en dubbel glas waardoor er geen hinder is van omgevingsgeluid.
Laminaatvloer in de hal, slaapkamer en woonkamer.
De slaapkamer, badkamer en keuken hebben wat liefde nodig en dienen te worden geoptimaliseerd/gerenoveerd.

Kortom : ideale kans voor jonge starters die op zoek zijn naar een eigen woning met tuin op een leuke locatie alwaar je jouw je eigen plekje kunt gaan creëren.
Wacht niet en pak deze kans vandaag nog.

BIJZONDERHEDEN :
Erfpacht eeuwigdurend afgekocht
Energielabel : B
Loopafstand van de metro
Eigen tuintje
Actieve/gezonde VVE
Niet zelfbewoningsclausule van toepassing
Recentelijk is de cv ketel vervangen
Recentelijk een nieuw keukenblok aangebracht
Elektrische rolluiken aan achterzijde
Eigen berging
Servicekosten : € 154,55 per maand
Oplevering 1 april 2026
Vaste Notaris : Diemernotariaat

This 58 m² ground-floor, 2-room apartment with a private garden is located on a quiet street close to the Johan Cruijff Arena.
The building features a secured entrance, internal storage rooms, and is managed by a healthy and active homeowners’ association (VvE).
At the rear of the property, you’ll find a small private garden where you can enjoy a good cup of coffee on summer mornings or relax with a nice glass of wine after work.

The Amsterdamse Poort shopping center, with various shops and supermarkets, is perfect for your daily groceries. Accessibility is excellent, with several metro stations nearby. Travelling by car, you can quickly reach one of the major highways. If you’re looking for nature, you can reach Nelson Mandela Park within minutes, as well as Ouderkerkerplas and Gaasperplas.

Layout:
Hallway with access to the bedroom at the rear and the living room at the front.
Behind the kitchen/bedroom, there is an additional space (utility room) which is currently filled with boxes (that's the reason there's no photo).
On the floor plan, you can find the exact measurements (approximately 2 by 2 meters = 4 m²).
The apartment is fitted with plastic window frames and double glazing, ensuring no disturbance from outside noise.
Laminate flooring in the hallway, bedroom, and living room.
The bedroom, bathroom, and kitchen need some attention/love and require optimization/renovation.

In short: an ideal opportunity for young first-time buyers looking for a home with a garden in a nice location, where you can create your own cozy space.
Don’t wait—grab this chance today !

Details:

Leasehold bought off in perpetuity
Walking distance to the metro
Private garden
Active/healthy homeowners’ association (VvE)
Non-owner-occupancy clause applies
Central heating boiler recently replaced
New kitchen unit recently installed
Electric shutters at the backside of the houde
Private storage room
Service costs: € 154,55 per month
Delivery date: April 1, 2026
Fixed notary: Diemernotariaat

Overdracht

Vraagprijs
€ 299.000 k.k.
Aangeboden sinds
28-11-2025
Status
Verkocht onder voorbehoud
Beschikbaar
In overleg
Onderhoudsstaat
Redelijk

Oppervlakte en inhoud

Woonoppervlakte
58 m²
Inhoud
192 m³

Bouw

Type woning
Appartement
Soort woning
Benedenwoning, Appartement
Soort bouw
Bestaande bouw
Bouwjaar
1984
Ligging
  • Aan een rustige weg
  • In een woonwijk

Indeling

Aantal kamers
2
Aantal slaapkamers
1
Aantal badkamers
1
Aantal woonlagen
1
Verdieping
1
Voorzieningen
Rolluiken

Buitenruimte

Balkon
Niet aanwezig
Tuin
Aanwezig
Tuinbeschrijving
achtertuin
Achterom
Niet aanwezig
Dakterras
Niet aanwezig

Energie

Isolatie
Dubbele beglazing, Volledig geïsoleerd
Verwarming
CV-ketel
Warm water
CV-ketel
Energielabel
B

Bergruimte

Schuur/Berging
Aanwezig

Parkeergelegenheid

Aanwezig
Ja
Soort parkeergelegenheid
Betaald

Garage

Aanwezig
Ja
Meld een probleem met deze woning