Contact met de makelaar

Deze woning is gevonden buiten ons eigen netwerk. Met de knop hieronder kom je direct bij de aanbieder terecht.

Nieuw

Edisonstraat

Bekijk kaart
1098 TB Amsterdam (Middenmeer)
€ 525.000 k.k.
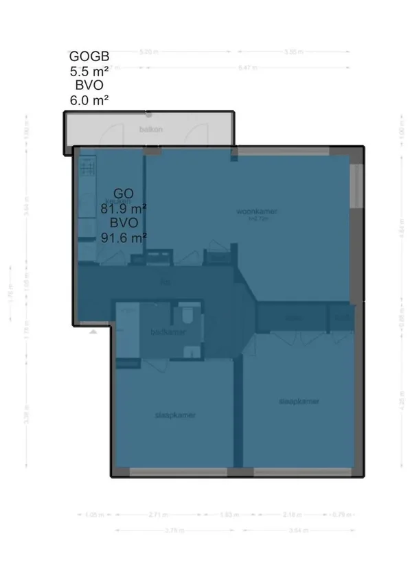
  • 82 m²
  • 3 kamers
  • 1954

Samenvatting

  • Deze woning wordt sinds 22 januari 2026 aangeboden door Von Poll Real Estate;
  • De galerijflat heeft een woonoppervlakte van 82 m² en beschikt over 3 kamers, waarvan 2 slaapkamers;
  • De woning is gebouwd In 1954 en ligt in de buurt Middenmeer in Amsterdam.

Beschrijving

Edisonstraat 22-2 is een licht en ruim hoekappartement aan de bovenste etage in de veelgevraagde Watergraafsmeer. Bij binnenkomst in de hal heeft u toegang tot verschillende ruimtes. De net afgewerkte keuken biedt toegang tot een balkon aan de voorzijde, perfect voor ontspanning in de zon. De royale hoekzitkamer profiteert van veel lichtinval door grote raampartijen. Verder zijn er twee ruime slaapkamers, waarvan één met ingebouwde kledingkast en de ander met directe toegang tot de badkamer, die voorzien is van een ligbad, wastafel en toilet. Ook is er een royale berging voor extra opslag. Het appartement biedt een woonoppervlak van 81 m² en ligt op eigen grond, met een maandelijkse bijdrage van € 184,-. In de omgeving vindt u gezellige horecagelegenheden en parken, met uitstekende bereikbaarheid van het stadscentrum.

Overdracht

Vraagprijs
€ 525.000 k.k.
Aangeboden sinds
22-01-2026
Status
Beschikbaar
Beschikbaar
Per direct

Oppervlakte en inhoud

Woonoppervlakte
82 m²

Bouw

Type woning
Appartement
Soort woning
Galerijflat
Soort bouw
Bestaande bouw
Bouwjaar
1954

Indeling

Aantal kamers
3
Aantal slaapkamers
2
Aantal badkamers
1

Buitenruimte

Dakterras
Niet aanwezig

Energie

Energielabel
G
Meld een probleem met deze woning