Contact met de makelaar

Deze woning is gevonden buiten ons eigen netwerk. Met de knop hieronder kom je direct bij de aanbieder terecht.

Nieuw

Amstelveenseweg

Bekijk kaart
1081 JE Amsterdam (Buitenveldert-West)
€ 1.650.000 k.k.
  • 174 m²
  • 4 kamers
  • 1998

Samenvatting

  • Deze woning wordt sinds 22 januari 2026 aangeboden door Von Poll Real Estate;
  • De tussenwoning heeft een woonoppervlakte van 174 m² en beschikt over 4 kamers, waarvan 3 slaapkamers;
  • De woning is gebouwd In 1998 en ligt in de buurt Buitenveldert-West in Amsterdam.

Beschrijving

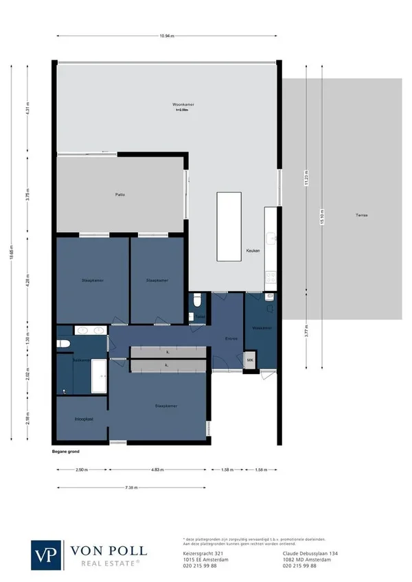
Deze unieke patiobungalow van 174 m² ligt aan het water in het Gijsbrecht van Aemstelpark. Gebouwd in 1998 door architecten Claus en Kaan, biedt de woning drie slaapkamers en ruime buitenruimtes die perfect aansluiten op het interieur. In 2021 zijn zowel de keuken als de badkamer volledig vernieuwd. De mooie raampartijen laten veel licht binnen en de patio zorgt voor een open feeling. De woning heeft een royale woonkamer met een open keuken, een grote berging met wasmachineaansluiting en een hoofdslaapkamer met inloopkast. De luxe badkamer beschikt over een ligbad en inloopdouche. Rustig gelegen achter de Amstelveenseweg, zijn stad en natuur dichtbij. Er zijn twee privéparkeerplaatsen, vloerverwarming en een geïntegreerd ventilatiesysteem.

Overdracht

Vraagprijs
€ 1.650.000 k.k.
Aangeboden sinds
22-01-2026
Status
Beschikbaar
Beschikbaar
Per direct

Oppervlakte en inhoud

Woonoppervlakte
174 m²
Perceeloppervlakte
254 m²

Bouw

Type woning
Huis
Soort woning
Tussenwoning (rijtjeshuis), Eengezinswoning
Soort bouw
Bestaande bouw
Bouwjaar
1998

Indeling

Aantal kamers
4
Aantal slaapkamers
3
Aantal badkamers
1

Buitenruimte

Dakterras
Niet aanwezig

Energie

Energielabel
B
Meld een probleem met deze woning