Contact met de makelaar

Deze woning is gevonden buiten ons eigen netwerk. Met de knop hieronder kom je direct bij de aanbieder terecht.

Nieuw

Spuistraat 199 A

Bekijk kaart
1012 VN Amsterdam (Burgwallen-Nieuwe Zijde)
€ 450.000 k.k.
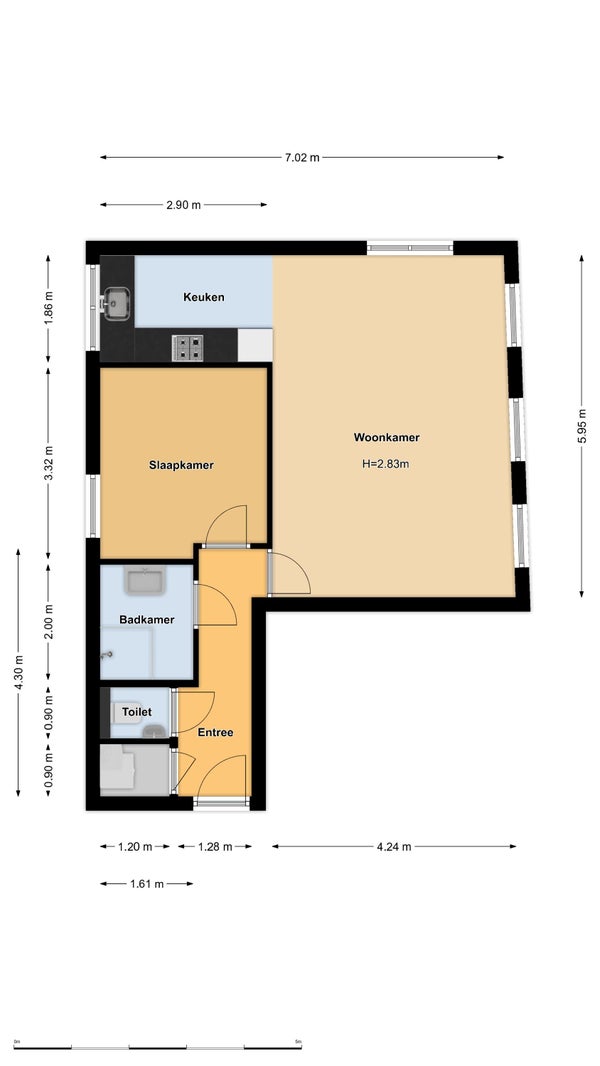
  • 52 m²
  • 2 kamers
  • 1710

Samenvatting

  • Deze woning wordt sinds 17 oktober 2025 aangeboden door Peter Bruin Makelaardij;
  • De tussenverdieping heeft een woonoppervlakte van 52 m² en beschikt over 2 kamers, waarvan 1 slaapkamer;
  • De woning is gebouwd In 1710 en ligt in de buurt Burgwallen-Nieuwe Zijde in Amsterdam.

Beschrijving

Meer woninginformatie bekijken?

Log in of registreer gratis.

Overdracht

Vraagprijs
€ 450.000 k.k.
Aangeboden sinds
17-10-2025
Status
Beschikbaar
Beschikbaar
In overleg
Bijzonderheden
Beschermd stads- of dorpsgezicht
Onderhoudsstaat
Goed

Oppervlakte en inhoud

Woonoppervlakte
52 m²
Inhoud
188 m³

VvE informatie

Inschrijving KvK
Ja
Jaarlijkse vergadering
Ja
Periodieke bijdrage
Ja (€ 114 per maand)
Reservefonds aanwezig
Ja
Onderhoudsplan
Ja
Opstalverzekering
Ja

Bouw

Type woning
Appartement
Soort woning
Tussenverdieping, Appartement
Soort bouw
Bestaande bouw
Bouwjaar
1710
Ligging
In het centrum

Indeling

Aantal kamers
2
Aantal slaapkamers
1
Aantal badkamers
1
Aantal woonlagen
1
Voorzieningen
  • Douche
  • Toilet

Buitenruimte

Balkon
Niet aanwezig
Tuin
Niet aanwezig
Dakterras
Niet aanwezig

Energie

Isolatie
Dubbele beglazing, Muurisolatie
Verwarming
CV-ketel
Warm water
CV-ketel
Energielabel
D

Parkeergelegenheid

Aanwezig
Ja
Soort parkeergelegenheid
Openbaar

Garage

Aanwezig
Nee
Meld een probleem met deze woning
Contact met de makelaar Bel