Contact met de makelaar

Deze woning is gevonden buiten ons eigen netwerk. Met de knop hieronder kom je direct bij de aanbieder terecht.

Nieuw

Bos en Lommerweg

Bekijk kaart
1055 EA Amsterdam (Erasmuspark)
€ 650.000 k.k.
  • 89 m²
  • 4 kamers
  • 1939

Samenvatting

  • Deze woning wordt sinds 14 januari 2026 aangeboden door PB Makelaars o.z.;
  • De galerijflat heeft een woonoppervlakte van 89 m² en beschikt over 4 kamers, waarvan 3 slaapkamers;
  • De woning is gebouwd In 1939 en ligt in de buurt Erasmuspark in Amsterdam.

Beschrijving

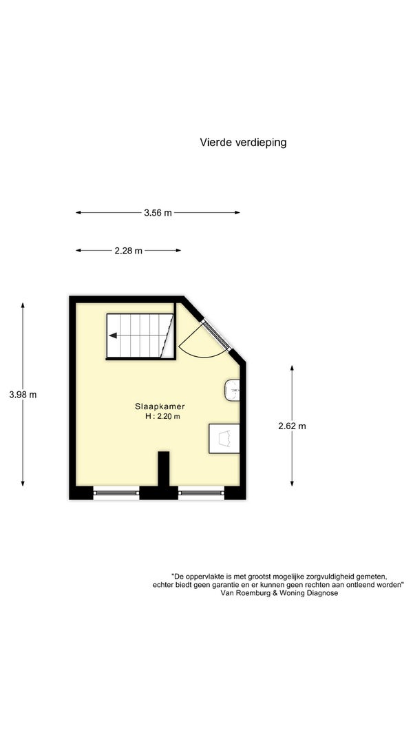
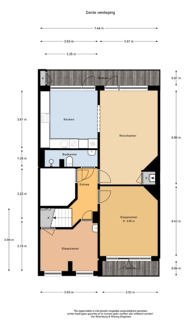
Deze ruime bovenwoning in Bos en Lommer biedt een woonoppervlakte van 92 m² en heeft 3 slaapkamers. De woning is goed onderhouden en beschikt over een uniek dakterras van 26 m² met vrij uitzicht. De indeling omvat een hal met toegang tot twee slaapkamers, waarvan er één met openslaande deuren naar het balkon leidt. De moderne badkamer is uitgerust met een wastafel, zwevend toilet en inloopdouche. De lichte woonkamer met toegang tot een zonnig balkon biedt prachtig uitzicht. De duurzame L-vormige keuken, vernieuwd in 2014, beschikt over inbouwapparatuur. De vierde verdieping is bereikbaar via een vaste trap en kan als derde slaapkamer worden gebruikt. Het appartement ligt in een levendige buurt met uitstekende voorzieningen en goede verbindingen.

Overdracht

Vraagprijs
€ 650.000 k.k.
Aangeboden sinds
14-01-2026
Status
Beschikbaar
Beschikbaar
Per direct

Oppervlakte en inhoud

Woonoppervlakte
89 m²

Bouw

Type woning
Appartement
Soort woning
Galerijflat
Soort bouw
Bestaande bouw
Bouwjaar
1939

Indeling

Aantal kamers
4
Aantal slaapkamers
3
Aantal badkamers
1

Buitenruimte

Dakterras
Niet aanwezig

Energie

Energielabel
D
Meld een probleem met deze woning