Contact met de makelaar

Deze woning is gevonden buiten ons eigen netwerk. Met de knop hieronder kom je direct bij de aanbieder terecht.

Nieuw

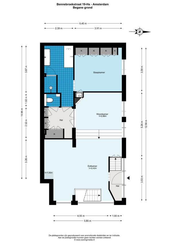
Bennebroekstraat 19

Bekijk kaart
1058 LJ Amsterdam (Hoofddorppleinbuurt)
€ 895.000 k.k.
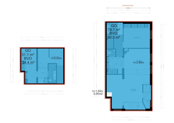
  • 111 m²
  • 4 kamers
  • 1933

Samenvatting

  • Deze woning wordt sinds 28 oktober 2025 aangeboden door Appeltaart Vastgoed;
  • Het dubbele benedenhuis heeft een woonoppervlakte van 111 m² en beschikt over 4 kamers, waarvan 3 slaapkamers;
  • De woning is gebouwd In 1933 en ligt in de buurt Hoofddorppleinbuurt in Amsterdam;
  • De woning beschikt onder andere over de volgende voorzieningen: Bad, Kabel TV, Mechanische ventilatie, Douche, Toilet.

Beschrijving

Meer woninginformatie bekijken?

Log in of registreer gratis.

Overdracht

Vraagprijs
€ 895.000 k.k.
Aangeboden sinds
28-10-2025
Status
Beschikbaar
Beschikbaar
In overleg
Onderhoudsstaat
Goed

Oppervlakte en inhoud

Woonoppervlakte
111 m²
Inhoud
411 m³

VvE informatie

Inschrijving KvK
Ja
Jaarlijkse vergadering
Ja
Periodieke bijdrage
Ja (€ 168 per maand)
Reservefonds aanwezig
Ja
Onderhoudsplan
Ja
Opstalverzekering
Ja

Bouw

Type woning
Appartement
Soort woning
Dubbel benedenhuis, Appartement
Soort bouw
Bestaande bouw
Bouwjaar
1933
Ligging
  • Aan een rustige weg
  • In een woonwijk
  • Vrij uitzicht

Indeling

Aantal kamers
4
Aantal slaapkamers
3
Aantal badkamers
2
Aantal woonlagen
2
Voorzieningen
  • Bad
  • Kabel TV
  • Mechanische ventilatie
  • Douche
  • Toilet

Buitenruimte

Balkon
Niet aanwezig
Tuin
Niet aanwezig
Dakterras
Niet aanwezig

Energie

Verwarming
CV-ketel, Volledige vloerverwarming
Warm water
CV-ketel
Cv-ketel
Intergas HR+ (Gas, uit 2025, Eigendom)
Energielabel
B

Bergruimte

Schuur/Berging
Aanwezig
Omschrijving
Inpandig

Parkeergelegenheid

Aanwezig
Ja
Soort parkeergelegenheid
Openbaar

Garage

Aanwezig
Nee
Meld een probleem met deze woning
Contact met de makelaar Bel