Contact met de makelaar

Deze woning is gevonden buiten ons eigen netwerk. Met de knop hieronder kom je direct bij de aanbieder terecht.

Albert Cuypstraat 192 3

Bekijk kaart
1073 BL Amsterdam (Oude Pijp)
€ 425.000 k.k.
  • 45 m²
  • 2 kamers
  • 1886

Samenvatting

  • Deze woning wordt sinds 8 weken aangeboden door JLG Real Estate;
  • De bovenwoning heeft een woonoppervlakte van 45 m² en beschikt over 2 kamers, waarvan 1 slaapkamer;
  • De woning is gebouwd In 1886 en ligt in de buurt Oude Pijp in Amsterdam;
  • De woning beschikt onder andere over de volgende voorzieningen: Mechanische ventilatie, Douche, Bergruimte, Toilet.

Beschrijving

(Please scroll down for English)

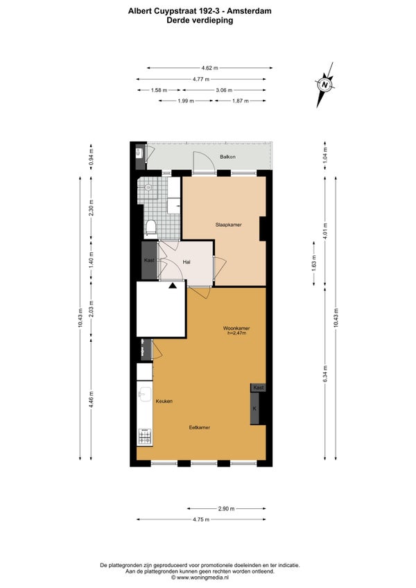
Welkom in dit prachtige, instapklare appartement van circa 45 m², met een zonnig balkon op het zuiden. Dit sfeervolle appartement is ideaal voor starters die op zoek zijn naar een moderne, comfortabele woning in een van de meest geliefde wijken van Amsterdam. Extra voordeel: het appartement is gelegen op eigen grond!

Instapklaar en stijlvol appartement
Het appartement is gelegen op de derde verdieping en biedt een ruime, lichte woonkamer dankzij de drie grote raampartijen met uitzicht op de altijd gezellige Albert Cuypmarkt. De open keuken is volledig uitgerust met alle benodigde inbouwapparatuur, waaronder een 4-pits gasfornuis, combi-oven, vaatwasser en koelkast met vriesvak. Er is bovendien voldoende ruimte voor een grote eettafel.

Aan de achterzijde vind je een ruime slaapkamer met genoeg plek voor een groot tweepersoonsbed en een kledingkast. Vanuit de slaapkamer heb je directe toegang tot het zonnige balkon, ideaal om van het zonnetje te genieten. De luxe badkamer is voorzien van een inloopdouche, wastafel met meubel, toilet en handdoek radiator.

Tevens is er in de hal voldoende ruimte voor kasten en is deze voorzien van een inbouwvriezer en een was-droogcombinatie.

Locatie
Wonen aan de Albert Cuypstraat betekent wonen in het bruisende hart van De Pijp – een karakteristieke en levendige buurt met alle voorzieningen binnen handbereik. De wijk staat bekend om haar charmante architectuur, jonge en dynamische sfeer, en het brede aanbod aan horeca, winkels en speciaalzaken. De beroemde Albert Cuypmarkt ligt letterlijk voor de deur en voor dagelijkse boodschappen zijn er diverse supermarkten en boetieks in de directe omgeving, onder andere aan de Ferdinand Bolstraat.

Voor ontspanning ligt het Sarphatipark om de hoek. Ook het Museumplein, Vondelpark, diverse musea, theaters en bioscopen zijn snel bereikbaar.

Metrostation De Pijp (Noord/Zuidlijn) ligt op slechts 130–200 meter afstand, evenals meerdere tramlijnen. Per fiets ben je binnen 10 minuten bij Station Amstel, Zuid, RAI of Centraal. De Ring A10 is eenvoudig bereikbaar en parkeren kan met een vergunning of in nabijgelegen parkeergarages zoals de Albert Cuypgarage en het Heinekenplein.

Details

  • Woonoppervlak van 45,2 m2, conform meetinstructie NEN 2580
  • Gelegen op eigen grond
  • Energielabel B
  • VvE wordt professioneel beheerd, de servicekosten bedragen 239,39 euro per maand en er is een MJOP aanwezig
  • Ouderdomsclausule is standaard van toepassing
  • Oplevering per eind februari 2026

**

Welcome to this beautiful, move-in ready apartment of approximately 45 m², complete with a sunny south-facing balcony.

This charming home is perfect for first-time buyers looking for a modern and comfortable apartment in one of Amsterdam’s most sought-after neighborhoods. An extra advantage: the apartment is located on freehold land, no ground lease!

Stylish and move-in ready apartment
The apartment is situated on the third floor and features a spacious, bright living room thanks to three large windows offering views over the always lively Albert Cuyp Market. The open kitchen is fully equipped with all essential built-in appliances, including a 4-burner gas stove, combi-oven, dishwasher and fridge with freezer compartment. There is also plenty of room for a large dining table.

At the rear is a generous bedroom with enough space for a double bed and wardrobe. From the bedroom, you have direct access to the sunny balcony. The modern bathroom is equipped with a walk-in shower, washbasin with vanity, toilet and towel radiator.

There is also ample space in the hallway for cabinets, and it is equipped with a built-in freezer and a washer-dryer combination.

Location
Living on the Albert Cuypstraat means living in the vibrant heart of De Pijp, an iconic and lively neighborhood where everything you need is within easy reach. The area is known for its charming architecture, youthful and dynamic atmosphere, and wide range of cafés, restaurants, shops and specialty stores. The famous Albert Cuyp Market is literally right outside your door, and for daily groceries you’ll find several supermarkets and boutiques nearby, including those on Ferdinand Bolstraat.
For relaxation, the Sarphatipark is just around the corner. Museumplein, Vondelpark, various museums, theaters and cinemas are also easily accessible.
Metro station De Pijp (North/South line) is only 130–200 meters away, along with multiple tram lines. By bike, you can reach Amstel Station, Zuid, RAI or Central Station within 10 minutes. The A10 Ring Road is easily accessible, and parking is possible with a permit or in nearby parking garages such as the Albert Cuypgarage and Heinekenplein.

Details

  • Living area approx. 45,2 m² (NEN 2580)
  • Located on freehold land
  • Energy label B
  • Professionally managed VvE; service charges: 239,39 a month and MJOP (long-term maintenance plan) available
  • Standard age clause applies
  • Transfer end of February 2026

Overdracht

Vraagprijs
€ 425.000 k.k.
Aangeboden sinds
27-11-2025
Status
Beschikbaar
Beschikbaar
In overleg
Bijzonderheden
Beschermd stads- of dorpsgezicht
Onderhoudsstaat
Goed

Oppervlakte en inhoud

Woonoppervlakte
45 m²
Inhoud
142 m³

VvE informatie

Inschrijving KvK
Ja
Jaarlijkse vergadering
Ja
Periodieke bijdrage
Ja (€ 239 per maand)
Reservefonds aanwezig
Ja
Onderhoudsplan
Ja
Opstalverzekering
Ja

Bouw

Type woning
Appartement
Soort woning
Bovenwoning, Appartement
Soort bouw
Bestaande bouw
Bouwjaar
1886
Ligging
  • Aan een drukke weg
  • In het centrum

Indeling

Aantal kamers
2
Aantal slaapkamers
1
Aantal badkamers
1
Aantal woonlagen
1
Verdieping
3
Voorzieningen
  • Mechanische ventilatie
  • Douche
  • Bergruimte
  • Toilet

Buitenruimte

Balkon
Aanwezig
Tuin
Niet aanwezig
Dakterras
Niet aanwezig

Energie

Isolatie
Dubbele beglazing
Verwarming
CV-ketel
Warm water
CV-ketel
Cv-ketel
Remeha (Gas, uit 2015, Eigendom)
Energielabel
B

Parkeergelegenheid

Aanwezig
Ja
Soort parkeergelegenheid
Openbaar

Garage

Aanwezig
Nee
Meld een probleem met deze woning