Contact met de makelaar

Deze woning is gevonden buiten ons eigen netwerk. Met de knop hieronder kom je direct bij de aanbieder terecht.

Nieuw

Eerste Kostverlorenkade 11 4

Bekijk kaart
1052 EM Amsterdam (Frederik Hendrikbuurt)
€ 350.000 k.k.
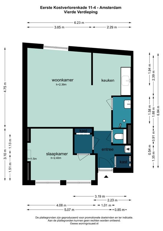
  • 46 m²
  • 2 kamers
  • 1922

Samenvatting

  • Deze woning wordt sinds 6 oktober 2025 aangeboden door Vastgoed Unie Makelaardij;
  • De bovenwoning heeft een woonoppervlakte van 46 m² en beschikt over 2 kamers, waarvan 1 slaapkamer;
  • De woning is gebouwd In 1922 en ligt in de buurt Frederik Hendrikbuurt in Amsterdam.

Beschrijving

Overdracht

Vraagprijs
€ 350.000 k.k.
Aangeboden sinds
06-10-2025
Status
Beschikbaar
Beschikbaar
Per direct
Onderhoudsstaat
Redelijk

Oppervlakte en inhoud

Woonoppervlakte
46 m²
Inhoud
115 m³

VvE informatie

Inschrijving KvK
Ja
Jaarlijkse vergadering
Ja
Periodieke bijdrage
Ja (€ 118 per maand)
Reservefonds aanwezig
Ja
Opstalverzekering
Ja

Bouw

Type woning
Appartement
Soort woning
Bovenwoning, Appartement
Soort bouw
Bestaande bouw
Bouwjaar
1922
Ligging
  • Aan een rustige weg
  • Aan vaarwater
  • Aan het water
  • Nabij het openbaar vervoer
  • Nabij een school

Indeling

Aantal kamers
2
Aantal slaapkamers
1
Aantal woonlagen
1
Voorzieningen
Toilet

Buitenruimte

Balkon
Niet aanwezig
Dakterras
Niet aanwezig

Energie

Verwarming
CV-ketel
Warm water
CV-ketel
Energielabel
E

Parkeergelegenheid

Aanwezig
Ja
Soort parkeergelegenheid
Openbaar
Meld een probleem met deze woning
Contact met de makelaar Bel