Contact met de makelaar

Deze woning is gevonden buiten ons eigen netwerk. Met de knop hieronder kom je direct bij de aanbieder terecht.

Nieuw

Beulingstraat 4 N

Bekijk kaart
1017 BA Amsterdam (Grachtengordel-Zuid)
€ 480.000 k.k.
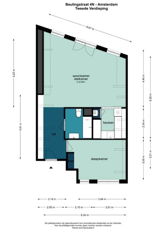
  • 63 m²
  • 2 kamers
  • 1700

Samenvatting

  • Deze woning wordt sinds 13 november 2025 aangeboden door 27 Huis Makelaars;
  • De bovenwoning heeft een woonoppervlakte van 63 m² en beschikt over 2 kamers, waarvan 1 slaapkamer;
  • De woning is gebouwd In 1700 en ligt in de buurt Grachtengordel-Zuid in Amsterdam;
  • De woning beschikt onder andere over de volgende voorzieningen: Bad, Frans balkon, Internetaansluiting, Mechanische ventilatie, Douche, Toilet.

Beschrijving

Overdracht

Vraagprijs
€ 480.000 k.k.
Aangeboden sinds
13-11-2025
Status
Beschikbaar
Beschikbaar
Per direct
Bijzonderheden
Monumentaal pand
Onderhoudsstaat
Goed

Oppervlakte en inhoud

Woonoppervlakte
63 m²
Inhoud
169 m³

VvE informatie

Inschrijving KvK
Ja
Jaarlijkse vergadering
Ja
Periodieke bijdrage
Ja (€ 210 per maand)
Reservefonds aanwezig
Ja
Onderhoudsplan
Ja
Opstalverzekering
Ja

Bouw

Type woning
Appartement
Soort woning
Bovenwoning, Appartement
Soort bouw
Bestaande bouw
Bouwjaar
1700
Ligging
  • Aan een rustige weg
  • In het centrum
  • Nabij het openbaar vervoer

Indeling

Aantal kamers
2
Aantal slaapkamers
1
Aantal badkamers
1
Aantal woonlagen
1
Voorzieningen
  • Bad
  • Frans balkon
  • Internetaansluiting
  • Mechanische ventilatie
  • Douche
  • Toilet

Buitenruimte

Balkon
Niet aanwezig
Dakterras
Niet aanwezig

Energie

Verwarming
CV-ketel
Warm water
CV-ketel
Cv-ketel
Vaillant Thermo COMPACT VCW 254/4-7 (Gas, uit 2020, Eigendom)

Bergruimte

Schuur/Berging
Aanwezig

Parkeergelegenheid

Aanwezig
Ja
Soort parkeergelegenheid
Openbaar
Meld een probleem met deze woning
Contact met de makelaar Bel