Contact met de makelaar

Deze woning is gevonden buiten ons eigen netwerk. Met de knop hieronder kom je direct bij de aanbieder terecht.

Keizersgracht 804 E

Bekijk kaart
1017 ED Amsterdam (Grachtengordel-Zuid)
€ 1.650.000 k.k.
  • 188 m²
  • 4 kamers
  • 1761

Samenvatting

  • Deze woning wordt sinds 2 maanden aangeboden door Parker & Williams Real Estate Services;
  • De bovenwoning heeft een woonoppervlakte van 188 m² en beschikt over 4 kamers, waarvan 3 slaapkamers;
  • De woning is gebouwd In 1761 en ligt in de buurt Grachtengordel-Zuid in Amsterdam;
  • De woning beschikt onder andere over de volgende voorzieningen: Airconditioning, Jacuzzi, Dakterras, Douche, Dakraam, Stoomcabine, Toilet, Wasruimte.

Beschrijving

DE KEIZERSGRACHT. EEN GRACHT VOL ELEGANTIE EN HISTORIE. EEN GRACHT MET MAJESTUEUZE PANDEN EN OUDERWETSE DECADENTIE. EN OOK EEN GRACHT MET VERRASSINGEN, VERFIJNDE ARCHITECTUUR EN BEDRIJVIGHEID. MAAR VOORAL EEN GRACHT MET LEUKE BEWONERS EN HEEL VEEL VRIENDELIJKHEID.

In dit schitterende brede pand uit 1761 zijn in totaal 5 ruime appartementsrechten gevestigd. Wij bieden hier het bovenste appartement aan dat is gelegen op de tweede en derde etage, en beschikt over een fraai dakterras. Het appartement heeft een netto gebruiksoppervlak van 188 m2, maar een bruto vloeroppervlak van wel 252 m2!

In de omgeving is werkelijk alles te vinden dat Amsterdam zo uniek maakt. Buiten de heerlijke terrassen, restaurants en de geweldige Utrechtsestraat met haar vele winkels ligt dit ook dicht bij Carré, de Opera en uiteraard het openbaar vervoer. Hierdoor is de connectie naar de andere delen van de stad en het Centraal Station uitstekend. Via de Wibautstraat is er een snelle ontsluiting naar de A10 snelweg.

Het pand is gesplitst in de huidige appartementen in 1989. Daarvoor fungeerde het onder andere als Huishoudschool, een HTS voor Confectie-industrie en had het enkele publieke gemeentelijke functies. In het bouwarchief is zichtbaar dat de fundering in 1989 opnieuw is gedaan.

Het appartement is onderdeel van een gezonde en actieve VVE. De VVE wordt professioneel beheerd door Boendermaker beheer. Er wordt gereserveerd voor toekomstig onderhoud en het beschikt over een reservefonds. Het appartement beschikt tevens over een eigen berging die is gelegen op de begane grond. De servicekosten bedragen circa €213 per maand. In de laatste VVE vergadering is besloten dat na de verkoop de VVE bijdrage voor dit appartement wordt verhoogd.

De erfpacht is zeer recent door verkoper EEUWIGDUREND AFGEKOCHT. Hierdoor heeft u geen erfpachtkosten meer!

INDELING:
Statige entree met prachtige hoge geornamenteerde plafonds. Brede en fraaie houten trap naar de voordeur op de tweede etage. Hal met apart toilet. Zeer ruime woonkamer met 3 prachtig grote ramen die uitkijken over de Keizersgracht en de Amstel. De breedte van het appartement bedraagt meer dan 8 meter! De woonkamer beschikt over een fraaie open haard. Op deze verdieping ligt een zeer karakteristieke houten vloer. Er is bij het ontwerpen van het appartement gekozen voor het creëren van veel daglicht. Zo beschikt het over enkele enorme glazen dakramen en fraaie glazen vloerdelen op de bovenverdieping waardoor er op elk moment van de dag licht naar binnen treedt.

Aan de achterzijde van deze verdieping bevindt zich de afgesloten keuken die is voorzien van inbouwapparatuur. De achterramen bieden uitzicht over de fraaie binnentuinen van de Keizersgracht en de Kerkstraat.

Aan de voorzijde van deze verdieping bevindt zich een ruime eerste slaapkamer met fraai uitzicht over de gracht die door de vorige bewoners werd gebruikt als werkkamer of logeerkamer, maar ook uitstekend als slaapkamer valt te gebruiken.

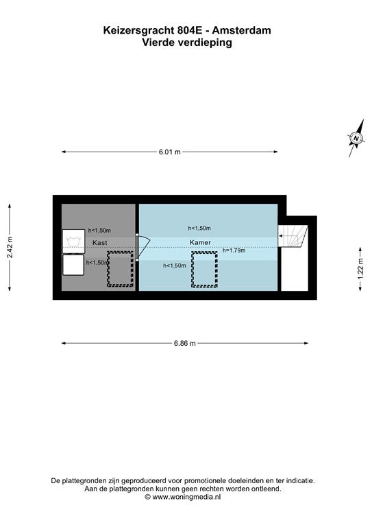
Via de prachtige houten trap is er toegang tot de bovenverdieping. Eerst loop je over een fraaie glazen vloer. Aan de rechterzijde bevindt zich aan de tuinkant de eerste ruime slaapkamer met prachtige hoge plafonds, veel kastruimte en mooie zichtbare balken. De slaapkamer is voorzien van een airconditioning systeem.
In het middenstuk van de verdieping ligt een fraaie badkamer met een fraai (stoom)bad, toilet en wasbak.

Aan de grachtzijde ligt een wederom zeer ruime slaapkamer met mooie balken en een schattig raam aan de grachtzijde. Naast de kamer ligt een badkamer met douche, toilet en wastafel. Via een vaste trap bereik je de verdieping er boven waar zich een opslag en wasruimte bevindt.

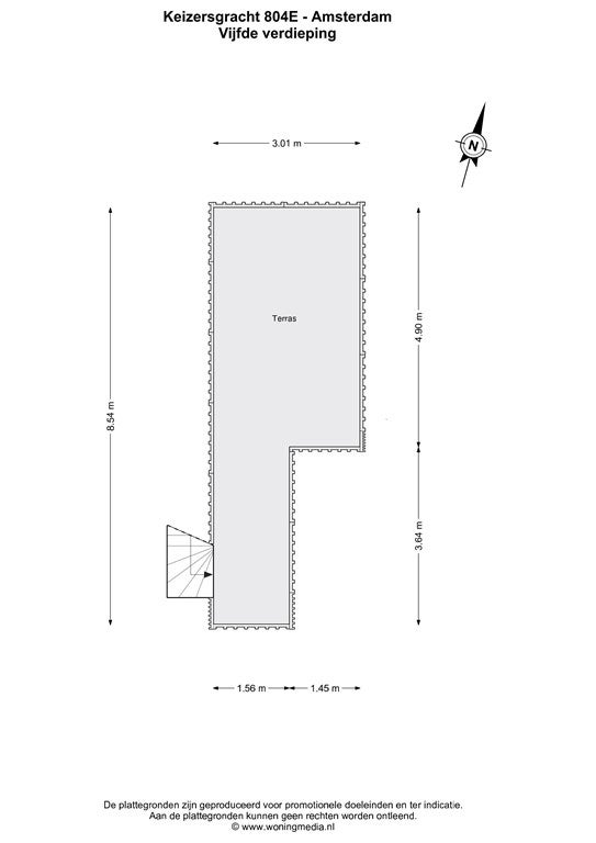
Het dakterras is bereikbaar via een raam aan de hal. De trap leidt tot het terras. Het terras heeft recent nieuwe vloerdelen gekregen. Er is een watersysteem aanwezig. Het dakterras geeft een onwaarschijnlijk fraai uitzicht over de binnenstad en de daken van de omliggende grachtenpanden.
Op de begane grond bevindt zich een eigen berging.

KENMERKEN:

• Zeer ruim en licht appartement
• Gebruiksoppervlak van circa 188 m2, en 252 m2 bruto (NEN2580 meetrapportage beschikbaar)
• 3 slaapkamers
• 2 badkamers
• Fraaie houten vloeren
• Geweldig dakterras
• Breedte van ruim 8 meter met grote ramen aan de gracht
• Eigen berging
• Verkoper zal een niet- bewonersclausule laten opnemen in de koopovereenkomst
• VOLLEDIG AFGEKOCHTE EEUWIGDURENDE ERFPACHT
• Servicekosten van € 213 per maand
• Fundering uit 1989

Overdracht

Vraagprijs
€ 1.650.000 k.k.
Aangeboden sinds
08-12-2025
Status
Beschikbaar
Beschikbaar
Per direct
Bijzonderheden
Monumentaal pand
Onderhoudsstaat
Zeer goed

Oppervlakte en inhoud

Woonoppervlakte
188 m²
Inhoud
770 m³

VvE informatie

Inschrijving KvK
Ja
Jaarlijkse vergadering
Ja
Periodieke bijdrage
Ja (€ 214 per maand)
Reservefonds aanwezig
Ja
Onderhoudsplan
Ja
Opstalverzekering
Ja

Bouw

Type woning
Appartement
Soort woning
Bovenwoning, Dubbel bovenhuis
Soort bouw
Bestaande bouw
Bouwjaar
1761
Ligging
  • Aan een rustige weg
  • Aan vaarwater
  • Aan het water
  • In het centrum

Indeling

Aantal kamers
4
Aantal slaapkamers
3
Aantal badkamers
2
Aantal woonlagen
4
Voorzieningen
  • Airconditioning
  • Jacuzzi
  • Dakterras
  • Douche
  • Dakraam
  • Stoomcabine
  • Toilet
  • Wasruimte

Buitenruimte

Balkon
Niet aanwezig
Dakterras
Aanwezig

Energie

Isolatie
Gedeeltelijk dubbele beglazing
Verwarming
CV-ketel
Warm water
CV-ketel

Bergruimte

Schuur/Berging
Aanwezig

Parkeergelegenheid

Aanwezig
Ja
Soort parkeergelegenheid
Betaald
Meld een probleem met deze woning