Contact met de aanbieder

Deze woning is gevonden buiten ons eigen netwerk. Via de knop hieronder ga je direct naar de website van de aanbieder.

Nieuw

Timorplein 1 L

Bekijk kaart
1094 CB Amsterdam (Indische Buurt-West)
€ 850.000 k.k.
  • 106 m²
  • 4 kamers
  • 2002

Samenvatting

  • Deze woning wordt sinds 19 februari 2026 aangeboden door Kolt Makelaardij;
  • De galerijflat heeft een woonoppervlakte van 106 m² en beschikt over 4 kamers, waarvan 3 slaapkamers;
  • De woning is gebouwd In 2002 en ligt in de buurt Indische Buurt-West in Amsterdam.

Beschrijving

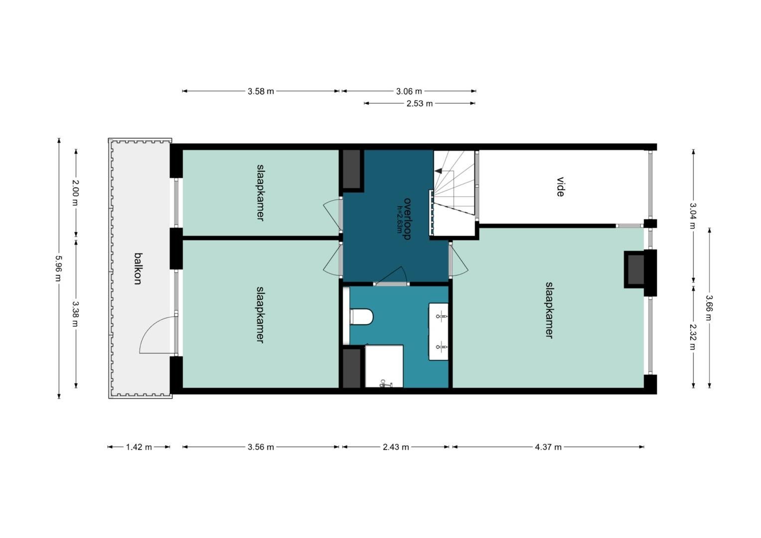
Dit ruime, lichte dubbel bovenwoning van 106,2 m2 verdeeld over twee woonlagen, is perfect voor een gezin. Het beschikt over een groot balkon, een open keuken met eetkamer en drie slaapkamers, met optie voor een extra kamer. De woonkamer heeft een Frans balkon met uitzicht op het Timorplein, waar kinderen kunnen spelen. De luxe L-vormige keuken is goed uitgerust, met een natuurstenen aanrecht en een "Smeg" fornuis met dubbele oven. De tweede verdieping heeft twee slaapkamers met toegang tot een breed balkon met uitzicht op de groene binnentuin. De badkamer is modern ingericht met een douche, dubbele wastafel en toilet. Het appartement ligt in Amsterdam Oost, dichtbij voorzieningen, tram en NS station. Er is een privéberging, parkeerplaats met laadpaal en de erfpacht is eeuwigdurend afgekocht.

Overdracht

Vraagprijs
€ 850.000 k.k.
Prijs per m²
€ 8.019
Aangeboden sinds
19-02-2026
Status
Beschikbaar
Beschikbaar
Per direct

Oppervlakte en inhoud

Woonoppervlakte
106 m²

Bouw

Type woning
Appartement
Soort woning
Galerijflat
Soort bouw
Bestaande bouw
Bouwjaar
2002

Indeling

Aantal kamers
4
Aantal slaapkamers
3
Aantal badkamers
1

Buitenruimte

Dakterras
Niet aanwezig

Energie

Energielabel
A
Meld een probleem met deze woning