Contact met de aanbieder

Deze woning is gevonden buiten ons eigen netwerk. Via de knop hieronder ga je direct naar de website van de aanbieder.

Nieuw

Bogortuin 52

Bekijk kaart
1019 PG Amsterdam (Oostelijk Havengebied)
€ 1.050.000 k.k.
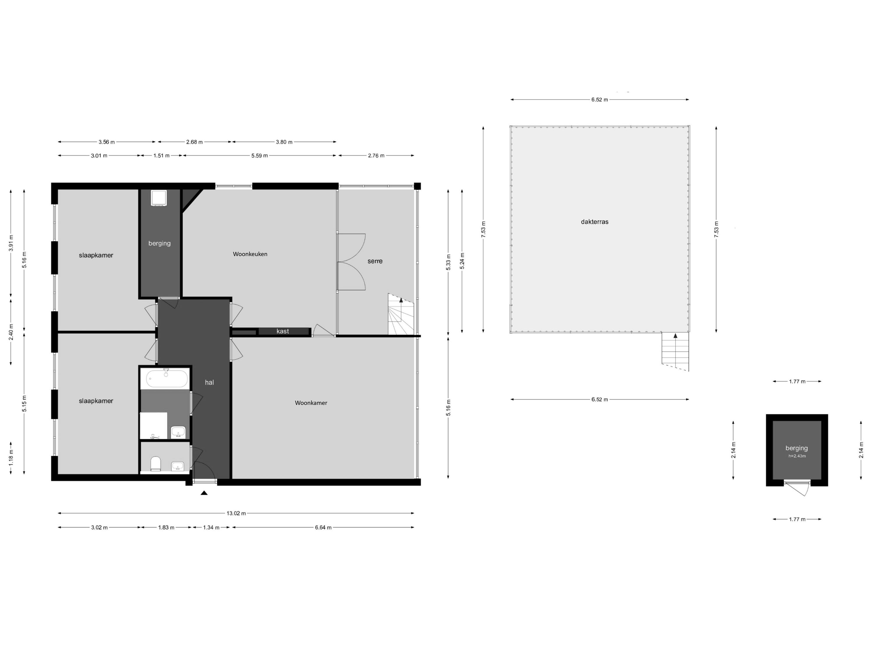
  • 137 m²
  • 4 kamers
  • 2001

Samenvatting

  • Deze woning wordt sinds 19 februari 2026 aangeboden door Kolt Makelaardij;
  • De galerijflat heeft een woonoppervlakte van 137 m² en beschikt over 4 kamers, waarvan 2 slaapkamers;
  • De woning is gebouwd In 2001 en ligt in de buurt Oostelijk Havengebied in Amsterdam.

Beschrijving

Gelegen op een van de mooiste plekken in het Oostelijk Havengebied, biedt dit vierkamer penthouse een riant dakterras van 49 m² en een parkeerplaats in de ondergrondse parkeergarage. Dankzij de topverdieping en de glazen gevel geniet u van prachtige uitzichten en veel licht. Het appartement maakt deel uit van het Parkblok, ontworpen door Herman Zeinstra, gebouwd in 2000/2001. De entree ligt aan de Bogortuin. Bij binnenkomst treft u een ruime hal aan, met een licht overwelfde woonkamer en een keuken met serre die uitzicht biedt op de IJ-haven. Via een vaste trap komt u op het dakterras. Tevens omvat het penthouse twee slaapkamers, een badkamer en een bergruimte. Het goed onderhouden complex beschikt over een gezonde VVE en heeft een energielabel A. Het is dichtbij het centrum, met uitstekende verbindingen en voorzieningen.

Overdracht

Vraagprijs
€ 1.050.000 k.k.
Prijs per m²
€ 7.664
Aangeboden sinds
19-02-2026
Status
Beschikbaar
Beschikbaar
Per direct

Oppervlakte en inhoud

Woonoppervlakte
137 m²

Bouw

Type woning
Appartement
Soort woning
Galerijflat
Soort bouw
Bestaande bouw
Bouwjaar
2001

Indeling

Aantal kamers
4
Aantal slaapkamers
2
Aantal badkamers
1

Buitenruimte

Dakterras
Niet aanwezig

Energie

Energielabel
A
Meld een probleem met deze woning