Contact met de makelaar

Deze woning is gevonden buiten ons eigen netwerk. Met de knop hieronder kom je direct bij de aanbieder terecht.

Nieuw

Andreas Schelfhoutstraat

Bekijk kaart
1058 HS Amsterdam (Hoofddorppleinbuurt)
€ 1.200.000 k.k.
  • 147 m²
  • 7 kamers
  • 1932

Samenvatting

  • Deze woning wordt sinds 8 januari 2026 aangeboden door PB Makelaars o.z.;
  • De galerijflat heeft een woonoppervlakte van 147 m² en beschikt over 7 kamers, waarvan 4 slaapkamers;
  • De woning is gebouwd In 1932 en ligt in de buurt Hoofddorppleinbuurt in Amsterdam.

Beschrijving

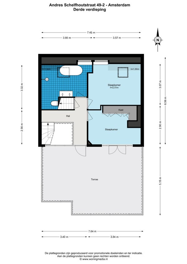
Dit stijlvolle en royale gezinshuis van circa 147 m² (go) met vier slaapkamers is gelegen aan de Andreas Schelfhoutstraat in Amsterdam-Zuid, dichtbij het Vondelpark. Het appartement, dat over drie woonlagen verspreid is, heeft een lichte woonkamer met brede raampartijen en een moderne woonkeuken aan de achterzijde, voorzien van diverse inbouwapparatuur. Op de tweede verdieping bevinden zich een ruime slaapkamer en twee balkons, terwijl de derde verdieping twee extra slaapkamers en een luxe badkamer met vrijstaand ligbad en inloopdouche biedt. Een dakterras op het zuiden zorgt voor een privé-oase. De omgeving biedt winkels, cafés en goede bereikbaarheid met het openbaar vervoer en de ring A10. Het appartement is gelegen op eigen grond en maakt deel uit van een kleine VvE.

Reageer op tijd op nieuw woningaanbod

Meer dan de helft van de reacties komt binnen 48 uur. Ontvang direct notificaties bij nieuw aanbod en reageer sneller met Pararius+.

Probeer Pararius+ 14 dagen € 0,01

Overdracht

Vraagprijs
€ 1.200.000 k.k.
Aangeboden sinds
08-01-2026
Status
Beschikbaar
Beschikbaar
Per direct

Oppervlakte en inhoud

Woonoppervlakte
147 m²

Bouw

Type woning
Appartement
Soort woning
Galerijflat
Soort bouw
Bestaande bouw
Bouwjaar
1932

Indeling

Aantal kamers
7
Aantal slaapkamers
4
Aantal badkamers
1

Buitenruimte

Dakterras
Niet aanwezig

Energie

Energielabel
D
Meld een probleem met deze woning