Contact met de makelaar

Deze woning is gevonden buiten ons eigen netwerk. Met de knop hieronder kom je direct bij de aanbieder terecht.

Nieuw

Bilderdijkstraat 39 1

Bekijk kaart
1053 KK Amsterdam (Da Costabuurt)
€ 519.000 k.k.
  • 68 m²
  • 2 kamers
  • 1902

Samenvatting

  • Deze woning wordt sinds 24 oktober 2025 aangeboden door Van Huis Uit Makelaars;
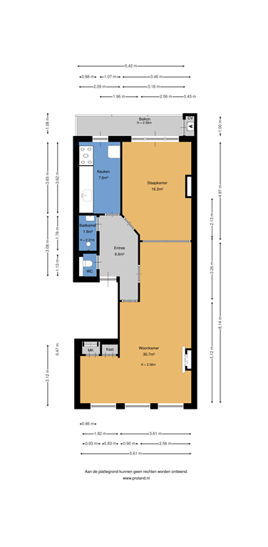
  • De tussenverdieping heeft een woonoppervlakte van 68 m² en beschikt over 2 kamers, waarvan 1 slaapkamer;
  • De woning is gebouwd In 1902 en ligt in de buurt Da Costabuurt in Amsterdam;
  • De woning beschikt onder andere over de volgende voorzieningen: Kabel TV, Glasvezelaansluiting, Rookkanaal, Internetaansluiting, Toilet.

Beschrijving

Meer woninginformatie bekijken?

Log in of registreer gratis.

Overdracht

Vraagprijs
€ 519.000 k.k.
Aangeboden sinds
24-10-2025
Status
Beschikbaar
Beschikbaar
In overleg
Bijzonderheden
Seniorenwoning
Onderhoudsstaat
Goed

Oppervlakte en inhoud

Woonoppervlakte
68 m²
Perceeloppervlakte
4.246 m²
Inhoud
211 m³

VvE informatie

Inschrijving KvK
Ja
Jaarlijkse vergadering
Ja
Periodieke bijdrage
Ja (€ 166 per maand)
Reservefonds aanwezig
Ja
Opstalverzekering
Ja

Bouw

Type woning
Appartement
Soort woning
Tussenverdieping, Appartement
Soort bouw
Bestaande bouw
Bouwjaar
1902
Ligging
  • In het centrum
  • Nabij het openbaar vervoer
  • Nabij een school

Indeling

Aantal kamers
2
Aantal slaapkamers
1
Aantal badkamers
1
Aantal woonlagen
1
Voorzieningen
  • Kabel TV
  • Glasvezelaansluiting
  • Rookkanaal
  • Internetaansluiting
  • Toilet

Buitenruimte

Balkon
Aanwezig
Dakterras
Niet aanwezig

Energie

Isolatie
Spouwmuurisolatie, Dubbele beglazing
Verwarming
CV-ketel
Warm water
CV-ketel
Cv-ketel
Intergas Kombikompakt HRE 28/24A CW4 (Gas, uit 2022, Eigendom)
Energielabel
C

Bergruimte

Schuur/Berging
Aanwezig

Parkeergelegenheid

Aanwezig
Ja
Soort parkeergelegenheid
Openbaar
Meld een probleem met deze woning
Contact met de makelaar Bel