Contact met de makelaar

Deze woning is gevonden buiten ons eigen netwerk. Met de knop hieronder kom je direct bij de aanbieder terecht.

Nieuw

Panamalaan

Bekijk kaart
1019 AZ Amsterdam (Oostelijk Havengebied)
€ 669.000 k.k.
  • 106 m²
  • 4 kamers
  • 2002

Samenvatting

  • Deze woning wordt sinds 15 januari 2026 aangeboden door Isaak Makelaardij o.g. B.V.;
  • De galerijflat heeft een woonoppervlakte van 106 m² en beschikt over 4 kamers, waarvan 3 slaapkamers;
  • De woning is gebouwd In 2002 en ligt in de buurt Oostelijk Havengebied in Amsterdam.

Beschrijving

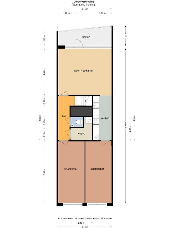
Deze uitstekend onderhouden en lichte 4/5-kamer maisonette van ca. 106 m² is gelegen op de derde en vierde verdieping en beschikt over een zonnig balkon (ca. 8 m²) op het zuiden, evenals een eigen parkeerplaats in de onderliggende garage. De indeling op de 4e verdieping omvat een entree met marmeren vloer, een toilet, twee slaapkamers en een badkamer met douche, wastafel en ligbad. Een vaste trap leidt naar de 3e verdieping, waar twee ruime kamers veel lichtinval bieden. De achterste kamer wordt gebruikt als woonkamer met toegang tot het balkon, terwijl de voorste kamer een mooi uitzicht heeft op het Rietlandpark en eenvoudig kan worden omgevormd tot twee slaapkamers. De halfopen keuken is volledig uitgerust en er zijn extra voorzieningen zoals een tweede toilet en een berging. Gelegen in het Oostelijk Havengebied, dicht bij het centrum met alle nodige faciliteiten op loopafstand.

Overdracht

Vraagprijs
€ 669.000 k.k.
Aangeboden sinds
15-01-2026
Status
Beschikbaar
Beschikbaar
Per direct

Oppervlakte en inhoud

Woonoppervlakte
106 m²

Bouw

Type woning
Appartement
Soort woning
Galerijflat
Soort bouw
Bestaande bouw
Bouwjaar
2002

Indeling

Aantal kamers
4
Aantal slaapkamers
3
Aantal badkamers
1

Buitenruimte

Dakterras
Niet aanwezig

Energie

Energielabel
A+
Meld een probleem met deze woning