Contact met de makelaar

Deze woning is gevonden buiten ons eigen netwerk. Met de knop hieronder kom je direct bij de aanbieder terecht.

Nieuw

Waalstraat 102 3

Bekijk kaart
1079 EB Amsterdam (Scheldebuurt)
€ 1.095.000 k.k.
  • 151 m²
  • 6 kamers
  • 1933

Samenvatting

  • Deze woning wordt sinds 28 oktober 2025 aangeboden door PB Makelaars o.z.;
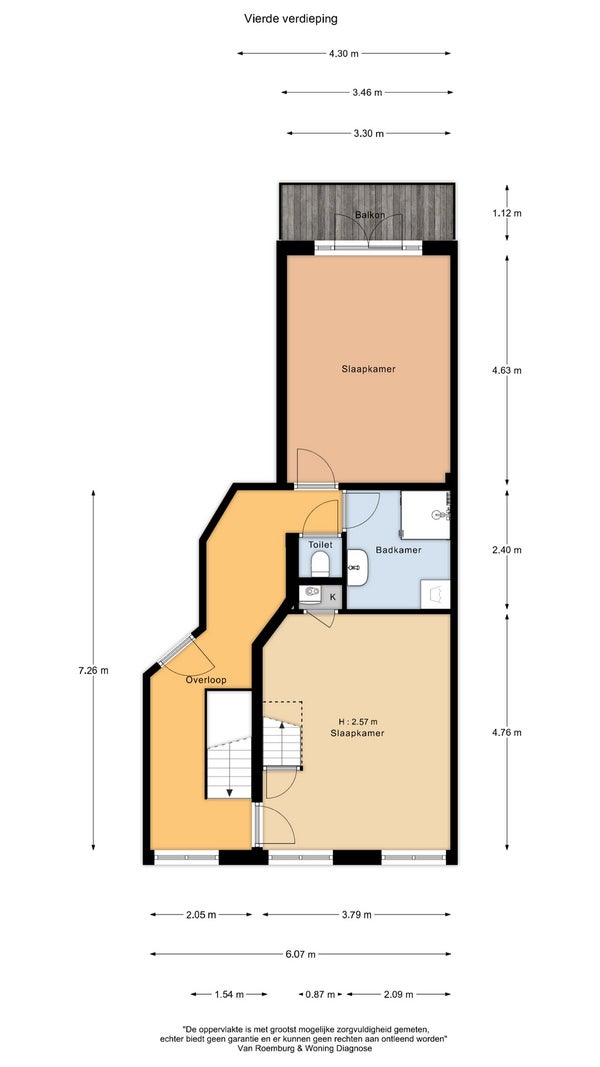
  • De bovenwoning heeft een woonoppervlakte van 151 m² en beschikt over 6 kamers, waarvan 4 slaapkamers;
  • De woning is gebouwd In 1933 en ligt in de buurt Scheldebuurt in Amsterdam;
  • De woning beschikt onder andere over de volgende voorzieningen: Bad, Kabel TV, Mechanische ventilatie, Douche, Toilet.

Beschrijving

Overdracht

Vraagprijs
€ 1.095.000 k.k.
Aangeboden sinds
28-10-2025
Status
Beschikbaar
Beschikbaar
In overleg
Bijzonderheden
Beschermd stads- of dorpsgezicht
Onderhoudsstaat
Goed

Oppervlakte en inhoud

Woonoppervlakte
151 m²
Inhoud
405 m³

Bouw

Type woning
Appartement
Soort woning
Bovenwoning, Dubbel bovenhuis
Soort bouw
Bestaande bouw
Bouwjaar
1933
Ligging
  • Aan een rustige weg
  • In een woonwijk

Indeling

Aantal kamers
6
Aantal slaapkamers
4
Aantal badkamers
2
Aantal woonlagen
2
Voorzieningen
  • Bad
  • Kabel TV
  • Mechanische ventilatie
  • Douche
  • Toilet

Buitenruimte

Balkon
Aanwezig
Tuin
Niet aanwezig
Dakterras
Niet aanwezig

Energie

Isolatie
Dubbele beglazing, Vloerisolatie
Verwarming
CV-ketel
Warm water
CV-ketel
Energielabel
D

Parkeergelegenheid

Aanwezig
Ja
Soort parkeergelegenheid
Openbaar

Garage

Aanwezig
Nee
Meld een probleem met deze woning
Contact met de makelaar Bel