- 70 m²
- 3 kamers
- 1997
Samenvatting
- Deze woning wordt sinds 5 januari 2026 aangeboden door Fred Koot Makelaardij;
- De galerijflat heeft een woonoppervlakte van 70 m² en beschikt over 3 kamers, waarvan 2 slaapkamers;
- De woning is gebouwd In 1997 en ligt in de buurt Centrale Markt in Amsterdam.
Beschrijving
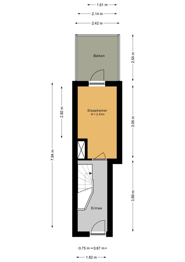
Dit lichte 3-kamer appartement van 70 m² is gelegen op de 7e en 8e verdieping, met een open keuken en een prachtig uitzicht op de stad vanuit de woonkamer. Het appartement heeft een beschut terrasje en de erfpacht is tot 1 september 2046 afgekocht, waardoor er tot die tijd geen kosten zijn. De woning bevindt zich in een modern complex aan de rand van de Staatsliedenbuurt, dicht bij Westerpark, Café-Restaurant Amsterdam en de Jordaan. Bij de indeling hoort een hal, slaapkamer met toegang tot het terras en een ruime living met open keuken. Er zijn twee slaapkamers en een badkamer met inloopdouche. In de kelder is een extra berging. De VvE is actief en de bijdrage bedraagt € 167,39 per maand. Met energielabel B en districtverwarming is het appartement volledig geïsoleerd.
Overdracht
- Vraagprijs
- € 600.000 k.k.
- Aangeboden sinds
- 05-01-2026
- Status
- Beschikbaar
- Beschikbaar
- In overleg
Oppervlakte en inhoud
- Woonoppervlakte
- 70 m²
Bouw
- Type woning
- Appartement
- Soort woning
- Galerijflat
- Soort bouw
- Bestaande bouw
- Bouwjaar
- 1997
Indeling
- Aantal kamers
- 3
- Aantal slaapkamers
- 2
- Aantal badkamers
- 1
Buitenruimte
- Dakterras
- Niet aanwezig
Energie
- Energielabel
- A