- 138 m²
- 4 kamers
- 2011
Samenvatting
- Deze woning wordt sinds 21 januari 2026 aangeboden door Felix de makelaar van Amstelveen;
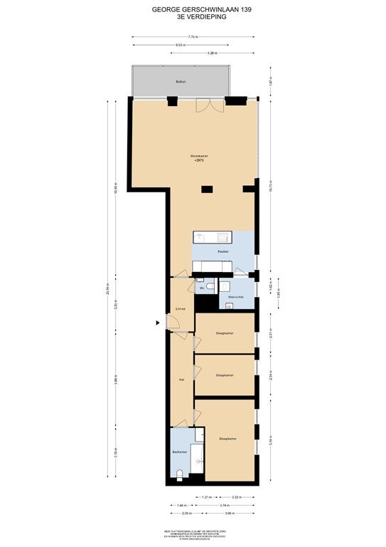
- De bovenwoning heeft een woonoppervlakte van 138 m² en beschikt over 4 kamers, waarvan 3 slaapkamers;
- De woning is gebouwd In 2011 en ligt in de buurt Zuidas in Amsterdam.
Beschrijving
English text below
Licht, luxe en ruim: 3 slaapkamer appartement (138 m²) met balkon en energielabel A midden op de Zuidas
Welkom in het hart van de Zuidas! Dit moderne appartement aan de George Gershwinlaan 139 combineert een royale woonruimte van 138 m² met hedendaags comfort en een toplocatie. Het appartement ligt op de derde verdieping van een verzorgd complex en valt op door de hoge plafonds (3 meter) en grote raampartijen. Het licht stroomt rijkelijk naar binnen, waardoor een aangename en ruimtelijke sfeer ontstaat. Dit is een woning die zowel rust als dynamiek biedt – ideaal voor wie thuis wil ontspannen én af en toe wil thuiswerken.
De woonkamer met open keuken vormt het hart van de woning. De keuken is modern en naadloos geïntegreerd in de leefruimte, en voorzien van hoogwaardige apparatuur. Er zijn drie volwaardige slaapkamers, waaronder een royale master bedroom, en een eigentijdse badkamer met ligbad én aparte douche. Een apart toilet bevindt zich in de gang. Buiten heb je een eigen balkon, een heerlijke plek om even te genieten van de ochtend- of avondzon.
Met energielabel A en uitstekende isolatie is het comfort hoog en blijven de energiekosten laag. De vloer is voorzien van vloerverwarming en -koeling, waardoor het hele jaar door een aangenaam binnenklimaat heerst. Het gebouw beschikt over een lift en een professioneel beheerde Vereniging van Eigenaren. Een privéparkeerplaats in de onderbouw is optioneel te koop voor € 90.000,– een waardevolle toevoeging op de Zuidas.
De omgeving is dynamisch: restaurants, sportfaciliteiten (Rocycle, Club Sportive), Albert Heijn om de hoek en diverse parken zoals het Beatrixpark, Amstelpark en het Amsterdamse Bos liggen op korte afstand. Winkelcentrum Groot Gelderlandplein biedt zowel luxe boetieks als dagelijkse voorzieningen. Vanaf het NS station Zuid/WTC ben je in 6 minuten op Schiphol. Dankzij de nabijheid van ringweg A10 en de metro-, tram- en busverbindingen ben je snel in het centrum en andere delen van de stad.
Kenmerken in een oogopslag
- Woonoppervlakte 138 m²
- Verdieping 3e etage, lift aanwezig
- Slaapkamers 3, waaronder een ruime master bedroom
- Badkamer Modern, met ligbad en aparte douche
- Buitenruimte Balkon
- Energielabel A
- Parkeren Privéparkeerplaats onder complex optioneel te koop voor € 90.000
- VvE-bijdrage € 271,38 per maand
- Erfpachtcanon € 5.610,71 per jaar (jaarlijkse indexatie)
- Bouwjaar complex 2011, goed onderhouden
Waarom je deze woning wilt zien
• Grote raampartijen en hoge plafonds zorgen voor een prettige, lichte woonbeleving.
• Drie slaapkamers bieden ruimte voor gezin, logés of thuiswerk.
• Moderne open keuken met hoogwaardige afwerking.
• Balkon voor een moment in de zon.
• Uitstekende isolatie en energielabel A zorgen voor lage energiekosten.
• Optionele parkeerplaats – ideaal in dit deel van de stad.
• Ligging op de Zuidas: nabij station Zuid/WTC, A10, winkels, horeca en parken.
Zoek je een ruim, energiezuinig appartement met alles binnen handbereik? Plan dan snel een bezichtiging en ervaar zelf het comfort en de levendigheid van George Gershwinlaan 139.
Disclaimer:
Deze informatie is door ons met de nodige zorgvuldigheid samengesteld. Onzerzijds wordt echter geen enkele aansprakelijkheid aanvaard voor enige onvolledigheid, onjuistheid of anderszins, dan wel de gevolgen daarvan en wijzen de koper nadrukkelijk op zijn wettelijke onderzoek plicht.
Alle opgegeven maten zijn ingemeten conform NEN 2580 en zijn indicatief.
Alle informatie in deze advertentie is met zorg samengesteld. Echter, aan de verstrekte informatie kunnen geen rechten worden ontleend.
Light, luxury and space: 3 bedroom apartment (138 m²) with balcony and Energy Label A in the heart of the Zuidas
Welcome to the heart of the Zuidas! This modern apartment at George Gershwinlaan 139 combines a generous living area of around 138 m² with contemporary comfort and a prime location. Situated on the third floor of a well maintained complex, it stands out thanks to its high ceilings (3 m) and large windows. Natural light pours in, creating a pleasant and spacious atmosphere. This home offers both tranquillity and dynamism – ideal for those who want to relax at home yet occasionally work from home.
The living room with open kitchen forms the heart of the home. The kitchen is modern and seamlessly integrated into the living space, fitted with high quality appliances. There are three full bedrooms, including a generous master bedroom, and a contemporary bathroom with bathtub and separate shower. A separate toilet is located off the hallway. Outside, you have your own balcony, a lovely spot to enjoy the morning or evening sun.
With Energy Label A and excellent insulation, comfort is high and energy costs stay low. The floors have underfloor heating and cooling, ensuring a pleasant indoor climate all year round. The building is equipped with a lift and a professionally managed owners’ association. A private parking space in the basement can optionally be purchased for € 90,000 – a valuable addition in the Zuidas.
The surroundings are dynamic: restaurants, sports facilities (Rocycle, Club Sportive), an Albert Heijn just around the corner and various parks such as Beatrixpark, Amstelpark and the Amsterdamse Bos are close by. Groot Gelderlandplein shopping centre offers both luxury boutiques and everyday amenities. From Zuid/WTC station you can reach Schiphol Airport in six minutes. The nearby A10 ring road and metro, tram and bus connections mean you’re quickly in the city centre and other parts of Amsterdam.
At a glance
• Living area: 138 m²
• Floor: third floor, lift available
• Bedrooms: 3, including a spacious master bedroom
• Bathroom: Modern, with bathtub and separate shower
• Outdoor space: Balcony
• Energy label: A
• Parking: Private space under the complex optionally for sale (€ 90,000)
• Owners’ association contribution: € 271.38 per month
• Ground rent: € 5,610.71 per year (indexed annually)
• Year of construction: 2011, well maintained
Why you’ll want to view this property
• Large windows and high ceilings create a pleasant, light filled living experience.
• Three bedrooms offer space for family, guests or a home office.
• Modern open kitchen with high quality finish.
• Balcony for a moment in the sun.
• Excellent insulation and Energy Label A keep energy costs low.
• Optional parking space – ideal in this part of the city.
• Located in the Zuidas: close to Zuid/WTC station, the A10 ring road, shops, restaurants and parks.
Looking for a spacious, energy efficient apartment with everything within reach? Then schedule a viewing soon and experience the comfort and vibrancy of George Gershwinlaan 139 for yourself.
Disclaimer:
This information has been compiled by us with the necessary care. However, we accept no liability for any incompleteness, inaccuracy, or otherwise, or the consequences thereof, and we expressly refer the buyer to his legal duty to investigate.
All specified sizes have been measured in accordance with NEN 2580 and are indicative.
All information in this advertisement has been compiled with care. However, no rights can be derived from the information provided.
Overdracht
- Vraagprijs
- € 1.100.000 k.k.
- Aangeboden sinds
- 21-01-2026
- Status
- Beschikbaar
- Beschikbaar
- In overleg
- Onderhoudsstaat
- Goed
Oppervlakte en inhoud
- Woonoppervlakte
- 138 m²
- Inhoud
- 502 m³
VvE informatie
- Inschrijving KvK
- Ja
- Jaarlijkse vergadering
- Ja
- Periodieke bijdrage
- Ja (€ 271 per maand)
- Reservefonds aanwezig
- Ja
- Onderhoudsplan
- Ja
- Opstalverzekering
- Ja
Bouw
- Type woning
- Appartement
- Soort woning
- Bovenwoning, Appartement
- Soort bouw
- Bestaande bouw
- Bouwjaar
- 2011
- Ligging
-
- Aan een rustige weg
- In een woonwijk
- Nabij het openbaar vervoer
Indeling
- Aantal kamers
- 4
- Aantal slaapkamers
- 3
- Aantal badkamers
- 1
- Aantal woonlagen
- 1
- Verdieping
- 3
- Voorzieningen
-
- Toilet
- Wasruimte
Buitenruimte
- Balkon
- Aanwezig
- Dakterras
- Niet aanwezig
Energie
- Verwarming
- Warmtepomp
- Energielabel
- A
Bergruimte
- Schuur/Berging
- Aanwezig
Parkeergelegenheid
- Aanwezig
- Ja
- Soort parkeergelegenheid
- Betaald