Contact met de makelaar

Deze woning is gevonden buiten ons eigen netwerk. Met de knop hieronder kom je direct bij de aanbieder terecht.

Nieuw

Brouwersgracht 145 2

Bekijk kaart
1015 GG Amsterdam (Jordaan)
€ 450.000 k.k.
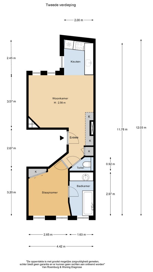
  • 40 m²
  • 2 kamers
  • 1933

Samenvatting

  • Deze woning wordt sinds 17 oktober 2025 aangeboden door Keizerskroon makelaars;
  • De bovenwoning heeft een woonoppervlakte van 40 m² en beschikt over 2 kamers, waarvan 1 slaapkamer;
  • De woning is gebouwd In 1933 en ligt in de buurt Jordaan in Amsterdam;
  • De woning beschikt onder andere over de volgende voorzieningen: Bad, Kabel TV, Mechanische ventilatie, Douche, Toilet.

Beschrijving

Meer woninginformatie bekijken?

Log in of registreer gratis.

Overdracht

Vraagprijs
€ 450.000 k.k.
Aangeboden sinds
17-10-2025
Status
Beschikbaar
Beschikbaar
In overleg
Bijzonderheden
Beschermd stads- of dorpsgezicht
Onderhoudsstaat
Goed

Oppervlakte en inhoud

Woonoppervlakte
40 m²
Perceeloppervlakte
40 m²
Inhoud
102 m³

VvE informatie

Inschrijving KvK
Ja
Jaarlijkse vergadering
Nee
Periodieke bijdrage
Ja (€ 66 per maand)
Reservefonds aanwezig
Ja
Onderhoudsplan
Nee
Opstalverzekering
Ja

Bouw

Type woning
Appartement
Soort woning
Bovenwoning, Appartement
Soort bouw
Bestaande bouw
Bouwjaar
1933
Ligging
  • Aan een rustige weg
  • Aan vaarwater
  • Aan het water
  • In het centrum
  • Vrij uitzicht

Indeling

Aantal kamers
2
Aantal slaapkamers
1
Aantal badkamers
1
Aantal woonlagen
1
Voorzieningen
  • Bad
  • Kabel TV
  • Mechanische ventilatie
  • Douche
  • Toilet

Buitenruimte

Balkon
Niet aanwezig
Tuin
Niet aanwezig
Dakterras
Niet aanwezig

Energie

Isolatie
Dubbele beglazing, Vloerisolatie
Verwarming
CV-ketel
Warm water
CV-ketel
Cv-ketel
HR combiketel (Gas, uit 2012, Eigendom)
Energielabel
D

Parkeergelegenheid

Aanwezig
Ja
Soort parkeergelegenheid
Openbaar

Garage

Aanwezig
Nee
Meld een probleem met deze woning
Contact met de makelaar Bel