Contact met de makelaar

Deze woning is gevonden buiten ons eigen netwerk. Met de knop hieronder kom je direct bij de aanbieder terecht.

Nieuw

Dijkstraat

Bekijk kaart
6828 JR Arnhem (Boulevardwijk)
€ 1.185.000 k.k.
  • 205 m²
  • 9 kamers
  • 1898

Samenvatting

  • Deze woning wordt sinds 28 januari 2026 aangeboden door Bell Makelaardij B.V.;
  • De galerijflat heeft een woonoppervlakte van 205 m² en beschikt over 9 kamers, waarvan 6 slaapkamers;
  • De woning is gebouwd In 1898 en ligt in de buurt Boulevardwijk in Arnhem.

Beschrijving

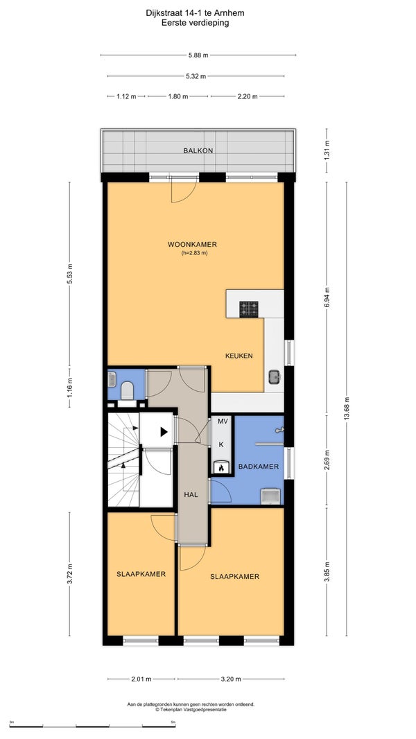
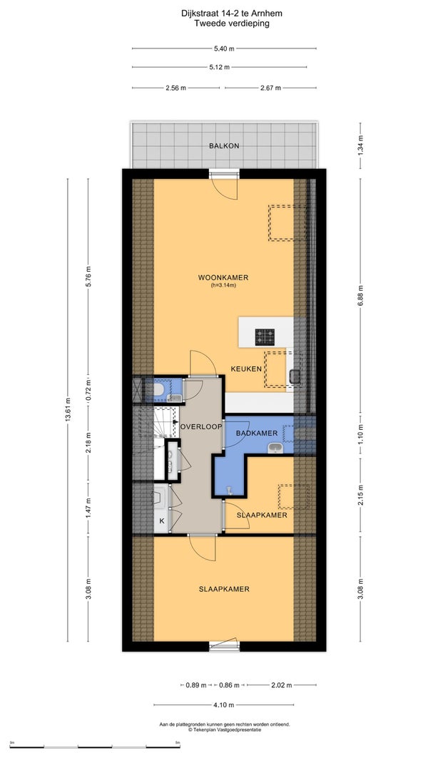
Dit unieke, multifunctionele herenhuis in het Spijkerkwartier in Arnhem herbergt drie luxe appartementen, elk met eigen buitenruimte en een stadstuin. Gevestigd in een prachtig pand uit de late 19e eeuw, is het geschikt voor diverse doeleinden zoals woongroepen en bed & breakfast. De appartementen zijn volledig gerenoveerd en bieden een hoogwaardige afwerking met vloerverwarming en luxe keukens. De indeling omvat onder andere multifunctionele ruimtes, slaapkamers en badkamers met moderne voorzieningen. De stadstuin en balkons bieden mooi uitzicht op de omgeving. De locatie vlak bij het stadscentrum en in een levendige wijk met veel groen en cultuur maakt dit herenhuis extra aantrekkelijk.

Overdracht

Vraagprijs
€ 1.185.000 k.k.
Aangeboden sinds
28-01-2026
Status
Beschikbaar
Beschikbaar
In overleg

Oppervlakte en inhoud

Woonoppervlakte
205 m²
Perceeloppervlakte
103 m²

Bouw

Type woning
Appartement
Soort woning
Galerijflat
Soort bouw
Bestaande bouw
Bouwjaar
1898

Indeling

Aantal kamers
9
Aantal slaapkamers
6
Aantal badkamers
3

Buitenruimte

Dakterras
Niet aanwezig

Energie

Energielabel
A+
Meld een probleem met deze woning