Contact met de makelaar

Deze woning is gevonden buiten ons eigen netwerk. Met de knop hieronder kom je direct bij de aanbieder terecht.

Nieuw

Dijkstraat 14 2

Bekijk kaart
6828 JR Arnhem (Boulevardwijk)
€ 385.000 k.k.
  • 65 m²
  • 3 kamers
  • 1898

Samenvatting

  • Deze woning wordt sinds 28 januari 2026 aangeboden door Bell Makelaardij B.V.;
  • De galerijflat heeft een woonoppervlakte van 65 m² en beschikt over 3 kamers, waarvan 2 slaapkamers;
  • De woning is gebouwd In 1898 en ligt in de buurt Boulevardwijk in Arnhem.

Beschrijving

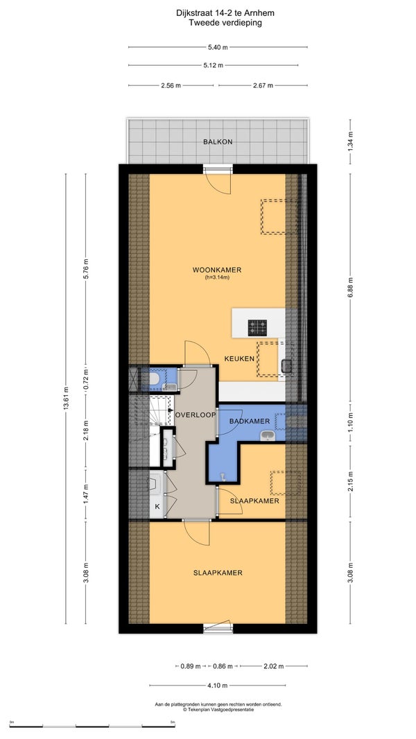
In het Spijkerkwartier in Arnhem, vind je deze unieke loftwoning, gelegen in een gerenoveerde smederij en omgevormd tot luxe appartementen. De instapklare woning heeft een zonnig balkon van 7 m² en biedt 65 m² woonoppervlakte met 3 kamers, waarvan 2 slaapkamers. De tweede verdieping heeft een open keuken met luxe inbouwapparatuur en een woonkamer met hoge plafonds van 3.14 m. De badkamer is voorzien van een inloopdouche en vloerverwarming, die ook door de gehele woning is aangebracht. Dit huis is voorzien van 23 zonnepanelen en heeft energielabel A. De locatie biedt charme en nabijheid van het stadscentrum. Parkeren kan met een vergunning. Deze woning is per direct beschikbaar voor €385.000,- kosten koper.

Overdracht

Vraagprijs
€ 385.000 k.k.
Aangeboden sinds
28-01-2026
Status
Beschikbaar
Beschikbaar
Per direct

Oppervlakte en inhoud

Woonoppervlakte
65 m²

Bouw

Type woning
Appartement
Soort woning
Galerijflat
Soort bouw
Bestaande bouw
Bouwjaar
1898

Indeling

Aantal kamers
3
Aantal slaapkamers
2
Aantal badkamers
1

Buitenruimte

Dakterras
Niet aanwezig

Energie

Energielabel
A
Meld een probleem met deze woning