Contact met de makelaar

Deze woning is gevonden buiten ons eigen netwerk. Met de knop hieronder kom je direct bij de aanbieder terecht.

Warmoezierstraat 12

Bekijk kaart
2613 VH Delft (Olofsbuurt)
€ 345.000 k.k.
  • 55 m²
  • 3 kamers
  • 1920

Samenvatting

  • Deze woning wordt sinds 6 weken aangeboden door Klijn Onroerend Goed Advies;
  • De benedenwoning heeft een woonoppervlakte van 55 m² en beschikt over 3 kamers, waarvan 2 slaapkamers;
  • De woning is gebouwd In 1920 en ligt in de buurt Olofsbuurt in Delft.

Beschrijving

Wonen net buiten het centrum in een van de zijstraatjes aan de smalle kant van de Buitenwatersloot. Dat betekent een paar wandelminuten van de binnenstad, de winkels of het station! Maar ook wonen in een gezellige buurt in een straat zonder doorgaand verkeer.

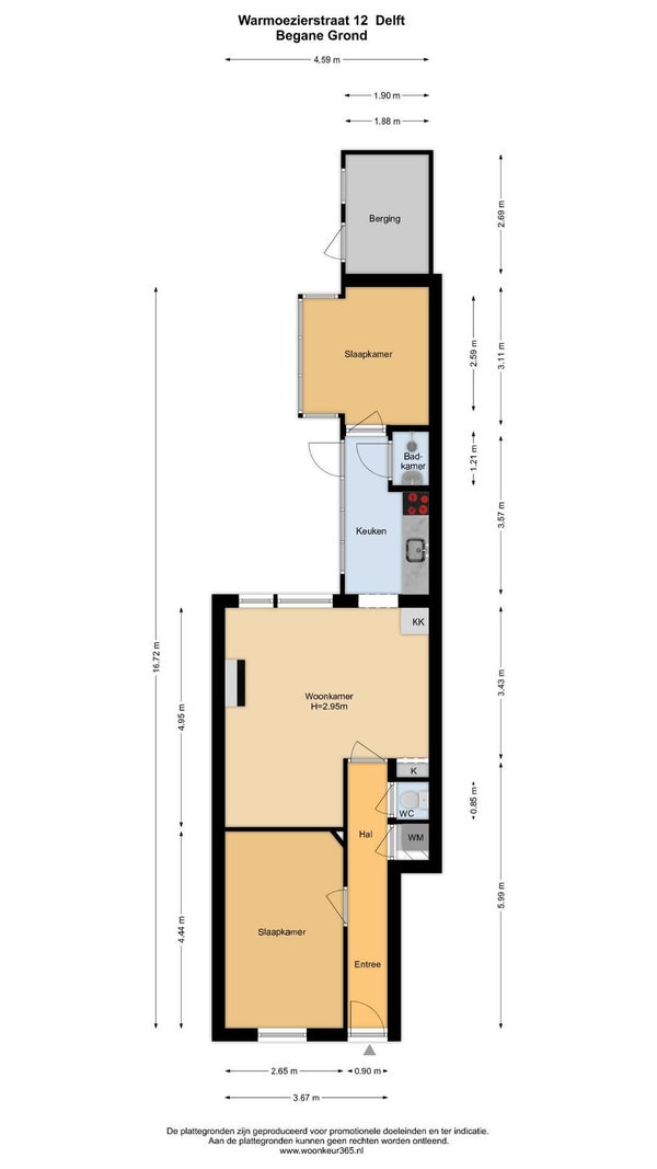
Indeling:

Entree/ gang met originele tegelvloer, apart toilet, opstelruimte voor wasmachine, voorslaapkamer met laminaatvloer en kunststof kozijn met dubbele beglazing, woonkamer aan tuinzijde met laminaatvloer, moderne keuken met diverse inbouwapparatuur waaronder gaskookplaat, afzuigkap, koelkast, vaatwasser en combi oven/magnetron en opstelplaats c.v. ketel (combi) en toegang naar tuin met aangebouwde berging, eenvoudige douchegelegenheid en uitgebouwde slaapkamer aan achterzijde.

Bijzonderheden:

- Woonoppervlakte circa 55 m2;

- Bouwjaar circa 1920;

- Geheel voorzien van dubbele beglazing;

- Kozijnen voorzijde vervangen voorzijde voor kunststof kozijn met dubbele beglazing;

- Dak uitbouw (wordt thans) vernieuwd en geïsoleerd 2025 ;

- Energielabel D;

- Niet bewoningsclausule van toepassing;

- VVE, ingeschreven in de K.v.K., beknopt meer jaren onderhoudsplan aanwezig en aandachtpunten reeds verholpen;

- Gemeenschappelijke opstalverzekering, Bijdrage VVE circa € 50,00 per maand;

- Project notaris Westvest Notarissen te Delft.

Reageer op tijd op nieuw woningaanbod

Meer dan de helft van de reacties komt binnen 48 uur. Ontvang direct notificaties bij nieuw aanbod en reageer sneller met Pararius+.

Probeer Pararius+ 14 dagen € 0,01

Overdracht

Vraagprijs
€ 345.000 k.k.
Aangeboden sinds
20-11-2025
Status
Beschikbaar
Beschikbaar
In overleg
Onderhoudsstaat
Goed

Oppervlakte en inhoud

Woonoppervlakte
55 m²
Inhoud
238 m³

VvE informatie

Inschrijving KvK
Ja
Jaarlijkse vergadering
Ja
Periodieke bijdrage
Ja (€ 50 per maand)
Reservefonds aanwezig
Nee
Onderhoudsplan
Ja
Opstalverzekering
Ja

Bouw

Type woning
Appartement
Soort woning
Benedenwoning, Appartement
Soort bouw
Bestaande bouw
Bouwjaar
1920
Ligging
  • Aan een rustige weg
  • Nabij het openbaar vervoer
  • Nabij een winkelcentrum

Indeling

Aantal kamers
3
Aantal slaapkamers
2
Aantal badkamers
1
Aantal woonlagen
1
Voorzieningen
  • Douche
  • Toilet

Buitenruimte

Balkon
Niet aanwezig
Tuin
Aanwezig (17 m², gelegen op het noordoosten)
Dakterras
Niet aanwezig

Energie

Isolatie
Dubbele beglazing
Energielabel
D

Bergruimte

Schuur/Berging
Aanwezig

Parkeergelegenheid

Aanwezig
Nee

Garage

Aanwezig
Nee
Meld een probleem met deze woning