Contact met de makelaar

Deze woning is gevonden buiten ons eigen netwerk. Met de knop hieronder kom je direct bij de aanbieder terecht.

Nieuw

Dedemsvaartweg 1157

Bekijk kaart
2545 DR Den Haag (Dreven en Gaarden)
€ 335.000 k.k.
  • 87 m²
  • 2 kamers
  • 1994

Samenvatting

  • Deze woning wordt sinds 11 januari 2026 aangeboden door RE/MAX City Makelaardij;
  • De portiekflat heeft een woonoppervlakte van 87 m² en beschikt over 2 kamers, waarvan 1 slaapkamer;
  • De woning is gebouwd In 1994 en ligt in de buurt Dreven en Gaarden in Den Haag;
  • De woning beschikt onder andere over de volgende voorzieningen: Mechanische ventilatie, Douche, Toilet.

Beschrijving

English version down below

Wanneer je op zoek bent naar een prettig gelegen en uitstekend bereikbaar appartement in Den Haag, dan is deze portiekflat beslist het bekijken waard. Hier woon je aan de rand van de levendige wijk Bouwlust en Vrederust, met werkelijk alles wat je nodig hebt binnen handbereik.

Het ruime hoekappartement beschikt over een grote raampartij, waardoor er veel licht inval is. Het appartement heeft een ruim balkon met vrij uitzicht. Ook is er een loggia, waardoor het gevoel van vrijheid wordt vergroot.

Het comfortabele appartement heeft zeer ruime kamers en geeft gelegenheid tot het creëren van een tweede slaapkamer. Naast een privé berging is er ook een gezamenlijk fietsenberging beschikbaar. Tevens beschikt het appartementencomplex over een afgesloten parkeerterrein, zodat parkeerproblemen tot het verleden behoren.

De ligging is zeer prettig met de nodige voorzieningen in de nabije omgeving. Winkelcentrum Leyweg is op loopafstand en recreatiegebieden Madestein en Het Zuiderpark zijn binnen een paar minuten fietsen te bereiken. De snelwegen A4, A12 en A13 zijn snel en gemakkelijk te bereiken. Er is voldoende openbaar vervoer in de nabije omgeving, de tramhalte is letterlijk bij de voordeur!

Zie jij jezelf hier al helemaal wonen? Maak dan snel een afspraak voor een bezichtiging. Voordat je het weet, draai jij de sleutel om van jouw nieuwe stek!

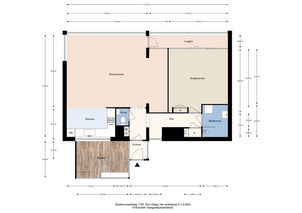
Indeling
Het appartementencomplex heeft het bellentableau en de brievenbussen, voor de ingang van de centrale hal. In de ruime, centrale hal treffen we de lift.

Het appartement is gelegen op de vierde verdieping. Bij binnenkomst treffen we een hal, welke toegang geeft tot het balkon aan de achterzijde van het appartement. Het balkon geeft uitzicht over de sportvelden, die achter de woning zijn gelegen. Ook is de volgende toegangsdeur bereikbaar vanuit deze hal, welke toegang geeft tot het appartement.

Het betreft een hoekappartement. De woonkamer is hierdoor gelegen aan de zijkant en aan de achterkant van het gebouw. De vele ramen laten veel licht binnen. De woonkamer is zeer ruim, mede doordat de lay-out van de woning is gewijzigd. Een van de slaapkamer is bij de woonkamer getrokken. Indien gewenst is het appartement om te bouwen naar een 3-kamer appartement.

Er is sprake van een open keuken. De keuken is voorzien van een vaatwasser, afzuigkap, dubbele spoelbak, oven, 4 pits gasstel, elektrische warmwater boiler en koelkast met vriesvak.

Vanuit de woonkamer is er een gang die toegang geeft tot alle andere vertrekken in de woning. Vanuit de gang treffen we de toiletruimte aan, welke is voorzien van een staand toilet en wasbak met fontein. Naast de toiletruimte is de meterkast gesitueerd, met de elektra en de gasmeter.
Op de gang treffen we ook de garderobe en de voorraadkast met de CV-combiketel en de installatie van de centrale afzuiging.

Aan het einde van de gang is de badkamer gelegen. De badkamer is voorzien van een ruime douchecabine met schuifdeur en wastafel. In de badkamer is ruimte voor de wasmachine.

Aan het einde van de gang, aan de linkerzijde is de slaapkamer gelegen. De slaapkamer is zeer ruim. De slaapkamer is gelegen aan de zijkant van de woning. Naast de slaapkamer is een inpandig balkon (loggia) gelegen. Dit interne balkon heeft grote schuiframen. De loggia loopt door tot aan de woonkamer.

De woning heeft ook een centrale fietsenstalling en een eigen berging onder het gebouw. De berging is voorzien van stroom en voldoende ruim voor de opslag voor spullen en het stallen van fietsen. Tevens is er een parkeerplaats beschikbaar op het afgesloten parkeerterrein, naast het appartementencomplex.

Kenmerken van de woning:

  • Type woning : Portiekflat, appartement met balkon, loggia, berging, gemeenschappelijke fietsenberging en een parkeermogelijkheid op het terrein achter het complex
  • Bouwjaar : 1994
  • Woonoppervlakte : 87,7 m2
  • De woning is gelegen op grond belast met erfpacht, welke eeuwigdurend is afgekocht
  • Energielabel : B, geldig tot 24 november 2035
  • De woning is van aluminium kozijnen met dubbelglas
  • Er is sprake van een Actieve VvE, met een maandelijkse bijdrage van € 305,77
  • Verwarming en warmwater middels CV combiketel (2002, eigendom)
  • Elektrische boiler voor tapwater in de keuken
  • Niet-zelfbewoningsclausule is van toepassing
  • De ouderdoms- en materialenclausule zijn van toepassing

If you're looking for a conveniently located and easily accessible apartment in The Hague, this apartment building is definitely worth a look. You'll live on the edge of the vibrant Bouwlust and Vrederust neighborhoods, with everything you need within easy reach.

The spacious corner apartment features large windows, allowing for abundant natural light. It also boasts a generous balcony with unobstructed views. There's also a loggia, enhancing the feeling of freedom.

The comfortable apartment has very spacious rooms and offers the possibility of creating a second bedroom. In addition to a private storage unit, there is also a shared bicycle shed. The apartment complex also has a secure parking lot, so parking problems are a thing of the past.

The location is very convenient, with all the necessary amenities nearby. The Leyweg shopping center is within walking distance, and the Madestein and Zuiderpark recreation areas are just a few minutes' bike ride away. The A4, A12, and A13 highways are easily accessible. There's ample public transport nearby, with the tram stop literally right outside the door!

Can you already picture yourself living here? Then schedule a viewing soon. You'll be turning the key to your new home before you know it!

Layout
The apartment complex has its doorbell panel and mailboxes in front of the entrance to the central hall. The elevator is located in the spacious central hall.

The apartment is located on the fourth floor. Upon entering, you'll find a hallway leading to the balcony at the rear of the apartment. The balcony overlooks the sports fields behind the house. The next entrance door, which provides access to the apartment, is also accessible from this hallway.

This is a corner apartment. The living room is therefore located at the side and rear of the building. The numerous windows allow plenty of natural light to flood in. The living room is very spacious, partly due to the layout of the house being altered. One of the bedrooms has been integrated into the living room. If desired, the apartment can be converted into a three-room apartment.

The kitchen is open-plan and equipped with a dishwasher, extractor hood, double sink, oven, 4-burner gas stove, electric water heater, and refrigerator with freezer compartment.

From the living room, a hallway provides access to all other rooms in the house. The toilet is accessible from the hallway, and features a standing toilet and a sink with a hand basin. Next to the toilet is the meter cupboard, which houses the electricity and gas meters.
In the hallway we also find the wardrobe and the pantry with the central heating boiler and the central extraction system.

The bathroom is located at the end of the hallway. It features a spacious shower with a sliding door and a sink. There's also space for a washing machine.

At the end of the hallway, on the left, is the very spacious bedroom. It's located on the side of the house. Adjacent to the bedroom is an indoor balcony (loggia). This internal balcony has large sliding windows. The loggia extends into the living room.

The apartment also has a central bicycle shed and a private storage unit under the building. The storage unit is equipped with electricity and offers ample space for storing belongings and bicycles. A parking space is also available in the enclosed parking lot next to the apartment complex.

Features of the house:

  • Property type : Apartment with balcony, loggia, storage room, communal bicycle shed and parking on the property behind the complex
  • Year of construction : 1994
  • Living area : 87.7 m2
  • The house is located on land subject to leasehold, which has been bought off in perpetuity
  • Energy label : B, valid until November 14, 2035
  • The house has aluminum frames with double glazing
  • There is an active homeowners' association, with a monthly contribution of € 305.77
  • Heating and hot water via central heating boiler (2002, owned)
  • Electric boiler for hot water in the kitchen
  • Non-occupancy clause applies
  • The age and materials clause apply

Overdracht

Vraagprijs
€ 335.000 k.k.
Aangeboden sinds
11-01-2026
Status
Beschikbaar
Beschikbaar
In overleg
Onderhoudsstaat
Goed

Oppervlakte en inhoud

Woonoppervlakte
87 m²
Inhoud
275 m³

VvE informatie

Inschrijving KvK
Ja
Jaarlijkse vergadering
Ja
Periodieke bijdrage
Ja (€ 306 per maand)
Reservefonds aanwezig
Ja
Onderhoudsplan
Ja
Opstalverzekering
Ja

Bouw

Type woning
Appartement
Soort woning
Portiekflat, Appartement
Soort bouw
Bestaande bouw
Bouwjaar
1994
Ligging
  • In een woonwijk
  • Nabij het openbaar vervoer
  • Nabij een school
  • Nabij een winkelcentrum
  • Vrij uitzicht

Indeling

Aantal kamers
2
Aantal slaapkamers
1
Aantal badkamers
1
Aantal woonlagen
1
Verdieping
4
Voorzieningen
  • Mechanische ventilatie
  • Douche
  • Toilet

Buitenruimte

Balkon
Aanwezig
Dakterras
Niet aanwezig

Energie

Isolatie
Dubbele beglazing, Volledig geïsoleerd
Verwarming
CV-ketel
Warm water
CV-ketel
Cv-ketel
Vaillant C12, CW 3 (Gas, uit 2002, Eigendom)
Energielabel
B

Bergruimte

Schuur/Berging
Aanwezig

Parkeergelegenheid

Aanwezig
Ja
Soort parkeergelegenheid
Openbaar
Meld een probleem met deze woning