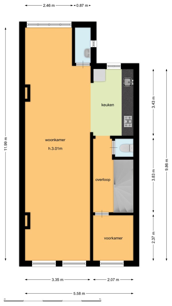
- 116 m²
- 6 kamers
- 1895
Samenvatting
- Deze woning wordt sinds 23 oktober 2025 aangeboden door Arnold Taal Makelaardij;
- De bovenwoning heeft een woonoppervlakte van 116 m² en beschikt over 6 kamers, waarvan 3 slaapkamers;
- De woning is gebouwd In 1895 en ligt in de buurt Koningsplein en omgeving in Den Haag;
- De woning beschikt onder andere over de volgende voorzieningen: Bad, Kabel TV, Mechanische ventilatie, Douche, Toilet, Wasruimte.
Beschrijving
Overdracht
- Vraagprijs
- € 600.000 k.k.
- Aangeboden sinds
- 23-10-2025
- Status
- Beschikbaar
- Beschikbaar
- Per direct
- Bijzonderheden
- Beschermd stads- of dorpsgezicht
- Onderhoudsstaat
- Goed
Oppervlakte en inhoud
- Woonoppervlakte
- 116 m²
- Inhoud
- 435 m³
VvE informatie
- Inschrijving KvK
- Ja
- Jaarlijkse vergadering
- Ja
- Periodieke bijdrage
- Ja (€ 175 per maand)
- Reservefonds aanwezig
- Ja
- Onderhoudsplan
- Nee
- Opstalverzekering
- Ja
Bouw
- Type woning
- Appartement
- Soort woning
- Bovenwoning, Dubbel bovenhuis
- Soort bouw
- Bestaande bouw
- Bouwjaar
- 1895
- Ligging
- Aan een rustige weg
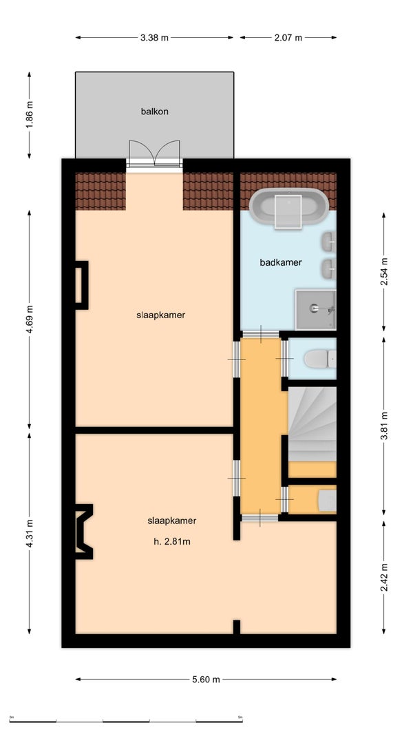
Indeling
- Aantal kamers
- 6
- Aantal slaapkamers
- 3
- Aantal badkamers
- 2
- Aantal woonlagen
- 2
- Voorzieningen
-
- Bad
- Kabel TV
- Mechanische ventilatie
- Douche
- Toilet
- Wasruimte
Buitenruimte
- Balkon
- Aanwezig
- Tuin
- Niet aanwezig
- Dakterras
- Niet aanwezig
Energie
- Verwarming
- CV-ketel
- Warm water
- CV-ketel
- Cv-ketel
- Remeha (Gas, uit 2017, Eigendom)
- Energielabel
- A
Parkeergelegenheid
- Aanwezig
- Ja
- Soort parkeergelegenheid
- Openbaar
Garage
- Aanwezig
- Nee