Contact met de makelaar

Deze woning is gevonden buiten ons eigen netwerk. Met de knop hieronder kom je direct bij de aanbieder terecht.

Denenburg 22

Bekijk kaart
2591 AD Den Haag (Burgen en Horsten)
€ 225.000 k.k.
  • 58 m²
  • 3 kamers
  • 1960

Samenvatting

  • Deze woning wordt sinds 6 januari 2026 aangeboden door RE/MAX Adviseurs Haaglanden;
  • De galerijflat heeft een woonoppervlakte van 58 m² en beschikt over 3 kamers, waarvan 2 slaapkamers;
  • De woning is gebouwd In 1960 en ligt in de buurt Burgen en Horsten in Den Haag;
  • De woning beschikt onder andere over de volgende voorzieningen: Douche, Bergruimte, Toilet, Wasruimte.

Beschrijving

For English see text below

Starters opgelet!
Knus driekamer appartement met zonnig balkon én berging

Dit appartement ligt op de 1e verdieping van een kleinschalig goed onderhouden appartementencomplex (1960) en heeft een woonoppervlakte van circa 58m². Vanwege de vele raampartijen is de woonkamer licht en het uitzicht weids. Het balkon ligt op het zuid-oosten. De open keuken beschikt over inbouwapparatuur. De tussengelegen (werk)kamer kan eenvoudig bij de slaapkamer worden getrokken. Een afgesloten (fietsen)berging bevindt zich in de onderbouw. Parkeren kan op eigen (afgesloten) terrein.

De locatie is prima, gelegen in Mariahoeve, een stadsdeel met veel groen aan de rand van Den Haag dat zich kenmerkt door zijn centrale ligging ten opzichte van allerlei voorzieningen. Op een paar minuten loopafstand bevinden zich winkelcentrum ‘Het Kleine Loo’ met een keur aan winkels en allerlei openbaar vervoervoorzieningen (NS station Laan van NOI), bus 23 en tram 2).

Binnen een paar autominuten zit je op de snelwegen A4, A12 en A13; het centrum van Den Haag ligt op ongeveer een kwartier fietsen en ook het strand van Scheveningen is gemakkelijk bereikbaar. Daarnaast zijn er talloze voorzieningen en recreatiemogelijkheden in de buurt, zoals scholen, de huisartsenpraktijk, het gezondheidscentrum, het Haagse Bos en zwembad Overbosch.

Dit appartement iis vanwege locatie en indeling uitermate geschikt voor één- en twee persoonshuishoudens. Een bezichtiging is zeker de moeite waard. Zie ik u snel?

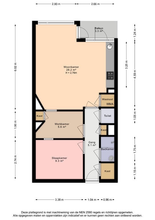
Indeling begane grond
Toegang tot het complex wordt verkregen aan de achterzijde van het gebouw. De centrale hal (voorzien van brievenbussen en bellentableau met intercom) geeft toegang tot een afgesloten berging in de onderbouw (5m²). Via trap en lift wordt de eerste verdieping bereikt.

Indeling appartement
De ingang van het appartement ligt aan de galerijzijde. De gang (5m²) geeft toegang tot alle vertrekken, waaronder een meterkast (6 groepen), een inpandige kast, toilet met fonteintje en een badkamer (2.75m²), voorzien van douchecabine en wastafel met planchet en spiegel. De aan de voorzijde gelegen ruime, lichte woonkamer met open keuken (28m²) geeft weids uitzicht op de Norenburg. De open keuken is voorzien van een 5 pits gasfornuis, afzuigkap, combi oven, vaatmachine en koelvriescombi. Een geiser draagt zorg voor heet water. Zowel de woonkamer als keuken geeft toegang tot het op het zuidoosten gelegen balkon. De woonkamer beschikt over een inpandige kast, met mogelijkheid tot het plaatsen van een wasmachine. De aan galerijzijde gelegen slaapkamer is 9m². De naast gelegen (werk)kamer van 5.6m, eveneens voorzien van een vaste kast, kan desgewenst eenvoudig bij de slaapkamer worden getrokken.

Overige kenmerken
Plafondhoogte bedraagt 2.76 meter
In de gang, woonkamer, keuken en slaapkamer ligt een grenen houten vloer
De houten kozijnen zijn merendeels uitgerust met dubbel glas
Verwarming wordt geleverd door een gashaard in de woonkamer
Een geiser In eigendom) levert warm water
Het energielabel is E en geldig tot 04-09- 2028
De VVE is actief, een MJOP is aanwezig, de maandelijkse VVE bijdrage is € 175,00
De berging beschikt over licht en elektra
Een asbest-, materialen- en niet bewonersclausule zijn van toepassing
Erfpacht is van toepassing, grondeigenaar is gemeente Den Haag. De jaarlijkse canon bedraagt momenteel € 66,12. Herziening erfpacht is bij de gemeente aangevraagd.
Parkeren kan op eigen terrein, in de directe omgeving is het gratis
Opleveren kan snel

Attention starters!
Cozy three-room apartment with sunny balcony and storage

This apartment is located on the 1st floor of a small, well-maintained apartment complex (1960) and has a living area of approximately 58m². Thanks to the many windows, the living room is bright and offers wide views. The balcony faces southeast. The open kitchen is equipped with built-in appliances. The intermediate (work) room can easily be added to the bedroom. A locked (bicycle) storage room is located in the basement. Parking is possible on private (enclosed) grounds.

The location is excellent, situated in Mariahoeve, a neighborhood with plenty of greenery on the outskirts of The Hague, which is known for its central location in relation to various amenities. Within a few minutes' walk, you will find the ‘Het Kleine Loo’ shopping center with a wide range of stores and various public transport options (NS station Laan van NOI, bus 23, and tram 2).

Within a few minutes by car, you can reach the A4, A12, and A13 highways; the center of The Hague is about a fifteen-minute bike ride, and the beach at Scheveningen is also easily accessible. In addition, there are numerous facilities and recreational opportunities nearby, such as schools, the general practitioner's practice, the health center, the Haagse Bos, and Overbosch swimming pool.

Due to its location and layout, this apartment is particularly suitable for one- and two-person households. A viewing is definitely worth it. Will I see you soon?

Ground floor layout
Access to the complex is obtained from the rear of the building. The central hall (equipped with mailboxes and a doorbell panel with intercom) provides access to a locked storage room in the basement (5m²). The first floor can be reached by stairs or lift.

Apartment layout
The entrance to the apartment is on the gallery side. The hallway (5m²) provides access to all rooms, including a meter cupboard (6 groups), an internal closet, toilet with sink, and a bathroom (2.75m²) equipped with a shower cabin and a washbasin with shelf and mirror. The spacious, bright living room with open kitchen (28m²), located at the front, offers a wide view of the Norenburg. The open kitchen includes a 5-burner gas stove, extractor hood, combi oven, dishwasher, and fridge-freezer combination. A water heater provides hot water. Both the living room and kitchen provide access to the southeast-facing balcony. The living room features an internal closet, with the possibility to installing a washing machine. The bedroom located on the gallery side is 9m². The adjacent (study) room of 5.6m, also equipped with a closet, can easily be added to the bedroom if desired.

Other features
Ceiling height is 2.76 meters
In the hallway, living room, kitchen and bedroom there is a pine wooden floor
The wooden frames are mostly equipped with double glazing
Heating is provided by a gas fireplace in the living room
A geyser (in ownership) provides hot water
The energy label is E and valid until 04-09-2028
The VVE is active, an MJOP is available, the monthly VVE contribution is € 175.00
The storage room has light and electricity
An asbestos, materials and non-resident clause apply
Leasehold applies, landowner is the municipality of The Hague. The annual ground rent is currently € 66.12. A review of leasehold has been requested from the municipality.
Parking is available on site, it is free in the immediate vicinity
Delivery can be done quickly

Reageer op tijd op nieuw woningaanbod

Meer dan de helft van de reacties komt binnen 48 uur. Ontvang direct notificaties bij nieuw aanbod en reageer sneller met Pararius+.

Probeer Pararius+ 14 dagen € 0,01

Overdracht

Vraagprijs
€ 225.000 k.k.
Aangeboden sinds
06-01-2026
Status
Beschikbaar
Beschikbaar
In overleg
Onderhoudsstaat
Redelijk

Oppervlakte en inhoud

Woonoppervlakte
58 m²
Inhoud
196 m³

Bouw

Type woning
Appartement
Soort woning
Galerijflat, Appartement
Soort bouw
Bestaande bouw
Bouwjaar
1960
Ligging
  • Aan een rustige weg
  • In een woonwijk
  • Vrij uitzicht

Indeling

Aantal kamers
3
Aantal slaapkamers
2
Aantal badkamers
1
Aantal woonlagen
1
Verdieping
2
Voorzieningen
  • Douche
  • Bergruimte
  • Toilet
  • Wasruimte

Buitenruimte

Balkon
Aanwezig
Dakterras
Niet aanwezig

Energie

Verwarming
Gashaard
Warm water
Geiser
Energielabel
E

Bergruimte

Schuur/Berging
Aanwezig

Parkeergelegenheid

Aanwezig
Ja
Soort parkeergelegenheid
Openbaar
Meld een probleem met deze woning