Contact met de aanbieder

Deze woning is gevonden buiten ons eigen netwerk. Via de knop hieronder ga je direct naar de website van de aanbieder.

Verkocht onder voorbehoud

Bosschestraat 68

Bekijk kaart
2587 HG Den Haag (Belgisch Park)
€ 695.000 k.k.
  • 152 m²
  • 5 kamers
  • 1923

Samenvatting

  • Deze woning wordt sinds 6 weken aangeboden door Wooncompany Den Haag;
  • De bovenwoning heeft een woonoppervlakte van 152 m² en beschikt over 5 kamers, waarvan 4 slaapkamers;
  • De woning is gebouwd In 1923 en ligt in de buurt Belgisch Park in Den Haag;
  • De woning beschikt onder andere over de volgende voorzieningen: Bad, Mechanische ventilatie, Dakterras, Douche, Toilet.

Beschrijving

Bosschestraat 68 – Den Haag
Wonen in het Belgisch Park
Dit ruime dubbelbovenhuis ligt in het geliefde Belgisch Park in Scheveningen. Een groene en statige wijk met brede lanen, karakteristieke panden en de luxe van het strand, de zee en de boulevard op loopafstand. Winkels, scholen, sportvoorzieningen en openbaar vervoer zijn allemaal binnen handbereik. Een ideale plek voor wie comfortabel wil wonen in een rustige omgeving, maar wel midden in de levendigheid van Scheveningen.

Indeling
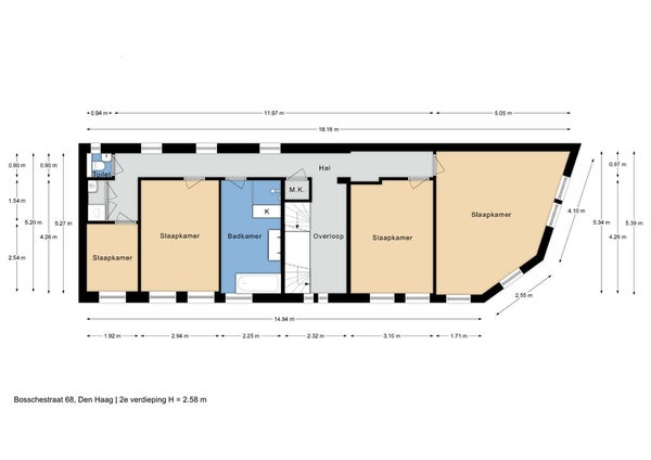
Via de portiektrap bereik je de entree van de woning. Vanuit de hal ga je met de trap direct naar de tweede verdieping, waar zich alle slaapvertrekken bevinden. In totaal zijn er vier slaapkamers, ideaal voor een gezin of voor wie thuis een werkkamer nodig heeft. De moderne badkamer is luxe afgewerkt met een ligbad, dubbele wastafel en inloopdouche. Op deze verdieping is tevens een apart toilet aanwezig.
Het woongedeelte bevindt zich op de derde verdieping, waardoor je hier profiteert van veel licht en een vrij gevoel. De keuken ligt centraal in de woning en sluit aan op de eetkamer, vanwaar je via openslaande deuren toegang hebt tot het zonnige dakterras. Aan de voorzijde bevindt zich de royale woonkamer, een fijne plek om te ontspannen. Ook op deze verdieping is een apart toilet aanwezig.
Dankzij deze unieke indeling – slapen op de tweede en wonen bovenop de derde – voelt het appartement ruimtelijk en anders dan gebruikelijk. De woning is bovendien volledig opgeknapt en voorzien van moderne afwerking, waardoor hij direct te betrekken is.

Bijzonderheden
-Gebruiksoppervlakte wonen: ca. 152 m² (meetrapport aanwezig)
-Gebouwgebonden buitenruimte: ca. 14,6 m² (dakterras)
-Energielabel: A
-Volledig gerenoveerd en instapklaar
-Actieve VvE, bijdrage: € 65,25per maand
-Aandeel in de VvE: 121/378
-Eeuwigdurende erfpacht
-Canon: € 1.346,57 per jaar (te vermeerderen met beheerkosten), berekend over een grondwaarde van € 40.805,– met een canonpercentage van 3,3%. Herziening canonpercentage per 1 januari 2030
-De erfpachtcanon is bij gebruik als eigen woning fiscaal aftrekbaar.
-Projectnotaris: Quadrant Notarissen
-Ouderdoms- en materialenclausule van toepassing
-Niet-zelfbewoningsclausule van toepassing
-Oplevering in overleg

English

Bosschestraat 68 – The Hague Living in the Belgisch Park
This spacious double upper house is located in the sought-after Belgisch Park in Scheveningen. A green and stately neighborhood with wide avenues, characteristic architecture, and the luxury of having the beach, the sea, and the boulevard within walking distance. Shops, schools, sports facilities, and public transport are all close at hand. An ideal location for those who want to live comfortably in a quiet setting, yet right in the heart of lively Scheveningen.

Layout
Via the shared staircase you reach the entrance of the apartment. From the hall, a staircase leads directly to the second floor, where all bedrooms are located. There are four bedrooms in total – ideal for a family or for those who need a home office. The modern bathroom is finished to a high standard with a bathtub, double washbasin, and walk-in shower. A separate toilet is also located on this floor.
The living area is on the third floor, offering plenty of natural light and a sense of openness. The centrally positioned kitchen connects to the dining room, from where French doors open onto the sunny roof terrace. At the front, you’ll find the spacious living room – a perfect place to relax. A second separate toilet is also located on this floor.
Thanks to this unique layout – sleeping on the second floor and living on the third – the apartment feels open and different from the usual. The property has been completely renovated and features modern finishes, making it ready to move into.

Features
-Living area: approx. 152 m² (measurement report available)
-Outdoor space: approx. 14.6 m² (roof terrace)
-Energy label: A
-Fully renovated and move-in ready
-Active owners’ association (VvE), contribution: € 65.25 per month
-Share in the VvE: 121/378
-Perpetual leasehold
-Ground rent: € 1,346.57 per year (plus management costs), based on a land value of € 40,805 with a canon rate of 3.3%. Revision of the canon rate as of January 1, 2030
-The ground rent is tax-deductible when used as a primary residence
-Project notary: Quadrant Notarissen
-Age and materials clauses apply
-Non-self-occupancy clause applies
-Transfer subject to agreement

Overdracht

Vraagprijs
€ 695.000 k.k.
Prijs per m²
€ 4.572
Aangeboden sinds
09-01-2026
Status
Verkocht onder voorbehoud
Beschikbaar
In overleg
Onderhoudsstaat
Zeer goed

Oppervlakte en inhoud

Woonoppervlakte
152 m²
Inhoud
508 m³

VvE informatie

Inschrijving KvK
Ja
Jaarlijkse vergadering
Ja
Periodieke bijdrage
Ja (€ 65 per maand)
Reservefonds aanwezig
Ja
Onderhoudsplan
Ja
Opstalverzekering
Ja

Bouw

Type woning
Appartement
Soort woning
Bovenwoning, Dubbel bovenhuis
Soort bouw
Bestaande bouw
Bouwjaar
1923
Ligging
  • Nabij het openbaar vervoer
  • Nabij een school

Indeling

Aantal kamers
5
Aantal slaapkamers
4
Aantal badkamers
1
Aantal woonlagen
2
Verdieping
2
Voorzieningen
  • Bad
  • Mechanische ventilatie
  • Dakterras
  • Douche
  • Toilet

Buitenruimte

Balkon
Niet aanwezig
Dakterras
Aanwezig

Energie

Isolatie
Dubbele beglazing, Vloerisolatie
Verwarming
CV-ketel
Warm water
CV-ketel
Energielabel
A

Parkeergelegenheid

Aanwezig
Ja
Soort parkeergelegenheid
Openbaar
Meld een probleem met deze woning