Contact met de makelaar

Deze woning is gevonden buiten ons eigen netwerk. Met de knop hieronder kom je direct bij de aanbieder terecht.

Rapenburg

Bekijk kaart
2311 GG Leiden (Academiewijk)
€ 650.000 k.k.
  • 105 m²
  • 3 kamers
  • 1728

Samenvatting

  • Deze woning wordt sinds 6 weken aangeboden door DOEN NVM Makelaars - Voorburg;
  • De galerijflat heeft een woonoppervlakte van 105 m² en beschikt over 3 kamers, waarvan 2 slaapkamers;
  • De woning is gebouwd In 1728 en ligt in de buurt Academiewijk in Leiden.

Beschrijving

Overdracht

Vraagprijs
€ 650.000 k.k.
Aangeboden sinds
30-10-2025
Status
Beschikbaar
Beschikbaar
In overleg

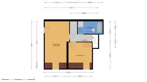
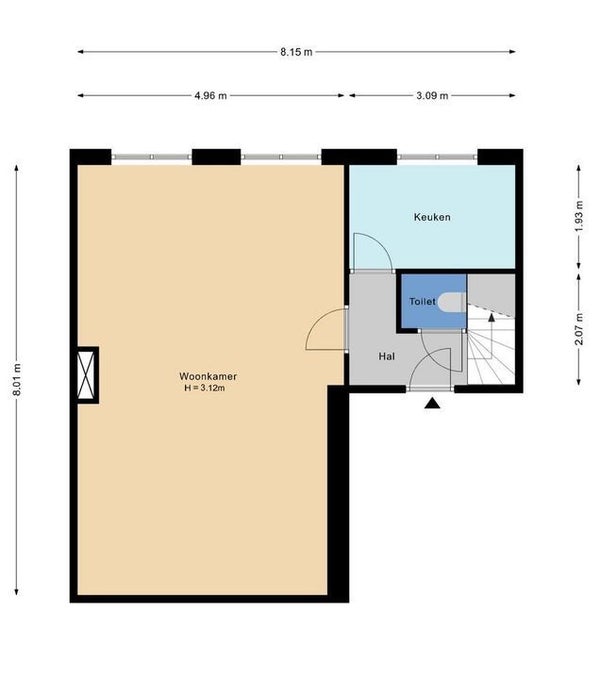
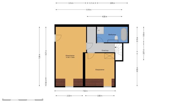
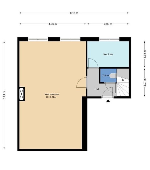
Oppervlakte en inhoud

Woonoppervlakte
105 m²

Bouw

Type woning
Appartement
Soort woning
Galerijflat
Soort bouw
Bestaande bouw
Bouwjaar
1728

Indeling

Aantal kamers
3
Aantal slaapkamers
2
Aantal badkamers
1

Buitenruimte

Dakterras
Niet aanwezig
Meld een probleem met deze woning