Contact met de aanbieder

Deze woning is gevonden buiten ons eigen netwerk. Via de knop hieronder ga je direct naar de website van de aanbieder.

Nieuw

Mahlerstraat 46

Bekijk kaart
2324 JH Leiden (Fortuinwijk-Noord)
€ 225.000 k.k.
  • 64 m²
  • 3 kamers
  • 1965

Samenvatting

  • Deze woning wordt sinds 24 februari 2026 aangeboden door DOEN NVM Makelaars - Voorburg;
  • De galerijflat heeft een woonoppervlakte van 64 m² en beschikt over 3 kamers, waarvan 2 slaapkamers;
  • De woning is gebouwd In 1965 en ligt in de buurt Fortuinwijk-Noord in Leiden.

Beschrijving

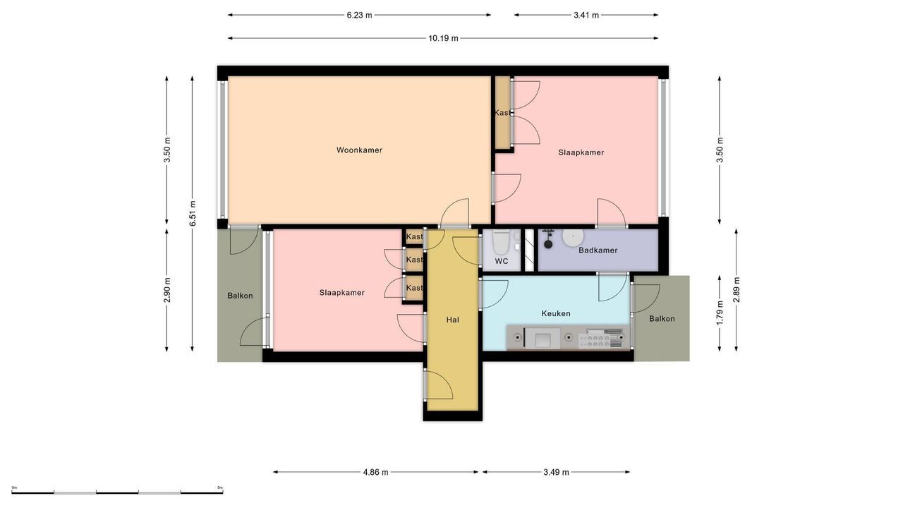
Dit 3-kamerappartement aan de Mahlerstraat in Leiden biedt ruimte voor persoonlijke renovatie. Via de centrale entree stap je de hal binnen, die toegang geeft tot de woonkamer aan de voorzijde. Dankzij grote ramen geniet je hier van veel natuurlijk licht. De woonkamer verleent toegang tot het eerste balkon met een mooi uitzicht. De achterzijde herbergt de keuken, waar je ruimte hebt voor inbouwapparatuur en toegang tot het tweede balkon. Het appartement heeft twee slaapkamers, waarvan de grootste aan de voorzijde ligt. De badkamer is centraal gelegen en het toilet is separaat. Extra bergruimte is beschikbaar in de onderbouw. De groene omgeving biedt nabijheid tot winkels, scholen en sportfaciliteiten, en het centrum is eenvoudig bereikbaar. Energielabel D, VvE-bijdrage € 144,40 per maand.

Overdracht

Vraagprijs
€ 225.000 k.k.
Prijs per m²
€ 3.516
Aangeboden sinds
24-02-2026
Status
Beschikbaar
Beschikbaar
Per direct

Oppervlakte en inhoud

Woonoppervlakte
64 m²

Bouw

Type woning
Appartement
Soort woning
Galerijflat
Soort bouw
Bestaande bouw
Bouwjaar
1965

Indeling

Aantal kamers
3
Aantal slaapkamers
2
Aantal badkamers
1

Buitenruimte

Dakterras
Niet aanwezig

Energie

Energielabel
D
Meld een probleem met deze woning