Contact met de makelaar

Deze woning is gevonden buiten ons eigen netwerk. Met de knop hieronder kom je direct bij de aanbieder terecht.

Verkocht onder voorbehoud

Burgemeester Caan van Necklaan 98

Bekijk kaart
2262 GR Leidschendam (De Heuvel noord)
€ 375.000 k.k.
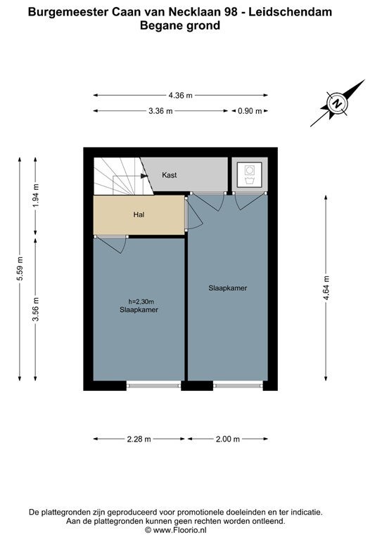
  • 100 m²
  • 4 kamers
  • 1961

Samenvatting

  • Deze woning wordt sinds 2 maanden aangeboden door Zevensprong Makelaardij;
  • De maisonnette heeft een woonoppervlakte van 100 m² en beschikt over 4 kamers, waarvan 3 slaapkamers;
  • De woning is gebouwd In 1961 en ligt in de buurt De Heuvel noord in Leidschendam.

Beschrijving

een plek om thuis te komen
Sommige plekken voelen meteen als thuis. Burgemeester Caan van Necklaan 98 in Leidschendam is zo’n plek. Dit lichte en ruime appartement combineert comfort met een gemoedelijke sfeer in een buurt die alles biedt voor prettig wonen.

Wonen in De Heuvel
De woning ligt in de geliefde wijk De Heuvel, een rustige en groene omgeving met een dorps karakter. Hier vind je brede lanen, groene pleinen en een levendige sfeer. De buurt is ideaal voor gezinnen, jonge stellen en iedereen die op zoek is naar een fijne woonomgeving.

Voorzieningen binnen handbereik
Op korte afstand vind je het moderne winkelcentrum The Mall of the Netherlands, met een divers aanbod aan winkels, horeca en entertainment. Voor de dagelijkse boodschappen zijn er diverse supermarkten in de buurt. Openbaar vervoer is uitstekend bereikbaar, met tram- en buslijnen die je snel naar Den Haag of andere omliggende steden brengen.

Onderwijs en kinderopvang
De wijk biedt diverse onderwijsvoorzieningen, waaronder basisscholen en middelbare scholen. Ook zijn er verschillende kinderopvanglocaties in de buurt, wat het ideaal maakt voor gezinnen met jonge kinderen.

Natuur en recreatie
Voor natuurliefhebbers en sportievelingen is de locatie ideaal. Het Vlietlandpark en het recreatiegebied Vlietzone liggen op korte afstand, waar je kunt wandelen, fietsen of genieten van de natuur. Daarnaast zijn er diverse sportfaciliteiten in de buurt.

Bereikbaarheid
De woning is uitstekend bereikbaar met zowel het openbaar vervoer als de auto. Diverse tram- en buslijnen stoppen in de buurt, waardoor je snel in het centrum van Den Haag of op het Centraal Station bent. Ook de snelwegen A4, A12 en A13 zijn vlot bereikbaar, ideaal voor woon-werkverkeer.

Kortom
Burgemeester Caan van Necklaan 98 is meer dan een adres; het is een plek waar wonen plezierig voelt, waar het karakter van de woning en de charme van de buurt elkaar versterken, en waar je je direct thuis zult voelen. Een plek om echt thuis te zijn.

Algemene informatie appartement

  • Bouwjaar: 1961
  • Eigen grond
  • Woonoppervlakte: ca. 100,3 m²
  • Berging: ca. 6,2 m²
  • Inhoud van het appartement: ca. 300 m³

Energie en duurzaamheid

  • Energielabel: E
  • Deels Kunststof- en Houtenkozijnen met dubbel glas
  • Verwarming middels blokverwarming
  • Warm water middels Daalderop boiler 80 liter (eigendom)
  • Elektrische installatie 8 groepen met aardlek- en hoofdschakelaar

VvE & onderhoud

  • Professionele externe bestuurder
  • VvE, maandelijkse bijdrage: € 282,39 (inclusief voorschot stookkosten)
  • Reservefonds: € 567.479,31 (peildatum oktober 2025 )
  • 9/1189ste aandeel in de gemeenschap
  • Collectieve opstalverzekering
  • MJOP aanwezig

Meer informatie over deze woning?
Bezoek ****** of neem contact op voor meer informatie of een bezichtiging.

Let op: Vanwege het bouwjaar van de woning zal een ouderdoms- en materialenclausule worden opgenomen.

Interesse in dit huis?
Schakel direct uw eigen aankoopmakelaar in. Uw aankoopmakelaar behartigt uw belangen en bespaart u tijd, geld en zorgen.

Overdracht

Vraagprijs
€ 375.000 k.k.
Aangeboden sinds
24-10-2025
Status
Verkocht onder voorbehoud
Beschikbaar
In overleg
Onderhoudsstaat
Zeer goed

Oppervlakte en inhoud

Woonoppervlakte
100 m²
Inhoud
300 m³

Bouw

Type woning
Appartement
Soort woning
Maisonnette, Appartement
Soort bouw
Bestaande bouw
Bouwjaar
1961

Indeling

Aantal kamers
4
Aantal slaapkamers
3
Aantal badkamers
1
Aantal woonlagen
2
Voorzieningen
  • Toilet
  • Wasruimte

Buitenruimte

Balkon
Niet aanwezig
Dakterras
Niet aanwezig

Energie

Isolatie
Dubbele beglazing
Verwarming
Blokverwarming
Energielabel
E

Bergruimte

Schuur/Berging
Aanwezig

Parkeergelegenheid

Aanwezig
Ja
Soort parkeergelegenheid
Betaald
Meld een probleem met deze woning