Contact met de makelaar

Deze woning is gevonden buiten ons eigen netwerk. Met de knop hieronder kom je direct bij de aanbieder terecht.

Nieuw

Wycker Heidenstraat 7

Bekijk kaart
6221 EP Maastricht (Wyck)
€ 298.000 k.k.
  • 73 m²
  • 2 kamers
  • 1920

Samenvatting

  • Deze woning wordt sinds 21 oktober 2025 aangeboden door Pooters Makelaardij;
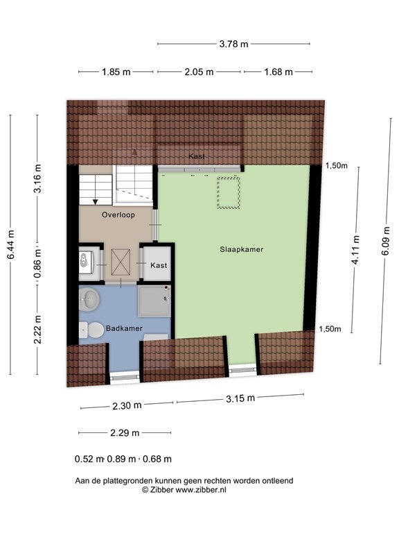
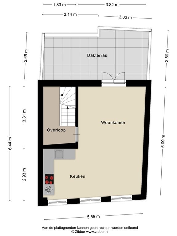
  • De maisonnette heeft een woonoppervlakte van 73 m² en beschikt over 2 kamers, waarvan 1 slaapkamer;
  • De woning is gebouwd In 1920 en ligt in de buurt Wyck in Maastricht;
  • De woning beschikt onder andere over de volgende voorzieningen: Kabel TV, Internetaansluiting, Mechanische ventilatie, Dakterras, Douche, Toilet.

Beschrijving

Overdracht

Vraagprijs
€ 298.000 k.k.
Aangeboden sinds
21-10-2025
Status
Beschikbaar
Beschikbaar
In overleg
Onderhoudsstaat
Goed

Oppervlakte en inhoud

Woonoppervlakte
73 m²
Inhoud
240 m³

Bouw

Type woning
Appartement
Soort woning
Maisonnette, Appartement
Soort bouw
Bestaande bouw
Bouwjaar
1920
Ligging
  • In het centrum
  • Nabij het openbaar vervoer
  • Nabij een school

Indeling

Aantal kamers
2
Aantal slaapkamers
1
Aantal badkamers
1
Aantal woonlagen
3
Voorzieningen
  • Kabel TV
  • Internetaansluiting
  • Mechanische ventilatie
  • Dakterras
  • Douche
  • Toilet

Buitenruimte

Balkon
Niet aanwezig
Dakterras
Aanwezig

Energie

Isolatie
Gedeeltelijk dubbele beglazing, Dakisolatie
Verwarming
CV-ketel
Warm water
CV-ketel
Cv-ketel
Remeha-Tzerra ACE HR Combi, 39C CW5 60/100 (Gas, uit 2020, Gehuurd)
Energielabel
F

Parkeergelegenheid

Aanwezig
Ja
Soort parkeergelegenheid
Betaald
Meld een probleem met deze woning
Contact met de makelaar Bel