Contact met de makelaar

Deze woning is gevonden buiten ons eigen netwerk. Met de knop hieronder kom je direct bij de aanbieder terecht.

Nieuw

President Rooseveltlaan 235

Bekijk kaart
6224 CP Maastricht (Wittevrouwenveld)
€ 775.000 k.k.
  • 175 m²
  • 8 kamers
  • 1930

Samenvatting

  • Deze woning wordt sinds 21 oktober 2025 aangeboden door KH-Solutions Makelaars;
  • De tussenwoning heeft een woonoppervlakte van 175 m² en beschikt over 8 kamers, waarvan 5 slaapkamers;
  • De woning is gebouwd In 1930 en ligt in de buurt Wittevrouwenveld in Maastricht;
  • De woning beschikt onder andere over de volgende voorzieningen: Airconditioning, Bad, Kabel TV, Mechanische ventilatie, Douche, Toilet.

Beschrijving

Overdracht

Vraagprijs
€ 775.000 k.k.
Aangeboden sinds
21-10-2025
Status
Beschikbaar
Beschikbaar
In overleg
Onderhoudsstaat
Goed

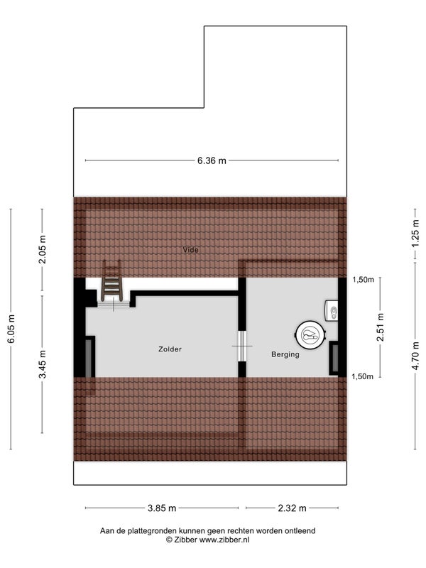
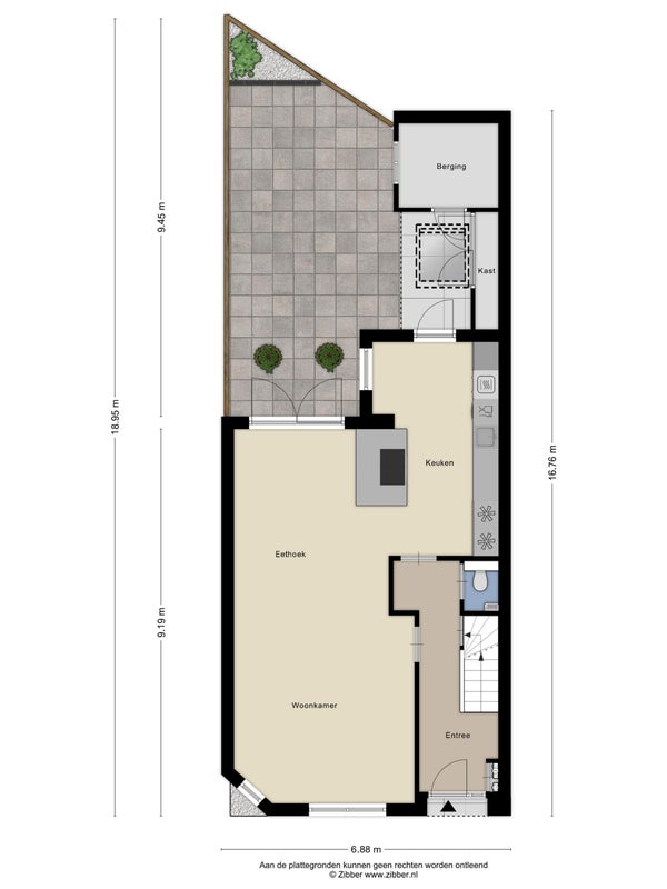
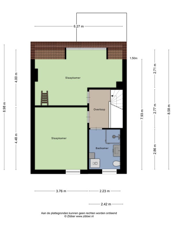
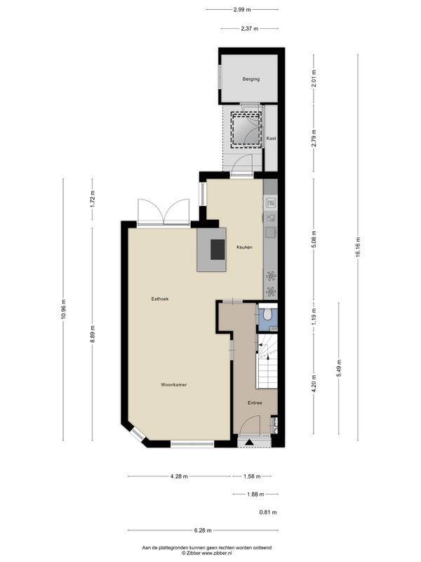
Oppervlakte en inhoud

Woonoppervlakte
175 m²
Perceeloppervlakte
115 m²
Inhoud
704 m³

Bouw

Type woning
Huis
Soort woning
Tussenwoning (rijtjeshuis), Herenhuis
Soort bouw
Bestaande bouw
Bouwjaar
1930
Ligging
  • Aan een rustige weg
  • Aan een park
  • In een woonwijk
  • Open gebied
  • Vrij uitzicht

Indeling

Aantal kamers
8
Aantal slaapkamers
5
Aantal badkamers
2
Aantal woonlagen
5
Voorzieningen
  • Airconditioning
  • Bad
  • Kabel TV
  • Mechanische ventilatie
  • Douche
  • Toilet

Buitenruimte

Balkon
Niet aanwezig
Tuin
Aanwezig (40 m², gelegen op het oosten)
Tuinbeschrijving
achtertuin
Dakterras
Niet aanwezig

Energie

Isolatie
Vloerisolatie, Volledig geïsoleerd, HR glas, Dakisolatie, Muurisolatie
Verwarming
CV-ketel, Warmtepomp
Warm water
CV-ketel
Cv-ketel
Intergas HRE (Gas, uit 2023, Eigendom)
Energielabel
A

Bergruimte

Schuur/Berging
Aanwezig
Omschrijving
Aangebouwd steen

Parkeergelegenheid

Aanwezig
Ja
Soort parkeergelegenheid
Vergunning
Omschrijving
€60,- per jaar

Garage

Aanwezig
Nee
Meld een probleem met deze woning
Contact met de makelaar Bel