Contact met de makelaar

Deze woning is gevonden buiten ons eigen netwerk. Met de knop hieronder kom je direct bij de aanbieder terecht.

Petrus Regoutplein

Bekijk kaart
6211 XX Maastricht (Statenkwartier)
€ 849.000 k.k.
  • 152 m²
  • 6 kamers
  • 2025

Samenvatting

  • Deze woning wordt sinds 30 oktober 2025 aangeboden door Hypodomus Maastricht Lap & Pletsers;
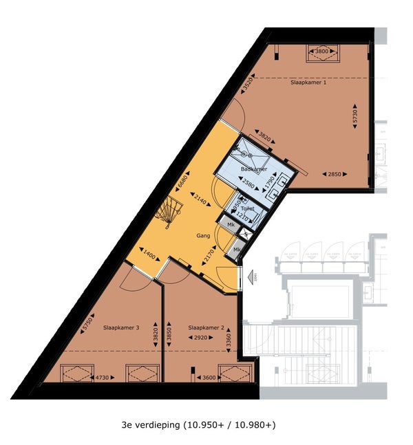
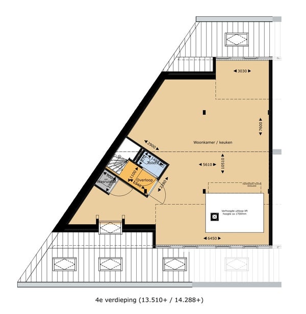
  • De galerijflat heeft een woonoppervlakte van 152 m² en beschikt over 6 kamers, waarvan 3 slaapkamers;
  • De woning is gebouwd In 2025 en ligt in de buurt Statenkwartier in Maastricht.

Beschrijving

Meer woninginformatie bekijken?

Log in of registreer gratis.

Overdracht

Vraagprijs
€ 849.000 k.k.
Aangeboden sinds
30-10-2025
Status
Beschikbaar
Beschikbaar
In overleg

Oppervlakte en inhoud

Woonoppervlakte
152 m²

Bouw

Type woning
Appartement
Soort woning
Galerijflat
Soort bouw
Nieuwbouw
Bouwjaar
2025

Indeling

Aantal kamers
6
Aantal slaapkamers
3
Aantal badkamers
1

Buitenruimte

Dakterras
Niet aanwezig
Meld een probleem met deze woning